Dieses Reihenhaus aus dem Baujahr 1973 bietet Ihnen mit ca. 101 m² Wohnfläche ein komfortables Zuhause in ruhiger Wohnlage von Sindelfingen. Die Immobilie eignet sich ideal für Menschen, die ein Eigenheim mit eigenem Garten und Platz für individuelle Gestaltung suchen.
Das Haus erstreckt sich insgesamt über drei Etagen zuzüglich eines vollständig ausgebauten Kellers. Im Erdgeschoss befinden sich der Wohn- und Essbereich mit Zugang zur Terrasse sowie die Küche und ein Gäste-WC. Im Obergeschoss sind das Schlafzimmer, zwei weitere Zimmer und das Badezimmer untergebracht. Ein ausgebautes Dachgeschoss ergänzt das Raumangebot.
Der Gartenbereich wurde im Jahr 2025 vollständig erneuert und bietet Ihnen mit Terrasse und Markise eine angenehme Möglichkeit zur Erholung im Freien. Die Immobilie verfügt über einen eigenen Stellplatz.
Zahlreiche Sanierungen und Modernisierungen wie neue Fenster (2022), eine neue Einbauküche (2023) sowie ein saniertes Badezimmer (2025/2026) erhöhen den Wohnkomfort und sorgen für einen gepflegten Zustand. Die Ölheizung mit vier Tanks versorgt das Gebäude zuverlässig mit Wärme.
Familienfreundliches Reihenhaus mit Garten, Terrasse & Balkon – modernisiert und gepflegt
71067 Sindelfingen
Die vollständige Adresse der Immobilie erhalten Sie vom Anbieter.
Auf Karte anzeigen
Die vollständige Adresse der Immobilie erhalten Sie vom Anbieter.
Finanzierungszertifikat
In nur zwei Minuten zu Ihrem persönlichen Finanzierungszertifkat.
Infos
| Haustyp | Reihenmittelhaus |
|---|---|
| Etagenzahl | 3 |
| Wohnfläche ca. | 100 m2 |
| Grundstücksfläche | 121 m2 |
| Zimmer | 4,5 |
| Schlafzimmer | 3 |
| Badezimmer | 1 |
Kosten
| Kaufpreis |
549.900 € |
|---|---|
| Provision |
3,99 % inkl. MwSt. vom Kaufpreis. Die Provision ist verdient und mit notarieller Beurkundung fällig. |
Finanzierungsrechner:
Kaufpreis:
600.000 €
Eigenkapital:
600.000 €
Monatliche Rate
0 €
Effektiver Jahreszins
0 %
Sollzinsbindung
10 Jahre
Bausubstanz & Energieausweis
| Baujahr | 1973 |
|---|---|
| Objektzustand | Gepflegt |
| Heizungsart | Zentralheizung |
| Wesentliche Energieträger | Öl |
| Energieausweis | liegt vor |
| Energieausweistyp | Bedarfsausweis |
| Energieverbrauchskennwert | 188,8 kWh/(m²*a) |
| Energieeffizienzklasse | F |
188,8
kWh/(m²*a)
Energieeffizienzklasse F
- A+
- A
- B
- C
- D
- E
- F
- G
- H
- 0
- 25
- 50
- 75
- 100
- 125
- 150
- 175
- 200
- 225
- >250
Beschreibung des Objekts
Ausstattung
•Reihenhaus mit ca. 101 m² Wohnfläche
•4,5 Zimmer
• Dachgeschoss ausgebaut: Heizung und Wasseranschluss vorhanden
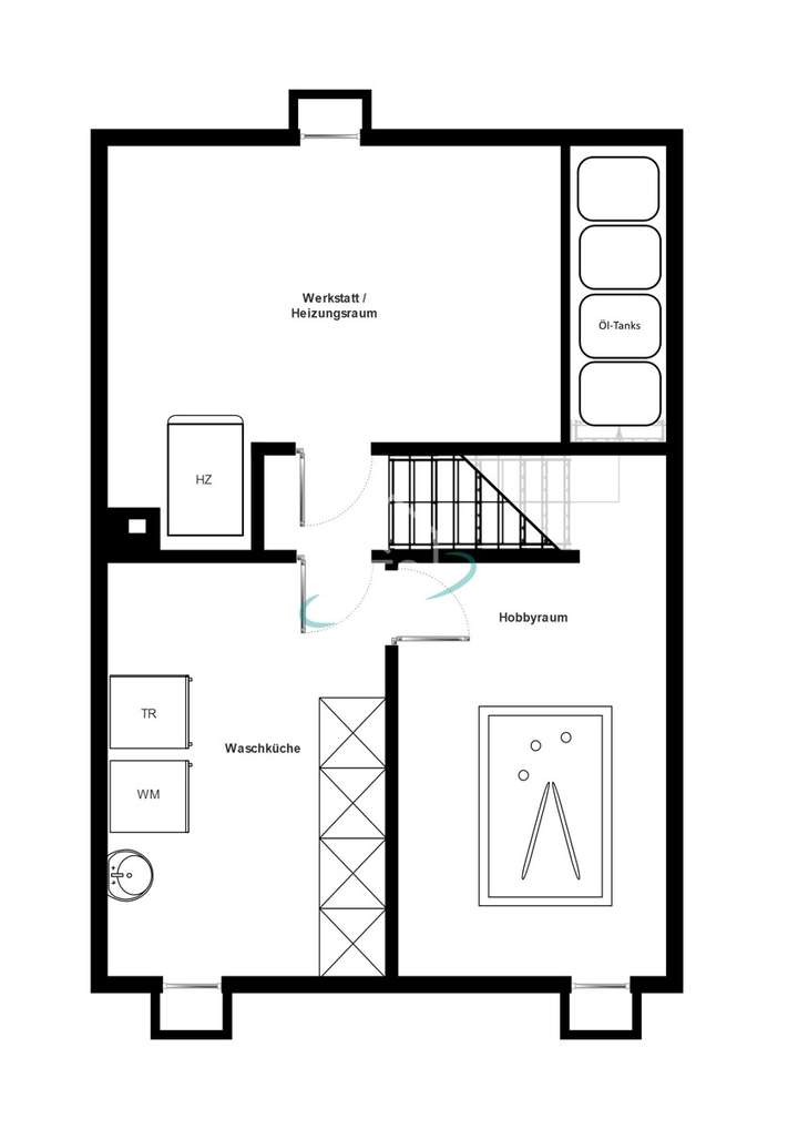
•Voll unterkellert (inkl. Waschküche, Hobbyraum, Werkstatt, Öl-Tanks)
•Neue Einbauküche (2023)
•Badezimmer saniert (2025/2026)
•Gäste-WC im Erdgeschoss
•Neuer Gartenbereich (2025) mit Terrasse und Markise
•Balkon vorhanden
•2-fach verglaste Kunststofffenster (2022)
•Dach saniert 2004
•Alarmanlage im Erdgeschoss
•Dach gedämmt, Dachfenster von 2021
•Sämtliche Steckdosen und Lichtschalter erneuert
•Elektroinstallation in der Küche erneuert
•Hauptwasserleitung zwischen Bad und WC erneuert
•Ölheizung mit 4 Tanks - 2 mit ca. 600 l und 2 mit ca. 1000l
•Stellplatz vorhanden
•Fliesen und Putzarbeiten erneuert
Lage
Die Immobilie befindet sich in Sindelfingen, einer großen Kreisstadt im Landkreis Böblingen. Sindelfingen grenzt unmittelbar an Böblingen und gehört zur Metropolregion Stuttgart. Mit ca. 64.000 Einwohnern ist die Stadt wirtschaftlich wie auch infrastrukturell gut entwickelt.
Sindelfingen bietet eine breite Auswahl an Einkaufsmöglichkeiten des täglichen Bedarfs. Verschiedene Lebensmittelmärkte, Bäckereien und weitere Dienstleister befinden sich in gut erreichbarer Nähe. Auch ärztliche Versorgung ist durch mehrere Allgemein- und Fachärzte sowie Apotheken gesichert.
Für Familien mit Kindern gibt es im Stadtgebiet verschiedene Kindergärten und alle relevanten Schulformen. Freizeitangebote, Sportvereine sowie Spielplätze sind ebenfalls vorhanden und sorgen für eine familienfreundliche Umgebung.
Wichtige Arbeitgeber aus der Automobil- und Zulieferindustrie sind in Sindelfingen ansässig, was den Standort auch für Berufspendler interessant macht. Die Verkehrsanbindung ist durch die Nähe zur A81 sowie mehreren Bundesstraßen hervorragend.
Sindelfingen verfügt über ein gut ausgebautes Netz im öffentlichen Nahverkehr. In kurzer Fahrzeit erreicht man die Städte Böblingen, Stuttgart und Herrenberg. Der Bahnhof Böblingen bietet zudem Anschluss an den Regionalverkehr sowie an die S-Bahn-Linien Richtung Stuttgart und Tübingen. So sind auch überregionale Ziele gut erreichbar.
Grundriss
Grundriss EG
>
>
Grundriss OG
>
>
Grundriss DG
>
>
Grundriss UG
>
>
Adresse
71067 Sindelfingen
Interessante Orte
Preis- und Lageinformationen
Preistrend für Bestandsimmobilien in Sindelfingen