Erleben und leben Sie auf 447m² Grundstück in Meerbusch-Osterath eine Satteldacharchitektur mit viel Raum zum Leben.
Mit 124 m² und einem überaus variable Grundriss wird das Haus zu einem echten Allround-Talent.
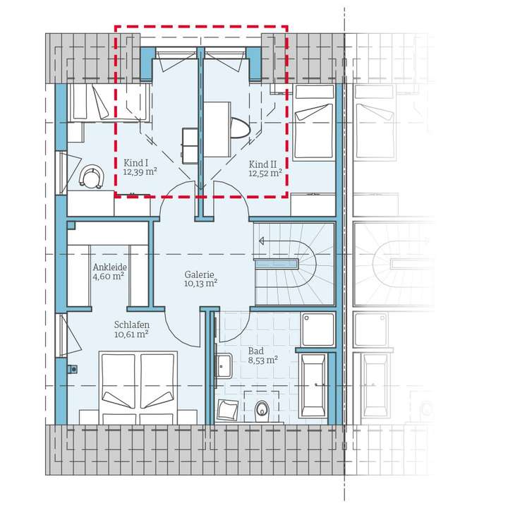
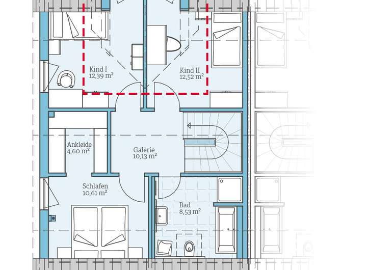
Durch den im Preis inbegriffenen Zwerchgiebel finden allein im Dachgeschoss zwei große Kinderzimmer viel Platz für die Kleinen.
Durch den im Preis inbegriffenen Keller lässt sich der Wohnraum entsprechend vergrößern und bietet im Handumdrehen viel Raum für die ganze Familie oder bietet bei dem im Preis enthaltenen Keller noch ein zusätzliches Büro/Gästezimmer im Erdgeschoss .
Viel Stauraum, eine separate Ankleide, große Bewegungsflächen und die optionale zweite Dusche im Erdgeschoss-WC bieten beste Voraussetzungen dafür,
dass es auch im Alltag entspannt bleibt.
Moderne Doppelhaushälfte in TOP-Lage von Meerbusch inklusive Keller und 447m² Grundstück
40670 Meerbusch
Die vollständige Adresse der Immobilie erhalten Sie vom Anbieter.
Auf Karte anzeigen
Die vollständige Adresse der Immobilie erhalten Sie vom Anbieter.
Finanzierungszertifikat
In nur zwei Minuten zu Ihrem persönlichen Finanzierungszertifkat.
Infos
| Haustyp | Einfamilienhaus |
|---|---|
| Etagenzahl | 2 |
| Wohnfläche ca. | 124 m2 |
| Grundstücksfläche | 447 m2 |
| Zimmer | 5 |
| Schlafzimmer | 3 |
| Badezimmer | 1 |
Kosten
| Kaufpreis |
773.000 € |
|---|---|
| Provision | Nein |
Finanzierungsrechner:
Kaufpreis:
600.000 €
Eigenkapital:
600.000 €
Monatliche Rate
0 €
Effektiver Jahreszins
0 %
Sollzinsbindung
10 Jahre
Bausubstanz & Energieausweis
| Bauphase | Haus in Planung (projektiert) |
|---|---|
| Qualität der Austattung | Gehoben |
| Heizungsart | Wärmepumpe |
Beschreibung des Objekts
Ausstattung
Gerne stelle ich Ihnen in einem persönlichen Gespräch das angebotene Bauvorhaben im Detail näher vor.
Lage
Meerbusch-Osterath zählt seit Jahren zu den begehrtesten Wohnstandorten im Rhein-Ruhr-Gebiet.
Der einzigartige Mix aus ruhigen Wohnstraßen, einer sehr guten Infrastruktur und der schnellen Anbindung nach Düsseldorf macht den Ort vor allem für Berufspendler besonders attraktiv.
Das Grundstück liegt in einem gewachsenen Wohngebiet nahe dem Ortszentrum.
Ortszentrum, Einkaufsmöglichkeiten, Ärzte, Schulen und S-Bahnhof Osterath (S8/S28 - direkte Verbindung nach Düsseldorf, Neuss, Krefeld und Mönchengladbach) sind in wenigen Minuten erreichbar.
Auch die Autobahnen sind schnell angebunden, ohne dass man davon etwas im Wohnumfeld hört.
Sonstige Angaben
Der angebotene Preis versteht sich für das angebotene und schlüsselfertige Haus inklusive Keller, der anfallenden Makler-Courtage und dem 447m² großen Grundstück.
Zzgl. der zu erwartenden Bau-, u. Kaufnebenkosten.
Die abgebildeten Fotos können Sonderbauteile enthalten, welche nicht im Angebotspreis enthalten sind.
Grundriss
Dachgeschoss
>
>
Erdgeschoss ohne Keller
>
>
Adresse
40670 Meerbusch
Interessante Orte
Preis- und Lageinformationen
Preistrend für Bestandsimmobilien in Meerbusch