Willkommen in Ihrem neuen Zuhause! In idyllischer Lage von Biesenthal, unweit der Natur und dennoch gut angebunden, entsteht dieser hochwertige Bungalow „Vivaldi“ mit ca. 125 m² Wohnfläche auf einem großzügigen 1220 m² Grundstück. Hier vereinen sich moderne Architektur, durchdachte Raumaufteilung und ein entspanntes Wohngefühl – alles auf einer Ebene.
Neubau eines Bungalows - in traumhafter Lage in Biesenthal
16359 Biesenthal
Die vollständige Adresse der Immobilie erhalten Sie vom Anbieter.
Auf Karte anzeigen
Die vollständige Adresse der Immobilie erhalten Sie vom Anbieter.
Finanzierungszertifikat
In nur zwei Minuten zu Ihrem persönlichen Finanzierungszertifkat.
Infos
| Etagenzahl | 2 |
|---|---|
| Wohnfläche ca. | 125 m2 |
| Grundstücksfläche | 1.220 m2 |
| Zimmer | 4 |
| Anzahl Garage/Stellplatz | 2 |
Kosten
| Kaufpreis |
478.000 € |
|---|---|
| Provision |
3,57% Die Provision entfällt auf den Grundstücksanteil. |
Finanzierungsrechner:
Kaufpreis:
600.000 €
Eigenkapital:
600.000 €
Monatliche Rate
0 €
Effektiver Jahreszins
0 %
Sollzinsbindung
10 Jahre
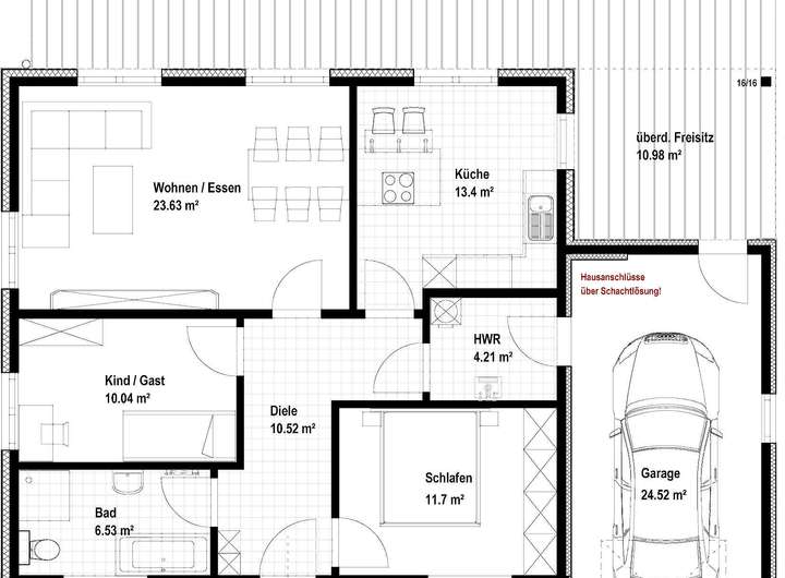
Beschreibung des Objekts
Ausstattung
Großzügiger Wohn-/Essbereich mit offener Küche – viel Licht und Zugang zur teilüberdachten Terrasse
Elternschlafzimmer mit Blick in den Garten
2 weitere Zimmer – ideal als Kinderzimmer, Gästezimmer oder Homeoffice
Modernes Badezimmer mit bodengleicher Dusche und Wanne
Separates Gäste-WC auf Wunsch
Hauswirtschafts-/Technikraum
Lage
Das Grundstück befindet sich in einer ruhigen und familienfreundlichen Wohngegend von Biesenthal. Die Umgebung ist geprägt von Einfamilienhäusern, viel Grün und einer entspannten Atmosphäre. Einkaufsmöglichkeiten, Schulen, Kitas und ärztliche Versorgung sind bequem erreichbar. Die naturnahe Lage lädt zu Spaziergängen, Fahrradtouren und Freizeitaktivitäten im Grünen ein.
Sonstige Angaben
Vereinbaren Sie jetzt Ihre Besichtigung sowie Bauberatung;
Silke Friedrich 01520 4466425
Weitere Dokumente
Rostow_Flyer25 Jahre Rostow Bau
25 Jahre Rostow Bau
Grundriss
Bungalow Haydn80 G_oM
>
>
Bungalow Haydn 100_oM
>
>
Bungalow Vivaldi 109_oM
>
>
Bungalow Ravel 115_oM
>
>
Adresse
16359 Biesenthal
Interessante Orte
Preis- und Lageinformationen
Preistrend für Bestandsimmobilien in Biesenthal