Diese renovierungsbedürftige Doppelhaushälfte in Holzbauweise aus dem Jahr 1984 befindet sich in Berlin-Rudow, einer besonders gesuchten Wohnlage. Sie überzeugt mit einer Wohnfläche von ca. 114 m² sowie einer vielseitig nutzbaren Nutzfläche von ca. 115 m². Die durchdachte Grundrissgestaltung, der wohnlich ausgebaute Kellerraum sowie die große Garage bieten ein attraktives Gesamtpaket mit viel Entwicklungspotenzial.
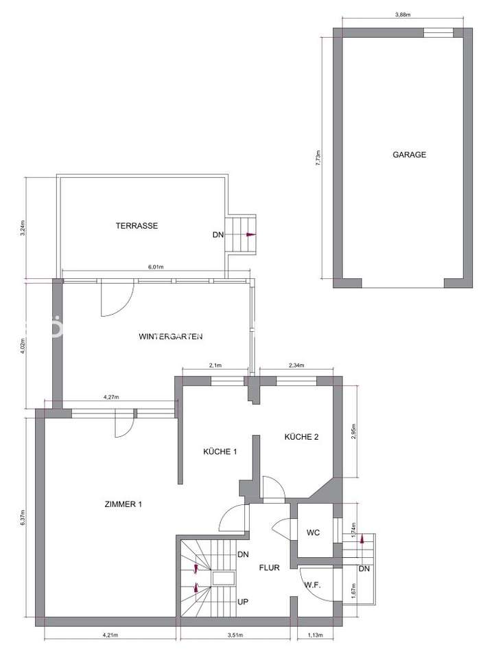
Beim Betreten des Hauses empfängt Sie ein einladender Flur, von dem aus Sie direkt in das praktische Gäste-WC gelangen. Weiter führt der Weg in den offenen Küchenbereich, der sich harmonisch zum angrenzenden Ess- oder Aufenthaltsbereich öffnet. Daran schließt das gemütliche Wohnzimmer an, das mit seinem Zugang zum großzügigen Wintergarten ein besonderes Wohnhighlight darstellt – ideal für entspannte Stunden mit Blick ins Freie und zu jeder Jahreszeit nutzbar.
Über die Treppe im Flur erreichen Sie das Obergeschoss, in dem Ihnen drei weitere Zimmer zur Verfügung stehen. Diese eignen sich flexibel als Schlaf-, Kinder- oder Arbeitszimmer. Ein Tageslichtbad mit Dusche ergänzt diese Etage und sorgt für zusätzlichen Komfort.
Der Keller bietet neben klassischen Nutz- und Abstellflächen einen Raum, der derzeit zu Wohnzwecken genutzt wird und somit weitere Möglichkeiten für Hobby, Gäste oder Homeoffice eröffnet. Zusätzlich befindet sich ein zweites Duschbad im Keller.
Die große Garage auf dem Grundstück bietet Ihrem Fahrzeug sicheren Stellplatz und zusätzlichen Stauraum.
Diese Immobilie verbindet einen familienfreundlichen Zuschnitt mit vielfältigen Nutzungsperspektiven – überzeugen Sie sich gern persönlich vor Ort.
Selten in Rudow: DHH mit 4,5 Zi.+ Wintergarten auf 140m² Wfl./Nutzfl., Garten und Garage
12355 Berlin
Die vollständige Adresse der Immobilie erhalten Sie vom Anbieter.
Auf Karte anzeigen
Die vollständige Adresse der Immobilie erhalten Sie vom Anbieter.
Finanzierungszertifikat
In nur zwei Minuten zu Ihrem persönlichen Finanzierungszertifkat.
Infos
| Haustyp | Doppelhaushaelfte |
|---|---|
| Wohnfläche ca. | 113 m2 |
| Nutzfläche | 114,84 m2 |
| Grundstücksfläche | 430 m2 |
| Bezugsfrei ab | nach Absprache |
| Zimmer | 4 |
| Schlafzimmer | 3 |
| Badezimmer | 2 |
| Garage/Stellplatz | Garage |
| Anzahl Garage/Stellplatz | 1 |
Kosten
| Kaufpreis |
465.000 € |
|---|---|
| Provision |
3,57% |
Finanzierungsrechner:
Kaufpreis:
600.000 €
Eigenkapital:
600.000 €
Monatliche Rate
0 €
Effektiver Jahreszins
0 %
Sollzinsbindung
10 Jahre
Bausubstanz & Energieausweis
| Baujahr | 1984 |
|---|---|
| Objektzustand | Renovierungsbedürftig |
| Heizungsart | Zentralheizung |
| Wesentliche Energieträger | Erdgas leicht |
Beschreibung des Objekts
Ausstattung
- Terrasse mit Wintergarten
- große Garage
- Gäste-WC
- offene Küche
- Tageslichtbad mit Dusche
- ausgebauter Spitzboden
- Hobbyraum im Keller zu Gästezimmer erweitert
- Zweites Duschbad im Keller
Lage
Die Immobilie befindet sich in belebter Wohnlage in Berlin-Rudow (Neukölln), nahe dem Frauenviertel. Mehrere Buslinien verkehren in der Nähe. In direkter Umgebung finden Sie Supermärkte, Restaurants und zwei Bäckereien vor. Auch einige Grün- und Parkanlagen, zwei Friseure, eine Bar, ein Fitnessstudio und eine Tierhandlung erreichen Sie. Auch Schulen, Kindergärten und Ärzte befinden sich in der Nähe, wodurch die Lage besonders familienfreundlich ist.
Das Objekt befindet sich in einer gewachsenen Wohngegend. Die Umgebung ist geprägt von Mehr-und Einfamilienhäusern & viel Grün, was eine angenehme Wohnatmosphäre schafft.
Sonstige Angaben
Das Objekt wird im qualifizierten Alleinauftrag angeboten. Bitte beachten Sie, dass wir keine telefonischen Auskünfte erteilen können.
Nachfragen können nur bei vollständiger Angabe von Name, Adresse, Telefonnummer
beantwortet werden.
Courtage
Der Maklervertrag mit der Bölitz Immobilien GmbH und/oder einem von uns Beauftragten kommt durch die Bestätigung der Inanspruchnahme unserer Maklertätigkeit in Textform zustande, z. B. insbesondere durch die Unterschrift des Suchkundenvertrages und/oder des Objekt-Exposés.
Die Höhe der Courtage richtet sich nach den ab dem 23.12.2020 geltenden gesetzlichen Regelungen zur Teilung der Maklercourtage. Danach wird die Courtage regelmäßig für beide Parteien (Eigentümer und Käufer) jeweils in Höhe von 3 % zuzüglich Umsatzsteuer in der jeweils geltenden Höhe verdient und fällig, derzeit also insgesamt 3,57 % des Kaufpreises einschließlich Umsatzsteuer bei notariellem Vertragsabschluss.
Die Höhe der Bruttocourtage passt sich automatisch an, wenn sich der Umsatzsteuersatz ändert. Grunderwerbssteuer, Notar- und Gerichtskosten trägt der Käufer.
Hinweise
Alle Angaben erfolgen ohne Gewähr und basieren ausschließlich auf Informationen, die uns von unserem Auftraggeber übermittelt wurden. Für Vollständigkeit, Richtigkeit und Aktualität dieser Angaben übernehmen wir keine Haftung. Ein Zwischenverkauf bleibt vorbehalten.
Ist das von uns nachgewiesene Objekt dem Interessenten bereits bekannt, ist uns dies unverzüglich mitzuteilen. Die Weitergabe dieses Exposés an Dritte ohne unsere Zustimmung kann Courtage- bzw. Schadensersatzansprüche auslösen.
Im Übrigen gelten die beigefügten Allgemeinen Geschäftsbedingungen der Bölitz Immobilien GmbH für die Rechtsbeziehung zwischen Ihnen und uns.
Grundriss
UG Grundriss
>
>
EG Grundriss
>
>
DG Grundriss
>
>
Dachboden Grundriss
>
>
Adresse
12355 Berlin
Interessante Orte
Preis- und Lageinformationen
Preistrend für Bestandsimmobilien in Rudow (Neukölln)