Lassen Sie sich begeistern von 128 m² im Architektenhaus Jaro. Der Grundriss überzeugt in jeder Hinsicht, denn im Erdgeschoss erwartet Sie ein großzügiger, offener Wohnbereich mit Essbereich und einer offenen Küche. Hier werden Wohnträume wahr, denn für jedes Familienmitglied findet sich hier genug Platz für das wahre Leben! Nicht fehlen dürfen auf der Etage ein Gäste-WC und der Hauswirtschaftsraum.
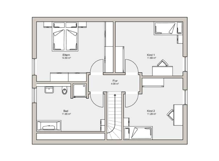
Im Dachgeschoss des Satteldachhauses befinden sich zwei Kinderzimmer, ein Elternschlafzimmer und das geräumige Familienbad.
Dieses Haus wird nach Ihren individuellen Wünschen geplant und ausgestattet!
Bauen Sie jetzt Ihr Familiennest!
54340 Naurath (Eifel)
Die vollständige Adresse der Immobilie erhalten Sie vom Anbieter.
Auf Karte anzeigen
Die vollständige Adresse der Immobilie erhalten Sie vom Anbieter.
Finanzierungszertifikat
In nur zwei Minuten zu Ihrem persönlichen Finanzierungszertifkat.
Infos
| Haustyp | Einfamilienhaus |
|---|---|
| Wohnfläche ca. | 128 m2 |
| Grundstücksfläche | 557 m2 |
| Zimmer | 4 |
| Schlafzimmer | 3 |
| Badezimmer | 1 |
| Anzahl Garage/Stellplatz | 2 |
Kosten
| Kaufpreis |
369.600 € |
|---|---|
| Provision | Nein |
Finanzierungsrechner:
Kaufpreis:
600.000 €
Eigenkapital:
600.000 €
Monatliche Rate
0 €
Effektiver Jahreszins
0 %
Sollzinsbindung
10 Jahre
Bausubstanz & Energieausweis
| Baujahr | 2026 |
|---|---|
| Bauphase | Haus in Planung (projektiert) |
| Objektzustand | Erstbezug |
| Qualität der Austattung | Gehoben |
| Heizungsart | Wärmepumpe |
| Energieausweis | liegt vor |
| Energieausweistyp | Bedarfsausweis |
| Energieverbrauchskennwert | 14,0 kWh/(m²*a) |
| Energieeffizienzklasse | A+ |
14,0
kWh/(m²*a)
Energieeffizienzklasse A+
- A+
- A
- B
- C
- D
- E
- F
- G
- H
- 0
- 25
- 50
- 75
- 100
- 125
- 150
- 175
- 200
- 225
- >250
Beschreibung des Objekts
Ausstattung
4 Zimmer, offene Küche, Diele, Flur, Bad, WC, Hauswirtschaftsraum
Das gezeigte Traumhaus im Überblick:
+ Massivhaus im Sinne der Ausstattungsbeschreibung "Nestbau"
+ Zukunftsorientierte Energieausstattung in Form einer Luft-Wasser-Wärmepumpe und Fußbodenheizung
Beste Markenausstattung in jedem Kern-Haus:
+ Fenster mit 3-Scheiben-Wärmeschutzverglasung und elektrischen Rollläden
+ Dacheindeckung mit Betondachsteinen von Braas mit "Star-Oberfläche"
+ Hochwertiger Kunstharz-Außenputz
+ Badausstattung mit Badewanne und flacher Duschwanne
+ Fliesen in Bad und WC
+ Haustür mit Sicherheitsverriegelung
+ Innentüren der Marke Herholz mit Edelstahldrückern
+ Elektroausstattung inklusive Klingelanlage
+ Rauchmelder für Ihre Sicherheit
+ Einsatz regionaler Handwerksbetriebe
+ Blower-Door-Test
Lage
Das Baugrundstück befindet sich am Ortsrand von Naurath, einer Ortsgemeinde, die der Verbandsgemeinde Schweich angehört.
Naurath ist über die in der Nähe verlaufende Landesstraße 46 an das überörtliche Straßennetz angeschlossen. Der Flugplatz Trier-Föhren befindet sich ca. 3 km südöstlich.
Hauptort und Sitz der Verbandsgemeindeverwaltung ist die 6 km entfernte Stadt Schweich. Hier finden Sie alle notwendigen Einrichtungen, angefangen von Kindergärten über Schulen, umfassender medizinischer Versorgung, Sport- Freizeit- und Einkaufsmöglichkeiten bis hin zu einem intakten Vereinsleben.
Sonstige Angaben
Kern-Haus baut individuelle und massive Architektenhäuser zu einem attraktiven Preis-Leistungs-Verhältnis – und das bereits mit einer Erfahrung seit 1980. Die Kern-Haus AG ist ein deutscher, inhabergeführter Massivhausanbieter mit Sitz im rheinland-pfälzischen Ransbach-Baumbach. Kern-Haus setzt auf eine hohe Bauqualität der Handwerker und auf eine große Auswahl starker Marken. So verwendet Kern-Haus beim Bau Ihres Hauses nur hochwertige Markenprodukte renommierter Hersteller.
Preise und Auszeichnungen von Kern-Haus:
- German Brand Award in den Jahren 2018 und 2021
- Hausbau Design Award: Sieger in den Jahren 2017, 2018, 2019, 2020, 2021, 2022 und 2023
- Deutscher Traumhauspreis: Sieger in den Jahren 2014, 2015, 2016 und 2018 und Silber 2017, 2020 und 2021
- Mittelstandspreis "Top 100" in den Jahren 2014, 2016, 2018, 2020 und 2022
- German Design Award im Jahr 2018
Weitere Informationen
Der gezeigte Preis versteht sich inklusive Grundstück und exklusive der Baunebenkosten.
Grundriss
Grundriss Erdgeschoss
>
>
Grundriss Dachgeschoss
>
>
Adresse
54340 Naurath (Eifel)
Interessante Orte
Preis- und Lageinformationen
Preistrend für Bestandsimmobilien in Naurath (Eifel)