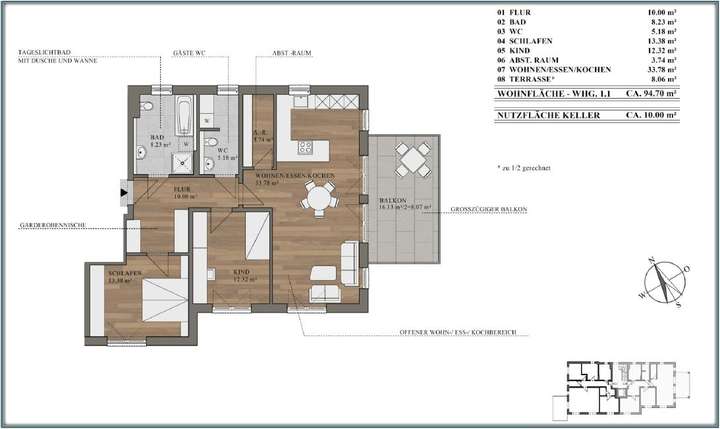
Im Obergeschoss befindet sich die barrierefrei Erreichbare 3-Zimmer-Wohnung mit einer Wohnfläche von etwa 94,70 m². Beim Betreten der Wohnung gelangen Sie in den großzügigen Flur, welcher ausreichend Platz für eine Ankleide bietet.
Das Tageslichtbad ist mit Badewanne, Dusche, WC und Waschbecken ausgestattet und im modernen und zeitgemäßen Stil gestaltet.
Zusätzlich verfügt die Wohnung über ein Gäste WC. Ein Abstellraum bietet zusätzlichen Stauraum.
Die beiden Schlafzimmer befinden sich auf der nach Süd/Westen ausgerichteten Seite. Am Ende des Flurs erstreckt sich der offene Wohn-Essbereich.
Bodentiefe Fenster erzeugen eine lichtdurchflutete und entspannende Atmosphäre.
Vom Wohnzimmer aus gelangen Sie direkt zum Balkon, der zum Genießen der Sonne einlädt.
Raum für Lebensqualität - Moderne 3-Zimmer-Wohnung im 1. OG "Am Sonnenbichl"
Am Sonnenbichl 5,
86399 Bobingen
Auf Karte anzeigen
Finanzierungszertifikat
In nur zwei Minuten zu Ihrem persönlichen Finanzierungszertifkat.
Infos
| Wohnungskategorie | Etagenwohnung |
|---|---|
| Etage | 1 von 2 |
| Wohnfläche ca. | 94 m2 |
| Zimmer | 3 |
| Schlafzimmer | 2 |
| Badezimmer | 1 |
Kosten
| Kaufpreis |
568.200 € |
|---|---|
| Provision | Nein |
Finanzierungsrechner:
Kaufpreis:
600.000 €
Eigenkapital:
600.000 €
Monatliche Rate
0 €
Effektiver Jahreszins
0 %
Sollzinsbindung
10 Jahre
Bausubstanz & Energieausweis
| Heizungsart | Fußbodenheizung |
|---|---|
| Wesentliche Energieträger | Strom |
| Energieausweis | liegt zur Besichtigung vor |
Beschreibung des Objekts
Ausstattung
▪ 1 Schlafzimmer
▪ 1 Kinderzimmer / Büro
▪ barrierefreier Zugang
▪ Personenaufzug
▪ Offener Wohnessbereich
▪ Tageslichtbadezimmer mit Dusche,
▪ Badewanne, WC und Waschbecken
▪ Abstellraum
▪ Gäste WC
▪ Balkon mit einer Grundfläche von ca. 16,00 m²
▪ Fußbodenheizung
▪ 3-fachisolierverglaste Kunststofffenster
▪ elektrische Rollläden
▪ Videogegensprechanlage
▪ zentrale Lüftungsanlage
▪ Tiefgaragenstellplatz bzw. Stellplatz
Lage
Die Stadt Bobingen mit ihren 18.000 Einwohnern verfügt über zahlreiche Einkaufsmöglichkeiten, Restaurants und Cafés, ein vielfältiges Kulturangebot so wie ein abwechslungsreiches Vereinsleben.
Eine Vielzahl an Vereinen und Organisationen sorgen in Bobingen für ein aktives Miteinander und unzähligen Angeboten für alle Generationen.
Sportvereine, zahlreiche Spielplätze eine Skateranlage, ein Freibad….dies ist nur ein Teil des Angebotes.
Mehrere Kindergärten, Grund-, Haupt- und Realschule ergänzen das Angebot vor Ort und sind alle samt bequem zu Fuß zu erreichen.
Zudem verfügt Bobingen über eine gute medizinische Versorgung. Allgemein-, Kinder- und Zahnärzte sowie mehrere Apotheken sind fußläufig in wenigen Minuten erreichbar.
Die Wertach-Klinik Bobingen übernimmt die medizinische Betreuungsaufgabe.
In direkter Umgebung befindet sich das Naherholungsgebiet Naturpark Westliche-Wälder.
Bobingen liegt ca. 13 km südlich von Augsburg. Die angrenzende Bundesstraße B 17 bietet eine ideale Anbindung an die Autobahnen A8 und A96. Somit besteht eine ideale Anbindung in jede Richtung.
Der eigene Bahnhof mit seiner Zugstrecke Augsburg-Landsberg ist zu Fuß zu erreichen. Von hieraus gelangen sie in knapp 10 Minuten in das Stadtzentrum von Augsburg sowie in ca. 50 Minuten in die Landeshauptstadt München.
Sonstige Angaben
Dieses Exposé ist eine Vorinformation und dient nicht als Rechtsgrundlage.
Die Grundrisszeichnungen sind nicht maßstabsgetreu und dienen ebenfalls lediglich der Vorabinformation.
Alle genannten Angaben zum Objekt beruhen auf Angaben der Eigentümer//Bauherren, für Richtigkeit
und Vollständigkeit wird keine Haftung übernommen.
Als Immobilienmakler sind wir gesetzlich dazu verpflichtet, die Identitäten unserer Kunden gemäß § 2 Abs. 1 Nr. 10 Geldwäschegesetz (GwG) festzustellen.
Bei einer konkreten Kaufabsicht ist uns deshalb auf Verlangen ein gültiger Personalausweis vorzulegen.
Das Angebot des Maklers versteht sich freibleibend und unverbindlich und ist nur für den Adressaten bestimmt.
Jede Weitergabe des Angebotes/ der Information ist nur mit unserer vorherigen schriftlichen Zustimmung
gestattet. Unbefugte Weitergabe löst nach der Rechtsprechung hierzu, einen Schadensersatz aus.
Grundriss
Grundriss Wohnung 2.3
>
>
Adresse
Am Sonnenbichl 5, 86399 Bobingen
Interessante Orte
Preis- und Lageinformationen
Preistrend für Bestandsimmobilien in Bobingen