Willkommen in Ihrem neuen Zuhause!
Dieses bereits zum Teil renovierte Einfamilienhaus aus dem Jahr 1979 befindet sich in absoluter ruhiger Lage im idyllischen Ortsteil Elsten der Gemeinde Cappeln.
Eingebettet in einer familienfreundliche Sackgasse, bietet die Immobilie nicht nur viel Platz, sondern auch zahlreiche Möglichkeiten zur persönlichen Entfalltung - perfekt für Familien, Paare mit Platzbedarf oder alle, die ruhig wohnen und trotzdem gut angebunden sein möchten.
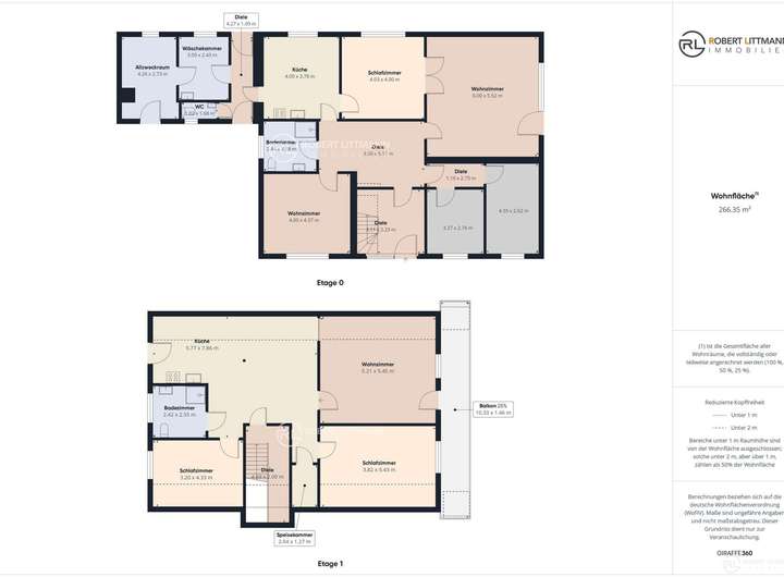
Das Haus steht auf einem großzügigen Grundstück von insgesamt 989 qm und bietet mit rund 236 qm Wohnfläche ein außergewöhnlich großzügiges Raumangebot.
Die ursprüngliche Wohnfläche von ca. 145,68 qm wurde durch den hochwertigen Ausbau des Dachgeschosses um ca. 90qm erweitert.
Im Erdgeschoss erwartet Sie eine durchdachte und funktionale Raumaufteilung: Ein großzügiges Wohnzimmer mit direktem Zugang zur sonnigen Terrasse, eine gemütliche Küche mit Essbereich, zwei Schlafzimmer, zwei Kinderzimmer, ein super modernes Bad mit Dusche, sowie ein separates Gäste-WC und ein Hauswirtschaftsraum.
Das Dachgeschoss wurde nachträglich zu vollwertigem Wohnraum ausgebaut und bietet nun zwei großzügige Zimmer, die sich hervorragend als Schlafzimmer, Home-Office oder Hobbyräume oder sogar als komfortable Gästezimmer nutzen lassen. Besonders praktisch ist auch das neu entstandene Bad mit Dusche und sogar ein Küchensegment. Eine Dachterrasse rundet das Obergeschosspaket ab.
Der liebevoll angelegte Garten lädt zum Verweilen ein und bietet besonders Kindern viel Platz zum Spielen.
Die große Terrasse mit Südausrichtung ist der perfekte Ort für entspannte Sommerabende. Eine Garage sowie ein Außenstellplatz sorgen für bequemes Parken direkt am Haus.
Dieses Haus überzeugt durch Platz, Qualität und Lage - ideal für alle, die ein Zuhause mit Potenzial suchen.
Lassen Sie sich begeistern und vereinbaren Sie noch heute einen Besichtigungstermin!
Traumhaftes Einfamilienhaus mit ausgebautem Dachgeschoss und großem Garten in Cappeln-Elsten
49692 Cappeln (Oldenburg)
Die vollständige Adresse der Immobilie erhalten Sie vom Anbieter.
Auf Karte anzeigen
Die vollständige Adresse der Immobilie erhalten Sie vom Anbieter.
Finanzierungszertifikat
In nur zwei Minuten zu Ihrem persönlichen Finanzierungszertifkat.
Infos
| Haustyp | Einfamilienhaus |
|---|---|
| Wohnfläche ca. | 239 m2 |
| Nutzfläche | 41,23 m2 |
| Grundstücksfläche | 989 m2 |
| Bezugsfrei ab | nach Absprache |
| Zimmer | 8 |
| Schlafzimmer | 6 |
| Badezimmer | 2 |
| Garage/Stellplatz | Garage |
| Anzahl Garage/Stellplatz | 3 |
Kosten
| Kaufpreis |
337.000 € |
|---|---|
| Provision |
3,57 % inkl. MwSt. |
Finanzierungsrechner:
Kaufpreis:
600.000 €
Eigenkapital:
600.000 €
Monatliche Rate
0 €
Effektiver Jahreszins
0 %
Sollzinsbindung
10 Jahre
Bausubstanz & Energieausweis
| Baujahr | 1979 |
|---|---|
| Letzte Sanierung | 2024 |
| Objektzustand | Erstbezug nach Sanierung |
| Qualität der Austattung | Gehoben |
| Heizungsart | Gas-Heizung |
| Wesentliche Energieträger | Erdgas leicht |
| Energieausweis | liegt vor |
| Energieausweistyp | Verbrauchsausweis |
| Energieverbrauchskennwert | 169,0 kWh/(m²*a) |
| Energieeffizienzklasse | F |
169,0
kWh/(m²*a)
Energieeffizienzklasse F
- A+
- A
- B
- C
- D
- E
- F
- G
- H
- 0
- 25
- 50
- 75
- 100
- 125
- 150
- 175
- 200
- 225
- >250
Beschreibung des Objekts
Ausstattung
- großer Dielenbereich mit einer Marmortreppe zum Obergeschoss
- großzügiges Wohnzimmer mit Zugang zur einer überdachten Terrasse
- 8 Zimmer, davon 5 im Erdgeschoss und 3 im Obergeschoss mit Klimaanlage
- 2 Küchen
- 2 Bäder
- Gäste-WC
- Dachterrasse
- großer Garten
- Abstellraum
- Heizungsraum
Lage
Die Lage ist ideal: Elsten gehört zur Gemeinde Cappeln und besticht durch seine ruhige und naturnahe Umgebung. Schulen, Kindergärten, Einkaufsmöglichkeiten und die Anbindung an die B72 sind in wenigen Minuten erreichbar. Hier finden Sie eine perfekte Mischung aus ländlicher Ruhe und guter Infrastruktur.
Das Haus befindet sich zudem unmittelbar in der Nähe zur beliebten Schutzhütte Lütten Kamp - einen Teil des weitläufigen Erholungsgebietes an der Thülsfelder Talsperre. Ideal für Spaziergänge, Radtouren und Freizeitaktivitäten.
Die Bushaltestelle der Grundschule Elsten ist ca. 450 m vom Haus entfernt. Etwa 4 km weiter hat man die nächsten Einkaufmöglichkeiten.
Desweiteren hat Elsten eine zentrale und naturnahe Anbindung: Cappel, Cloppenburg, Vechta und Oldenburg sind schnell mit dem Auto erreichbar.
Sonstige Angaben
Die Objektbeschreibung basiert auf den Angaben des Eigentümers bzw. dessen Auskunftsbefugten. Für die Richtigkeit und Vollständigkeit der Daten übernimmt die Firma Robert Littmann Immobilien keine Gewährleistung oder Haftung.
Alle aufkommenden Kosten für den Kaufvertrag und dessen Durchführung trägt der Käufer. Gleiches gilt für die Grundewerbsteuer, die sich auf die Höhe des Kaufpreises bezieht.
Grundriss
Grundrisse EG plus OG
>
>
Adresse
49692 Cappeln (Oldenburg)
Interessante Orte
Preis- und Lageinformationen
Preistrend für Bestandsimmobilien in Cappeln (Oldenburg)