Objektnr: 1065405
Sie sind auf der Suche nach einem gemütlichen Zuhause für Ihre Familie, das Ihnen einen unkomplizierten Einzug ermöglicht? Dann machen Sie dieses einzigartige Objekt zu Ihrem neuen Lebensmittelpunkt. Echte Ruhe und Entspannung erleben Sie dank der idyllischen Waldrandlage der Immobilie. Das 1996 gebaute und 1999 final ausgebaute Objekt charakterisiert sich durch einen gepflegten Zustand und hochwertigen Ausbau.
Insgesamt ca. 691,79 m² Wohnfläche verteilt sich auf 3 Etagen und eine Einliegerwohnung. Dadurch kann die Immobilie nicht nur Paaren, sondern auch großen Familien oder Mehrgenerationenhaushalten ein neues Zuhause bieten. Die 4 Badezimmer wurden größtenteils mit italienischem Marmor und geschmackvollen Mosaikintarsien gestaltet. Ein Gäste-WC gehört ebenfalls zum Grundriss des Objektes. Die Einliegerwohnung verspricht hier besonders viel Flexibilität. Viele Köpfe, viele Hobbys, viele Ideen: Dank der großen Raumvielfalt können Sie das Zuhause nutzen, wie es Ihnen gefällt. Ein großer, lichtdurchfluteter Hobbyraum mit bodentiefen Fenstern hat das Potenzial u.a. für einen Spabereich. Zahlreiche Highlights sind im Angebot inbegriffen: die hochwertigen Schreinerarbeiten welche sich unter anderem in den handgearbeiteten Zimmertüren und der Bibliothek (Zirbelzimmer) widerspiegeln, die vom Schreiner gezimmerte Hauptküche mit handgemalten holländischen Fliesen,
2 hochwertige Kaminöfen, Fußbodenheizung in EG und DG, 2 Terrassen, 3 Balkone.
Zur weiteren Ausstattung gehören bspw. eine Fußbodenheizung und eine Doppelgarage mit direktem Hauszugang.
Hier erleben Sie Freizeit und Privatsphäre dank eines ca. 7.000 m² großen Grundstücks mit Privatzugang. Gute Anbindung und trotzdem fern dem Trubel. Die enorme Grundstücksgröße wird Naturfreunde begeistern.
Wenn Ihnen dieses Anwesen nicht ausreicht, steht in direkter Nachbarschaft ein Objekt mit weiteren ca. 870 qm Wohnfläche und 42.000 qm Grund zur Verfügung. Dieses wird in Kooperation mit Dahler Rosenheim angeboten.
Imposantes Anwesen: herrschaftliche Villa mit Einliegerwohnung auf großem Grundstück
83080 Oberaudorf
Die vollständige Adresse der Immobilie erhalten Sie vom Anbieter.
Auf Karte anzeigen
Die vollständige Adresse der Immobilie erhalten Sie vom Anbieter.
Finanzierungszertifikat
In nur zwei Minuten zu Ihrem persönlichen Finanzierungszertifkat.
Infos
| Haustyp | Villa |
|---|---|
| Etagenzahl | 3 |
| Wohnfläche ca. | 692 m2 |
| Nutzfläche | 393,93 m2 |
| Grundstücksfläche | 7.002,26 m2 |
| Bezugsfrei ab | nach Absprache |
| Zimmer | 13 |
| Schlafzimmer | 7 |
| Badezimmer | 4 |
| Garage/Stellplatz | Garage |
Kosten
| Kaufpreis |
3.370.000 € |
|---|---|
| Provision |
3,57 % Die Provision i.H.v. 3,57 % inkl. MwSt. ist mit Kaufvertragsbeurkundung fällig, sofern der Verkaufspreis über 83.000,00 € liegt. Liegt der Verkaufspreis dagegen bei/unter 83.000,00 €, ist die fest vereinbarte Mindestprovision i.H.v. mind. 5.950,00 € inkl. MwSt. mit Kaufvertragsbeurkundung fällig. Die Mindestprovision fällt insg. nur einmal an, wodurch Verkäufer und Käufer die Mindestprovision dann jeweils mit 2.975,00 € inkl. MwSt. tragen. |
Finanzierungsrechner:
Kaufpreis:
600.000 €
Eigenkapital:
600.000 €
Monatliche Rate
0 €
Effektiver Jahreszins
0 %
Sollzinsbindung
10 Jahre
Bausubstanz & Energieausweis
| Baujahr | 1996 |
|---|---|
| Letzte Sanierung | 1999 |
| Bauphase | Haus fertig gestellt |
| Qualität der Austattung | Gehoben |
| Heizungsart | Fußbodenheizung |
| Wesentliche Energieträger | Öl |
| Energieausweis | liegt vor |
| Energieausweistyp | Verbrauchsausweis |
| Energieverbrauchskennwert | 54,4 kWh/(m²*a) |
| Energieeffizienzklasse | B |
54,4
kWh/(m²*a)
Energieeffizienzklasse B
- A+
- A
- B
- C
- D
- E
- F
- G
- H
- 0
- 25
- 50
- 75
- 100
- 125
- 150
- 175
- 200
- 225
- >250
Beschreibung des Objekts
Ausstattung
+ In ruhiger Umgebung von Oberaudorf, beschaulich und sicher in Waldrandlage,
optimal für eine individuelle Nutzung
+ großzügiger Wohnbereich (ca. 639 qm) und zusätzliche Einliegerwohnung (ca. 53 qm)
+ Tolle Außenbereiche: großer Gartenbereich auf ca. 7.002 qm Grund lädt zum Verweilen ein -
zwei Terrassen und drei Balkone bereichern das Erlebnis
+ Genießen Sie den gepflegten & hochwertigen Zustand des Objektes - der Innenausbau
wurde erst 1999 vollzogen, das Objekt erstmals 2000 bezogen
+ Hochwertige Ausstattung des Hauses mit großer Raumvielfalt inklusive einer
Fußbodenheizung, 4 Bädern, 3 Küchen, 2 Kaminöfen und maßgefertigen Schreinerarbeiten
+ Das Objekt bietet viel Staufläche, sowie Platz für Pkw´s dank großer Doppelgarage und vieler
Außenstellplatzmöglichkeiten
Lage
Lage: Echte Ruhe und Entspannung dank idyllischer Waldrandlage in Oberaudorf-Auerbach
Bildung und Betreuung: Bildung und Betreuung vor Ort: ein Kindergarten und Grundschule
im Umkreis von max. 6 km
Nahversorgung: Verschiedene Anlaufstellen wie Supermarkt, Apotheke, Postfiliale und Bankfiliale in max. 6 km
Anbindung: Bus, Bahnhof und Autobahn komfortabel erreichbar - gute Anbindung an Fernstraßennetz und ÖPNV
Sonstige Angaben
Vereinbaren Sie noch heute einen Besichtigungstermin!
_____________________________________________________
Alle Angaben sind ohne Gewähr und basieren ausschließlich auf Informationen, die uns von unserem Auftraggeber zur Verfügung gestellt wurden. Wir übernehmen keine Gewähr für die Vollständigkeit, Richtigkeit und Aktualität der Angaben.
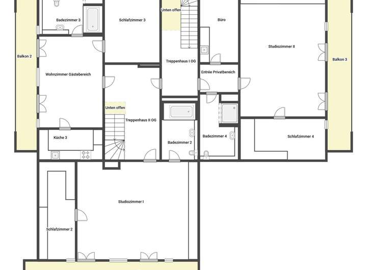
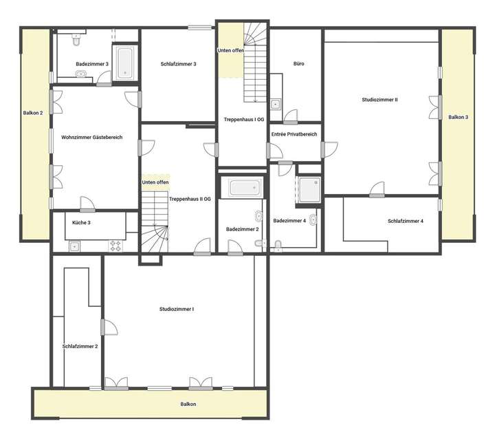
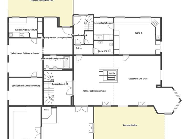
Grundriss
Grundriss Skizze EG
>
>
Grundriss Skizze OG
>
>
Grundriss Skizze UG
>
>
Adresse
83080 Oberaudorf
Interessante Orte
Preis- und Lageinformationen
Preistrend für Bestandsimmobilien in Oberaudorf