Dieser wunderschöne Bungalow in Aukrug wird nach deinen Wünschen und Vorstellungen projektiert und bietet dir mit einer Wohnfläche von 110,45 m² und einem großzügigen Grundstück von 1.042 m² ausreichend Platz, um deinen Wohntraum zu verwirklichen. Die besondere Architektur besticht durch eine moderne Fassade und die innovative Gestaltung mit zwei Querhäusern, die unter dem eleganten Walmdach eine einladende Einbuchtung bilden. Dieser Freisitz bietet dir die perfekte Gelegenheit, eine traumhafte Terrasse zu gestalten, die zum Entspannen und Genießen einlädt.
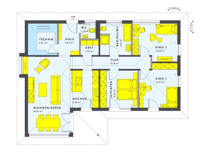
Im Inneren des Hauses erwarten dich vier helle und freundliche Zimmer, darunter ein Schlafzimmer und ein großzügiges Badezimmer. Das durchdachte Raumkonzept erlaubt es dir, den Wohnraum optimal zu nutzen. Die große Essgruppe im Wohnzimmer lädt zu geselligen Abenden ein, während eine Leseecke im Schlafzimmer ein Rückzugsort für ruhige Momente schafft.
Zusätzlich profitierst du von den herausragenden Leistungen von LivingHaus, die dir helfen, deinen Traum vom perfekten Zuhause zu verwirklichen. Die hochwertige Traumküche wird speziell auf deinen Grundriss abgestimmt und überzeugt mit modernster Technik und cleveren Stauraumlösungen. Das LivingHaus Bau-Cockpit sorgt dafür, dass du jederzeit den Überblick über dein Bauprojekt behältst und stressfrei bauen kannst. Mit I-KON, einer intelligenten Bauweise, wird dein Zuhause energieeffizient und umweltfreundlich gestaltet.
Finanziere dein Traumhaus mit dem Zuhause-Darlehen, das dir exklusive Vorteile bietet. Das Zuhause-Paket sorgt dafür, dass dein Haus mit einer hochwertigen Grundausstattung inklusive moderner Böden und stilvollen Sanitäranlagen geliefert wird. Und wenn du handwerklich begabt bist oder es werden möchtest, steht dir das DIY-Ausbau-Coaching zur Verfügung, bei dem dir Experten wertvolle Tipps für den Innenausbau geben.
Dein individuell gestalteter Bungalow in Aukrug - Ein Raum für deine Träume
24613 Aukrug
Die vollständige Adresse der Immobilie erhalten Sie vom Anbieter.
Auf Karte anzeigen
Die vollständige Adresse der Immobilie erhalten Sie vom Anbieter.
Finanzierungszertifikat
In nur zwei Minuten zu Ihrem persönlichen Finanzierungszertifkat.
Infos
| Haustyp | Bungalow |
|---|---|
| Wohnfläche ca. | 110 m2 |
| Nutzfläche | 110,45 m2 |
| Grundstücksfläche | 1.042 m2 |
| Zimmer | 4 |
| Schlafzimmer | 1 |
| Badezimmer | 1 |
Kosten
| Kaufpreis |
503.460 € |
|---|
Finanzierungsrechner:
Kaufpreis:
600.000 €
Eigenkapital:
600.000 €
Monatliche Rate
0 €
Effektiver Jahreszins
0 %
Sollzinsbindung
10 Jahre
Bausubstanz & Energieausweis
| Baujahr | 2027 |
|---|---|
| Bauphase | Haus in Planung (projektiert) |
| Energieausweis | liegt vor |
| Energieausweistyp | Bedarfsausweis |
| Energieverbrauchskennwert | 18,0 kWh/(m²*a) |
| Energieeffizienzklasse | A+ |
18,0
kWh/(m²*a)
Energieeffizienzklasse A+
- A+
- A
- B
- C
- D
- E
- F
- G
- H
- 0
- 25
- 50
- 75
- 100
- 125
- 150
- 175
- 200
- 225
- >250
Beschreibung des Objekts
Ausstattung
Die Ausstattung deines LivingHaus Bungalows ist auf höchste Qualität und Funktionalität ausgelegt. Du erhältst eine Traumküche, die individuell auf deinen Grundriss abgestimmt wird und mit modernster Technik sowie ästhetischem Design überzeugt. Das Zuhause-Paket sorgt für eine hochwertige Grundausstattung inklusive edler Türen, stilvoller Sanitäranlagen und moderner Böden.
Im Rahmen der I-KON-Lösung profitierst du von einer integrierten PV-Anlage samt Speicherbatterie, die deinen Strombedarf nachhaltig deckt. Die moderne Wärmepumpentechnik sorgt nicht nur für effizientes Heizen, sondern auch für ein angenehmes Raumklima.
Zusätzlich profitierst du von einer 18-monatigen Festpreisgarantie und umfassenden Bauversicherungen, die dich während des gesamten Bauprozesses absichern. Dein Haus wird mit einem hohen Vorfertigungsgrad gebaut, wodurch der Bauprozess effizient und reibungslos verläuft. Ob Bodenplatte oder Keller - alles wird im Bauvertrag aus einer Hand geregelt.
Mit dem DIY-Ausbau-Coaching wirst du zum Profi in deinem eigenen Zuhause und kannst den Innenausbau selbst gestalten. Dein zukünftiges Zuhause wird so nicht nur individuell, sondern auch sicher und passgenau für deine Bedürfnisse.
Lage
Aukrug bietet dir eine ideale Lebensqualität mit zahlreichen Annehmlichkeiten für Familien, Naturliebhaber und Pendler. In der Umgebung findest du verschiedene Bildungseinrichtungen, wie Kindergärten und Grundschulen, die für die Kleinsten eine hervorragende Betreuung gewährleisten. Die örtlichen Supermärkte und Geschäfte im Dorf sorgen dafür, dass du alle täglichen Besorgungen bequem erledigen kannst.
Für die gesundheitliche Versorgung stehen dir mehrere Ärzte und eine Apotheke in der Nähe zur Verfügung, sodass du im Bedarfsfall schnell Hilfe erhältst. Die Freizeitgestaltung in Aukrug ist vielfältig: Ob Wanderungen in der Natur, Fahrradtouren oder sportliche Aktivitäten - hier ist für jeden etwas dabei. Besonders die umliegende Landschaft lädt zu Ausflügen und Erholung ein.
Darüber hinaus bist du ideal an den öffentlichen Nahverkehr angebunden, was dir eine schnelle Anbindung an das Umland und die nächstgelegenen Städte ermöglicht. Die Autobahn ist ebenfalls schnell zu erreichen, sodass Pendler von hier aus problemlos zur Arbeit gelangen können. Diese Lage kombiniert ländliche Idylle mit urbanen Annehmlichkeiten und macht Aukrug zu einem perfekten Ort für dein neues Zuhause.
Sonstige Angaben
Das hier angebotene Grundstück ist im obigen Preis eingerechnet, es wird ohne zusätzliche Provision einen Living Haus - Bauherrn bereitgestellt.
Zusätzliche Baunebenkosten müssen noch hinzugerechnet werden, hierüber beraten wir dich gerne.
Wir bieten auch interessante Finanzierungsmöglichkeiten inklusive Beantragung aller Fördermittel!
Die Hausabbildung und die Bilder der Inneneinrichtung zeigen möglicherweise Extras, die nicht im Kaufpreis inbegriffen sind.
Gute Beratung ist der Anfang von Allem. Deshalb analysieren wir gemeinsam mit euch eure Vorstellungen, Wünsche und Bedürfnisse und finden das für dich und deiner Familie
Living Haus.
Interessiert? Kontaktiere mich und vereinbare noch heute einen kostenlosen und unverbindlichen Beratungstermin unter
0170-4711970
Grundriss
Gestaltungsbeispiel - Familien
>
>
Gestaltungsbeispiel - Familien
>
>
Gestaltungsbeispiel - Familien
>
>
Gestaltungsbeispiel - Wohnkom
>
>
Gestaltungsbeispiel - Clever W
>
>
Adresse
24613 Aukrug
Interessante Orte
Preis- und Lageinformationen
Preistrend für Bestandsimmobilien in Aukrug