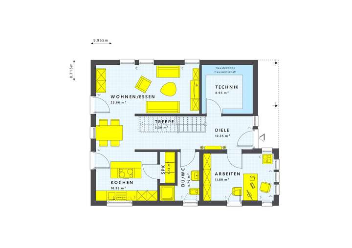
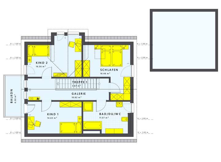
Dieses wunderschöne Einfamilienhaus in Aukrug wird speziell nach deinen Wünschen und Vorstellungen projektiert. Mit einer großzügigen Wohnfläche von 143,81 m² und einer Grundstücksgröße von 1051 m² bietet es dir und deiner Familie viel Platz zum Wohlfühlen. Das moderne Satteldach mit einer Neigung von 25 Grad sorgt für einen luftigen Charakter im Obergeschoss, während der Kniestock von 1,60 m das Raumgefühl zusätzlich optimiert. Große, bodentiefe Fenster durchfluten das gesamte Haus mit Licht und schaffen eine einladende Atmosphäre. Der Erker vergrößert den Wohnbereich und bietet einen herrlichen Ausblick auf die Umgebung.
LivingHaus bietet dir eine Reihe von zusätzlichen Leistungen, die dein Bauprojekt zu einem unvergesslichen Erlebnis machen. Die hochwertige Traumküche von Living Haus wird genau auf deinen Grundriss abgestimmt und kommt mit modernster Technik sowie cleveren Stauraumlösungen. Sie wird rechtzeitig zu deinem Einzug geliefert, sodass du sofort mit dem Kochen beginnen kannst.
Mit dem Living Haus Bau-Cockpit behältst du den Überblick über dein Bauprojekt. Die digitale App ermöglicht dir den einfachen Zugriff auf Zeitpläne und Dokumente, damit du stressfrei bauen kannst.
Das I-KON System sorgt dafür, dass dein Zuhause nachhaltig und energieeffizient gebaut wird und sich perfekt an deine Bedürfnisse anpasst.
Finanziere dein Traumhaus mit dem Zuhause-Darlehen, das dir bis zu 250.000 Euro zu besonders günstigen Zinssätzen bietet, inklusive staatlicher Förderprogramme.
Das Zuhause-Paket stellt sicher, dass dein Haus mit einer hochwertigen Grundausstattung geliefert wird, die moderne Böden, edle Türen und stilvolle Sanitäranlagen umfasst.
Wenn du handwerklich begabt bist, kannst du beim DIY-Ausbau-Coaching von Profis lernen, wie du den Innenausbau selbst meisterst. In nur drei Tagen erhältst du praxisnahe Tipps und Unterstützung.
LivingHaus garantiert dir ab dem Tag der Auftragsbestätigung eine 18-monatige Festpreisgarantie und bietet umfassende Bauversicherungen, damit du bei unvorhergesehenen Ereignissen gut abgesichert bist. Mit modernsten Technologien und einem hohen Vorfertigungsgrad wird der Bauprozess effizient gestaltet, sodass du schnell in dein neues Zuhause einziehen kannst.
Dein individuelles Traumhaus in Aukrug - Wo Wohnträume Wirklichkeit werden
24613 Aukrug
Die vollständige Adresse der Immobilie erhalten Sie vom Anbieter.
Auf Karte anzeigen
Die vollständige Adresse der Immobilie erhalten Sie vom Anbieter.
Finanzierungszertifikat
In nur zwei Minuten zu Ihrem persönlichen Finanzierungszertifkat.
Infos
| Haustyp | Einfamilienhaus |
|---|---|
| Etagenzahl | 2 |
| Wohnfläche ca. | 143 m2 |
| Nutzfläche | 143,81 m2 |
| Grundstücksfläche | 1.051 m2 |
| Bezugsfrei ab | 2027 |
| Zimmer | 5 |
| Schlafzimmer | 1 |
| Badezimmer | 1 |
Kosten
| Kaufpreis |
533.535 € |
|---|
Finanzierungsrechner:
Kaufpreis:
600.000 €
Eigenkapital:
600.000 €
Monatliche Rate
0 €
Effektiver Jahreszins
0 %
Sollzinsbindung
10 Jahre
Bausubstanz & Energieausweis
| Baujahr | 2027 |
|---|---|
| Bauphase | Haus in Planung (projektiert) |
| Qualität der Austattung | Gehoben |
| Energieausweis | liegt vor |
| Energieausweistyp | Bedarfsausweis |
| Energieverbrauchskennwert | 18,0 kWh/(m²*a) |
| Energieeffizienzklasse | A+ |
18,0
kWh/(m²*a)
Energieeffizienzklasse A+
- A+
- A
- B
- C
- D
- E
- F
- G
- H
- 0
- 25
- 50
- 75
- 100
- 125
- 150
- 175
- 200
- 225
- >250
Beschreibung des Objekts
Ausstattung
Dein individuelles Traumhaus wird mit einer hochwertigen Grundausstattung geliefert, die moderne Böden, edle Türen und stilvolle Sanitäranlagen umfasst. Für die Küche bekommst du eine maßgeschneiderte Lösung, die perfekt in deinen Grundriss passt. Zudem erwarten dich robuste und moderne Fliesen im gesamten Erdgeschoss sowie bodengleiche Duschen mit Echtglasabtrennung. Die Bauweise bietet dir eine hohe Vorfertigung, wodurch der Bauprozess effizient gestaltet wird. Du erhältst alle Innenausbaumaterialien und kannst auch Baustrom- und Bauwasseranschlüsse über Living Haus organisieren. Zusätzlich steigern aluminiumgeschäumte Rollläden den sommerlichen Hitzeschutz und verbessern die Wärmedämmung im Winter. Dein Zuhause wird so nicht nur ästhetisch, sondern auch funktional und nachhaltig. Das sorgt für ein durchdachtes Gesamtkonzept, das all deinen Bedürfnissen gerecht wird. So wird dein Wunsch nach einem "Wie ich es will Fertighaus" Wirklichkeit.
Lage
Aukrug ist ein malerischer Ort, der dir und deiner Familie eine Vielzahl an Einrichtungen und Freizeitmöglichkeiten bietet. In unmittelbarer Nähe findest du mehrere Kindergärten und Schulen, darunter die Grundschule Aukrug, die für ihre hohe Bildungsqualität bekannt ist und von Eltern sehr geschätzt wird.
Für deine Einkäufe stehen dir zahlreiche Supermärkte zur Verfügung, darunter ein EDEKA und ein Netto, die alles für den täglichen Bedarf bieten. Auch Ärzte und Apotheken sind in der Umgebung gut erreichbar, sodass du jederzeit eine medizinische Versorgung in der Nähe hast.
Die Naturliebhaber kommen in Aukrug voll auf ihre Kosten. Die Umgebung bietet reichlich Gelegenheit für entspannende Spaziergänge und Fahrradtouren durch die herrliche Landschaft. Zudem gibt es Freizeitangebote wie Sportvereine und Spielplätze, die ideal für Familien sind.
Die Anbindung an den öffentlichen Nahverkehr ist ebenfalls hervorragend. Mit Bussen kommst du schnell in die nahegelegenen Städte, und die Autobahnauffahrt ist nur wenige Minuten entfernt, was Pendlern eine bequeme Anreise in die umliegenden Städte ermöglicht.
All diese Faktoren machen Aukrug zu einem idealen Standort für dein neues Zuhause, wo du Leben, Arbeiten und Erholung perfekt miteinander verbinden kannst.
Sonstige Angaben
Das hier angebotene Grundstück ist im obigen Preis eingerechnet, es wird ohne zusätzliche Provision einen Living Haus - Bauherrn bereitgestellt.
Zusätzliche Baunebenkosten müssen noch hinzugerechnet werden, hierüber beraten wir dich gerne.
Wir bieten auch interessante Finanzierungsmöglichkeiten inklusive Beantragung aller Fördermittel!
Die Hausabbildung und die Bilder der Inneneinrichtung zeigen möglicherweise Extras, die nicht im Kaufpreis inbegriffen sind.
Gute Beratung ist der Anfang von Allem. Deshalb analysieren wir gemeinsam mit euch eure Vorstellungen, Wünsche und Bedürfnisse und finden das für dich und deiner Familie
Living Haus.
Interessiert? Kontaktiere mich und vereinbare noch heute einen kostenlosen und unverbindlichen Beratungstermin unter
0170-4711970
Grundriss
Konzeptbeispiel - Livinghaus:
>
>
Konzeptbeispiel - Familienfreu
>
>
Konzeptbeispiel - Livinghaus:
>
>
Konzeptbeispiel - Cleveres Fam
>
>
Konzeptbeispiel - Livinghaus:
>
>
Konzeptbeispiel - Familienfreu
>
>
Konzeptbeispiel - Livinghaus:
>
>
Konzeptbeispiel - Familienfreu
>
>
Adresse
24613 Aukrug
Interessante Orte
Preis- und Lageinformationen
Preistrend für Bestandsimmobilien in Aukrug