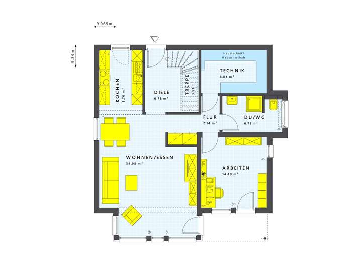
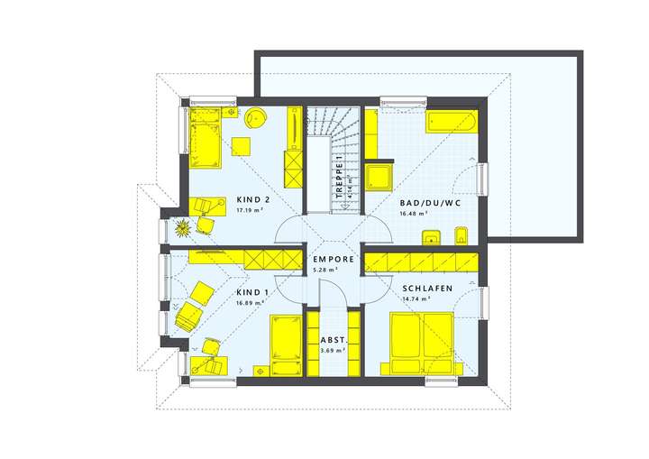
Willkommen in deinem zukünftigen Zuhause in Aukrug, einer Stadtvilla im Landhausstil, die deinen Vorstellungen und Wünschen gerecht wird. Dieses großzügige Fertighaus bietet dir mit 6 Zimmern und einer Wohnfläche von 177,02 m² jede Menge Platz für deine Familie. Das Walmdach sorgt nicht nur für ein ansprechendes Äußeres, sondern verleiht auch dem Obergeschoss eine beeindruckende Raumhöhe, die dir viel Gestaltungsfreiraum ermöglicht. Zusätzliche Wohnraumvergrößerungen sorgen für noch mehr Licht und Platz, sodass du dich in deinem neuen Zuhause rundum wohlfühlen kannst.
LivingHaus bietet dir nicht nur ein individuell gestaltetes Haus, sondern auch zahlreiche zusätzliche Leistungen, die deinen Bauprozess erleichtern und verschönern. Die hochwertige Traumküche wird passgenau auf deinen Grundriss abgestimmt und kommt mit modernster Technik, cleveren Stauraumlösungen und einem ästhetischen Design. Du kannst direkt nach deinem Einzug in deine neue Küche starten und deine Lieblingsgerichte zubereiten.
Mit dem LivingHaus Bau-Cockpit behältst du stets den Überblick über dein Bauprojekt. Die digitale Bau-App bietet dir Zugriff auf alle wichtigen Informationen von Zeitplan bis Dokumentenverwaltung, und das alles bequem auf deinem Smartphone. Stressfreies Bauen wird so zum Kinderspiel!
Das I-KON-System ermöglicht dir intelligentes Bauen, das nachhaltige Materialien mit modernster Technik kombiniert. Dein Zuhause wird energieeffizient und umweltfreundlich, ganz nach deinen Bedürfnissen.
Finanzielle Unterstützung erhältst du durch das Zuhause-Darlehen, das dir bis zu 250.000 EUR zu besonders günstigen Konditionen bietet, sodass du dir dein Traumhaus ohne finanzielle Sorgen erfüllen kannst.
Das Zuhause-Paket sorgt dafür, dass dein Haus mit einer hochwertigen Grundausstattung geliefert wird. Moderne Böden, edle Türen und stilvolle Sanitäranlagen sind bereits im Paket enthalten, sodass du sofort einziehen kannst, ohne lange auf die Fertigstellung der Ausstattung warten zu müssen.
Und wenn du gerne selbst Hand anlegen möchtest, bietet dir das DIY-Ausbau-Coaching die Möglichkeit, in nur drei Tagen von Experten zu lernen, wie du den Innenausbau selbst meisterst. So kannst du dein Zuhause nicht nur gestalten, sondern auch deine handwerklichen Fähigkeiten erweitern!
Dein individuelles LivingHaus - Ein Traumhaus ganz nach deinen Wünschen!
24613 Aukrug
Die vollständige Adresse der Immobilie erhalten Sie vom Anbieter.
Auf Karte anzeigen
Die vollständige Adresse der Immobilie erhalten Sie vom Anbieter.
Finanzierungszertifikat
In nur zwei Minuten zu Ihrem persönlichen Finanzierungszertifkat.
Infos
| Haustyp | Einfamilienhaus |
|---|---|
| Etagenzahl | 2 |
| Wohnfläche ca. | 177 m2 |
| Nutzfläche | 177,02 m2 |
| Grundstücksfläche | 1.048 m2 |
| Zimmer | 6 |
| Schlafzimmer | 4 |
| Badezimmer | 2 |
Kosten
| Kaufpreis |
558.365 € |
|---|
Finanzierungsrechner:
Kaufpreis:
600.000 €
Eigenkapital:
600.000 €
Monatliche Rate
0 €
Effektiver Jahreszins
0 %
Sollzinsbindung
10 Jahre
Bausubstanz & Energieausweis
| Baujahr | 2027 |
|---|---|
| Bauphase | Haus in Planung (projektiert) |
| Qualität der Austattung | Gehoben |
| Energieausweis | liegt vor |
| Energieausweistyp | Bedarfsausweis |
| Energieverbrauchskennwert | 18,0 kWh/(m²*a) |
| Energieeffizienzklasse | A+ |
18,0
kWh/(m²*a)
Energieeffizienzklasse A+
- A+
- A
- B
- C
- D
- E
- F
- G
- H
- 0
- 25
- 50
- 75
- 100
- 125
- 150
- 175
- 200
- 225
- >250
Beschreibung des Objekts
Ausstattung
Dein zukünftiges Zuhause bietet eine Vielzahl an hochwertigen Ausstattungsmerkmalen, die deinen Wohnkomfort steigern. Dazu gehören moderne Böden, edle Türen und stilvolle Sanitäranlagen, die perfekt aufeinander abgestimmt sind. Die hochwertige Traumküche wird individuell für dich geplant und enthält modernste Technik sowie praktische Stauraumlösungen.
Das Zuhause-Paket stellt sicher, dass du alles fix und fertig geliefert bekommst, während die energieeffizienten Systeme wie die moderne Wärmepumpentechnik mit Komfortlüftung für ein angenehmes Raumklima sorgen.
Zusätzlich profitierst du von einer hochwertigen Grundausstattung, die bereits im Preis enthalten ist, was dir die Sorge um zusätzliche Kosten nimmt. Dein "Wie ich es will Fertighaus" wartet darauf, von dir gestaltet zu werden!
Lage
Aukrug ist ein malerischer Ort, der dir und deiner Familie ein ideales Wohnumfeld bietet. In der Umgebung befinden sich mehrere Bildungseinrichtungen, darunter Grundschulen und weiterführende Schulen, die mit guten Bewertungen überzeugen. Die Nähe zu Kindergärten sorgt dafür, dass die Kleinsten bestens betreut werden.
Für deine täglichen Einkäufe findest du in Aukrug zahlreiche Supermärkte und Fachgeschäfte, die alles bieten, was du benötigst. Ärzte und Apotheken sind ebenfalls in der Nähe, sodass du stets gut versorgt bist.
Die Freizeitmöglichkeiten sind vielfältig: Ob Wandern, Radfahren oder einfach die Natur genießen - Aukrug und die Umgebung bieten zahlreiche Möglichkeiten, um aktiv zu sein und die Freizeit zu verbringen. Zudem ist die Anbindung an den öffentlichen Nahverkehr sowie die Autobahn hervorragend, was dir die Pendelzeit zu Arbeitsstellen in umliegenden Städten erheblich erleichtert.
Mit einem schönen Mix aus ländlicher Idylle und urbaner Nähe ist Aukrug der perfekte Ort für Familien, Naturliebhaber und Pendler.
Sonstige Angaben
Das hier angebotene Grundstück ist im obigen Preis eingerechnet, es wird ohne zusätzliche Provision einen Living Haus - Bauherrn bereitgestellt.
Zusätzliche Baunebenkosten müssen noch hinzugerechnet werden, hierüber beraten wir dich gerne.
Wir bieten auch interessante Finanzierungsmöglichkeiten inklusive Beantragung aller Fördermittel!
Die Hausabbildung und die Bilder der Inneneinrichtung zeigen möglicherweise Extras, die nicht im Kaufpreis inbegriffen sind.
Gute Beratung ist der Anfang von Allem. Deshalb analysieren wir gemeinsam mit euch eure Vorstellungen, Wünsche und Bedürfnisse und finden das für dich und deiner Familie
Living Haus.
Interessiert? Kontaktiere mich und vereinbare noch heute einen kostenlosen und unverbindlichen Beratungstermin unter
0170-4711970
Grundriss
Gestaltungsbeispiel - Modern u
>
>
Gestaltungsbeispiel - Familien
>
>
Gestaltungsbeispiel - Familien
>
>
Gestaltungsbeispiel - Wohnraum
>
>
Livinghaus: Clever Wohnen EG
>
>
Gestaltungsbeispiel - Familien
>
>
Gestaltungsbeispiel - Wohnraum
>
>
Gestaltungsbeispiel - Wohnraum
>
>
Gestaltungsbeispiel - Livingha
>
>
Gestaltungsbeispiel - Familien
>
>
Gestaltungsbeispiel - Wohnen E
>
>
Gestaltungsbeispiel - Familien
>
>
Gestaltungsbeispiel - Familien
>
>
Gestaltungsbeispiel - Wohnraum
>
>
Adresse
24613 Aukrug
Interessante Orte
Preis- und Lageinformationen
Preistrend für Bestandsimmobilien in Aukrug