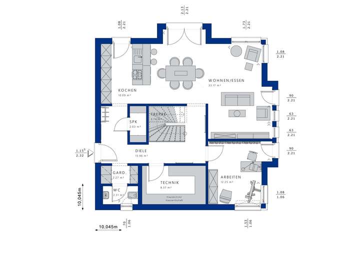
Das Bien-Zenker EVOLUTION 161 ist mehr als nur ein Haus - es ist Ihr maßgeschneiderter Wohntraum, der sich nach Ihren Wünschen formen lässt. Mit einer beeindruckenden Wohnfläche von 175 m² auf zwei Etagen bietet dieses Zuhause Platz für individuelle Entfaltung und harmonisches Familienleben. Die fünf großzügigen Zimmer sind durchdacht gestaltet: Drei Schlafzimmer bieten Rückzugsorte für alle Familienmitglieder, während zwei stilvolle Badezimmer Komfort und Funktionalität vereinen. Die offene Gestaltung des Wohnbereichs schafft fließende Übergänge und eine lichtdurchflutete Atmosphäre, die zum Wohlfühlen einlädt.
Ein besonderes Highlight des EVOLUTION 161 ist die Auswahlmöglichkeit zwischen verschiedenen Dachformen und Designs, sodass Sie Ihr neues Zuhause perfekt an Ihren persönlichen Geschmack anpassen können. Auf dem weitläufigen Grundstück von 1300 m² finden Sie reichlich Raum für Freizeitaktivitäten im Freien oder einen erholsamen Gartenbereich. Der großzügige Außenbereich erweitert den Lebensraum ins Grüne und lädt zu geselligen Stunden mit Familie und Freunden ein.
Besonders komfortabel wird das Wohnerlebnis durch die schlüsselfertige Ausbaustufe, die Ihnen Stress beim Hausbau erspart. Vom Fundament bis zur letzten Schraube übernehmen wir den gesamten Bauprozess. Ziehen Sie in Ihr perfekt ausgestattetes Heim ein, ohne sich um Details kümmern zu müssen. Diese Rundum-Sorglos-Lösung bedeutet weniger Planungsaufwand und mehr Zeit für die Vorfreude auf Ihr neues Leben im Bien-Zenker Haus.
Bei Bien-Zenker ist es nie nur "Haus." Es ist Zuhause, es ist Ankommen, es ist Familie. Bien-Zenker hat mit über 80.000 gebauten Häusern, mehr als 700 Mitarbeitenden und über 115 Jahren Erfolgsgeschichte seinen Sitz im hessischen Schlüchtern und zählt zu den größten Fertighausanbietern Deutschlands. Dank Know-how, Leidenschaft und Einfühlungsvermögen werden Baufamilien individuell beraten und unterstützt - bis sie den Schlüssel zu ihrem eigenen Heim drehen können. Mit wohngesunden Materialien und zukunftsweisenden Standards ist jedes Bien-Zenker Haus zukunftssicher.
Grundrisse und Abbildungen können Extras zeigen. Flächenangaben nach DIN 277.
Ihr Traumhaus im Hamburger Stadtteil - Volksdorf
22359 Hamburg
Die vollständige Adresse der Immobilie erhalten Sie vom Anbieter.
Auf Karte anzeigen
Die vollständige Adresse der Immobilie erhalten Sie vom Anbieter.
Finanzierungszertifikat
In nur zwei Minuten zu Ihrem persönlichen Finanzierungszertifkat.
Infos
| Wohnfläche ca. | 175 m2 |
|---|---|
| Grundstücksfläche | 1.300 m2 |
| Zimmer | 5 |
| Schlafzimmer | 3 |
| Badezimmer | 2 |
Kosten
| Kaufpreis |
1.425.400 € |
|---|
Finanzierungsrechner:
Kaufpreis:
600.000 €
Eigenkapital:
600.000 €
Monatliche Rate
0 €
Effektiver Jahreszins
0 %
Sollzinsbindung
10 Jahre
Bausubstanz & Energieausweis
| Baujahr | unbekannt |
|---|---|
| Bauphase | Haus in Planung (projektiert) |
| Qualität der Austattung | Gehoben |
Beschreibung des Objekts
Ausstattung
Mit fünf geräumigen Zimmern auf einer Fläche von 175 m² bietet dieses Bien-Zenker Haus ausreichend Platz für eine ganze Familie oder anspruchsvolle Paare, die Wert auf großzügiges Wohnen legen. Die intelligente Raumaufteilung stellt sicher, dass Privatsphäre gewahrt bleibt: Drei komfortable Schlafzimmer bieten Rückzugsmöglichkeiten für Eltern und Kinder gleichermaßen. Zwei Badezimmer sorgen dafür, dass der Start in den Tag reibungslos verläuft und niemand warten muss.
Der weitläufige Garten auf dem 1300 m² großen Grundstück ist ein Paradies für Naturliebhaber und bietet unzählige Möglichkeiten zur Entspannung oder zum Spielen mit den Kindern. Hier können Sie Ihre persönliche Oase gestalten - sei es durch einen gepflegten Rasen oder kreative Landschaftsgestaltung. Die lichtdurchfluteten Räume im Inneren des Hauses schaffen eine Verbindung zur Natur draußen und laden dazu ein, jede Jahreszeit in vollen Zügen zu genießen.
Die schlüsselfertige Ausbaustufe sorgt dafür, dass Sie ohne Umwege in Ihr neues Zuhause einziehen können - alles wurde für Sie vorbereitet! Von der hochwertigen Ausstattung bis hin zur modernen Technik haben wir an alles gedacht. So sparen Sie Zeit beim Bauprozess und können sich ganz auf das Wesentliche konzentrieren: das Genießen Ihres neuen Zuhauses von Beginn an.
Lage
Hamburg bietet eine einmalige Kombination aus urbanem Flair und naturnaher Umgebung - ideal für Familien sowie Berufstätige gleichermaßen! Im Stadtteil Volksdorf befinden sich zahlreiche Schulen unterschiedlicher Bildungszweige sowie Kindergärten, was besonders für Familien mit Kindern von Vorteil ist. Für Ihre Gesundheit stehen diverse Arztpraxen sowie Apotheken bereit; Krankenhäuser sind ebenfalls schnell erreichbar.
Die Einkaufsmöglichkeiten reichen vom charmanten Wochenmarkt bis hin zu großen Einkaufszentren - alles leicht zugänglich dank eines hervorragend ausgebauten öffentlichen Nahverkehrssystems (ÖPNV), das schnelle Verbindungen innerhalb der Stadt gewährleistet. Zudem liegt Hamburg verkehrstechnisch optimal: Die Autobahnanschlüsse ermöglichen rasche Fahrten sowohl ins Umland als auch in andere Teile Deutschlands.
Freizeitmöglichkeiten gibt es reichlich: Ob entspannte Spaziergänge entlang der Alster oder kulturelle Highlights wie Museen oder Theaterbesuche - hier kommt jeder auf seine Kosten! Auch Sportbegeisterte finden zahlreiche Angebote vor ihrer Haustür; ob Radfahren am Elbufer oder Joggen durch grüne Parkanlagen.
Sonstige Angaben
Der hier angegebene Wert zur zu zahlenden Grunderwerbsteuer ist ein vom Portalbetreiber automatisierter Wert, der nicht der Realität entspricht, da die Grunderwerbsteuer nur auf den im Gesamtangebot einberechneten Grundstückswert berechnet wird.
Inkl. PV - Anlage und Speicher für die eigene Stromversorgung
Auf Wunsch können alle Kriterien für eine KFN - QNG Förderung erfüllt werden.
Hausabbildungen mit Sonderwünschen
Grundrisse können individuell geändert und angepasst werden
Auf Wunsch ist ein Keller möglich
Adresse
22359 Hamburg
Interessante Orte
Preis- und Lageinformationen
Preistrend für Bestandsimmobilien in Volksdorf
>
>