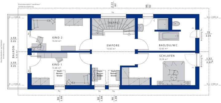
Willkommen in Ihrem zukünftigen Zuhause, dem BALANCE 148, das nach Ihren persönlichen Wünschen und Vorstellungen in Hamburg projektiert wird. Dieses architektonisch ansprechende Fertighaus vereint modernes Design mit durchdachter Funktionalität. Die zentrale Geschosstreppe ist nicht nur ein stilvolles Designelement, sondern verbindet die beiden Etagen harmonisch und schafft einen klaren, zonierten Wohnraum für die gesamte Familie. Mit einer großzügigen Wohnfläche von 150 m² und vier Zimmern bietet das BALANCE 148 genügend Platz für Ihre individuellen Bedürfnisse. Die lichtdurchflutete Empore mit kreativem Platz wird zum Herzstück des Hauses, wo Sie entspannen oder arbeiten können. Die drei Schlafzimmer und zwei Badezimmer sind strategisch angeordnet, um Privatsphäre und Komfort zu gewährleisten, während der offene Wohn- und Essbereich zu geselligen Abenden einlädt.
Die komfortable Ausstattung des BALANCE 148 umfasst zahlreiche Details, die Ihren Alltag bereichern. Die lichtdurchfluteten Räumlichkeiten schaffen eine warme und einladende Atmosphäre. Der großzügige Garten mit einer Fläche von 1000 m² lädt zu entspannten Stunden im Freien ein und bietet ausreichend Raum für Ihre persönlichen Gestaltungsideen. Ob Grillabende mit Freunden oder ruhige Momente im Grünen - hier finden Sie den perfekten Rückzugsort. Zudem sind praktische Abstellräume und die Möglichkeit eines Kellers vorhanden, die Ihnen zusätzlichen Stauraum für Ihre Freizeitaktivitäten bieten.
Wir übernehmen den kompletten Hausbau für Sie - vom Rohbau bis zur letzten Fliese. Dieses Angebot in der Ausbaustufe "Schlüsselfertig" gewährleistet, dass alle Arbeiten von unserem erfahrenen Team übernommen werden. Dabei erfüllen wir sämtliche Anforderungen des staatlichen Qualitätssiegels für Nachhaltigkeit, sodass Sie nicht nur von maximalem Komfort profitieren, sondern auch attraktive Förderungen über die KfW in Anspruch nehmen können. Der Bauablauf gestaltet sich für Sie äußerst komfortabel, da Sie sich entspannt zurücklehnen und auf Ihr fertiges Zuhause freuen können.
Bei Bien-Zenker ist es nie nur "Haus." Es ist Zuhause, es ist Ankommen, es ist Familie. Bien-Zenker, das sind 80.000 gebaute Häuser, mehr als 700 Mitarbeitende und über 115 Jahre Erfolgsgeschichte. Der Pionier des Fertighauses mit Sitz im hessischen Schlüchtern zählt zu den größten und erfahrensten Fertighausanbietern Deutschlands. Dank Know-how, Leidenschaft und Einfühlungsvermögen wird jede Baufamilie individuell und kompetent beraten und unterstützt - bis sie den Schlüssel in die Tür des eigenen Heims stecken können. Mit wohngesunden Materialien und zukunftsweisenden Standards ist nicht nur jedes Bien-Zenker Haus für die Zukunft gerüstet, sondern auch jeder Bauherr.
Grundrisse und Abbildungen können Extras zeigen. Flächenangaben nach DIN 277.
Bien-Zenker: Ihr Wunschhaus im Hamburger Norden mit guter Anbindung
22415 Hamburg
Die vollständige Adresse der Immobilie erhalten Sie vom Anbieter.
Auf Karte anzeigen
Die vollständige Adresse der Immobilie erhalten Sie vom Anbieter.
Finanzierungszertifikat
In nur zwei Minuten zu Ihrem persönlichen Finanzierungszertifkat.
Infos
| Haustyp | Einfamilienhaus |
|---|---|
| Wohnfläche ca. | 150 m2 |
| Grundstücksfläche | 1.000 m2 |
| Zimmer | 4 |
| Schlafzimmer | 3 |
| Badezimmer | 2 |
Kosten
| Kaufpreis |
849.560 € |
|---|
Finanzierungsrechner:
Kaufpreis:
600.000 €
Eigenkapital:
600.000 €
Monatliche Rate
0 €
Effektiver Jahreszins
0 %
Sollzinsbindung
10 Jahre
Bausubstanz & Energieausweis
| Baujahr | unbekannt |
|---|---|
| Bauphase | Haus in Planung (projektiert) |
| Qualität der Austattung | Gehoben |
Beschreibung des Objekts
Ausstattung
In Ihrem neuen Zuhause im BALANCE 148 erwartet Sie eine durchdachte Grundrissgestaltung, die Ihnen ein harmonisches Wohngefühl vermittelt. Mit insgesamt vier Zimmern, darunter drei einladende Schlafzimmer, bietet das Haus ausreichend Platz für Ihre Familie. Die beiden Badezimmer sind so angeordnet, dass sie sowohl Funktionalität als auch Privatsphäre gewährleisten. Der offene Wohnbereich, der nahtlos in die Küche übergeht, lädt zu geselligen Abenden ein und sorgt für eine angenehme Raumwirkung. Hier können Sie mit Ihrer Familie unvergessliche Momente verbringen und das Zusammensein genießen.
Der Komfort des BALANCE 148 wird durch zahlreiche Details verstärkt. Die lichtdurchfluteten Räume schaffen eine angenehme Atmosphäre und sind ideal, um kreative Ideen zu verwirklichen. Die Empore im Obergeschoss dient als perfekter Rückzugsort für Ihre Hobbys oder als Spielbereich für die Kinder. Der großzügige Garten bietet Ihnen nicht nur Platz für entspannende Stunden im Freien, sondern auch die Möglichkeit, individuelle Gestaltungsideen zu verwirklichen. Ob eine gemütliche Terrasse, ein Spielplatz für die Kinder oder ein kleiner Gemüsegarten - Ihrer Fantasie sind keine Grenzen gesetzt.
Mit der Ausbaustufe "Schlüsselfertig" haben Sie die Gewissheit, dass der gesamte Bauprozess von erfahrenen Fachleuten durchgeführt wird. Dies bedeutet für Sie weniger Stress und mehr Zeit für die schönen Dinge im Leben. Der Preis umfasst alle Bau- und Innenausbauarbeiten, sodass Sie sich um nichts kümmern müssen. Zudem profitieren Sie von den hohen Standards in Bezug auf Nachhaltigkeit und Qualität, die durch das staatliche Qualitätssiegel garantiert werden. Ihr neues Zuhause wird nicht nur ein Ort des Ankommens, sondern auch ein Ort, der umweltfreundlich und zukunftssicher ist.
Lage
Die Lage Ihres neuen Zuhauses in Hamburg, speziell im Stadtteil Langenhorn, bietet Ihnen eine hervorragende Anbindung an alle wichtigen Einrichtungen des Lebens. In unmittelbarer Nähe finden Sie eine Vielzahl von Bildungseinrichtungen, darunter Kindergärten, Grundschulen und weiterführende Schulen, die bequem zu Fuß oder mit dem Fahrrad erreichbar sind. Die Gesundheitsversorgung ist ebenfalls optimal, mit mehreren Arztpraxen und einem Krankenhaus in der Umgebung. Einkaufsmöglichkeiten für den täglichen Bedarf sind zahlreich vorhanden, sodass Sie Ihre Besorgungen schnell und unkompliziert erledigen können.
Die Freizeitgestaltung kommt in dieser lebendigen Stadt nicht zu kurz. Parks und Grünflächen laden zu sportlichen Aktivitäten und entspannten Tagen im Freien ein. Zudem bietet Hamburg ein vielfältiges kulturelles Angebot, einschließlich Museen, Theater und Veranstaltungen. Die Anbindung an den öffentlichen Nahverkehr ist hervorragend, mit U-Bahn- und Buslinien, die Sie in kürzester Zeit in die Innenstadt bringen. Auch die Autobahn ist schnell erreichbar, was Ihnen eine unkomplizierte Anbindung an die umliegenden Städte und Regionen ermöglicht. So genießen Sie die Vorzüge des urbanen Lebens und gleichzeitig die Ruhe Ihres neuen Zuhauses.
Sonstige Angaben
Der hier angegebene Wert zur zu zahlenden Grunderwerbsteuer ist ein vom Portalbetreiber automatisierter Wert, der nicht der Realität entspricht, da die Grunderwerbsteuer nur auf den im Gesamtangebot einberechneten Grundstückswert berechnet wird.
Inkl. PV - Anlage und Speicher für die eigene Stromversorgung
Auf Wunsch können alle Kriterien für eine KFN - QNG Förderung erfüllt werden.
Hausabbildungen mit Sonderwünschen
Grundrisse können individuell geändert und angepasst werden
Auf Wunsch ist ein Keller möglich
Adresse
22415 Hamburg
Interessante Orte
Preis- und Lageinformationen
Preistrend für Bestandsimmobilien in Langenhorn
>
>