In grüner Lage von Vettweiß-Frangenheim erwartet Sie ein Haus, das durch seine Größe, Vielzahl an Zimmern und seinen außergewöhnlich schönen Garten besticht.
Auf einem ca. 3400 Quadratmeter großen Grundstück befinden sich ein Wohnhaus mit rund 199,77 Quadratmetern Wohnfläche, eine separate Einliegerwohnung mit ca. 62,19 Quadratmetern, ein liebevoll angelegter Garten auf dem Grundstück mit ca. 1316 m² sowie eine idyllische Streuobstwiese mit Obst- und Nussbäumen von ca. 2084 m². Die Größe und Struktur eignen sich für Familien, Mehrgenerationenwohnen, Arbeiten von zu Hause sowie für die Kombination aus Eigennutzung und langfristiger oder zeitweiser Vermietung für Urlaube und Retreats auf dem Land.
Die klassischen bodentiefen Sprossenfenster aus Holz prägen den Charakter des Hauses und unterstreichen eine gemütliche und wohnliche Ausstrahlung. Dieser Eindruck setzt sich konsequent fort. Das Erdgeschoss in Hochparterre bildet den zentralen Lebensmittelpunkt des Hauses. Hier befinden sich die Küche, ein separates Esszimmer, das Wohnzimmer mit Kamin, ein Abstellraum und ein Gäste-WC. Bodentiefe Fenster öffnen den Wohnbereich zur Terrasse und in den Garten. Die überdachte Terrasse ist mit einem Infrarotstrahler ausgestattet und kann dadurch fast ganzjährig genutzt werden. Sie wird schnell zum bevorzugten Platz für lange Abende oder entspannte Stunden im Freien. Ebenfalls auf dieser Ebene liegt ein Schlafzimmer mit einem großen Badezimmer. Besonders praktisch ist der zweite Eingang, der direkt in den Elterntrakt führt und zusätzliche Privatsphäre ermöglicht. Das Erdgeschoss bietet damit die Möglichkeit, Wohnen auch barrierefrei auf einer Ebene zu organisieren oder zu separieren.
In der zweiten Etage eröffnet sich ein beeindruckendes Zimmerangebot. Insgesamt fünf Zimmer lassen sich als Kinderzimmer, Gästezimmer, Arbeitsbereiche oder Rückzugsorte nutzen. Hier stehen ein Duschbad und ein Wannenbad zur Verfügung. Eines ist bereits saniert und zeitgemäß ausgestattet, das zweite Bad ist in einem älteren Zustand. Im Flur befindet sich zusätzlich die Dachluke zum Spitzboden. Ein besonderer Clou ist eine Holz-Galerie im Treppenhaus die über das Obergeschoss zugänglich ist.
Ein weiterer Mehrwert der Immobilie ist die separate barrierefreie Einliegerwohnung mit ca. 62,19 m² Wohnfläche. Diese unterteilt sich in Schlafzimmer, Wohnzimmer mit offener Küche, barrierefreies Bad sowie großen Abstellraum. Sie eignet sich für für Angehörige, als Büroeinheit oder zur Vermietung und schafft damit zusätzliche Flexibilität in der Nutzung des Hauses und auch in der finanziellen Planung.
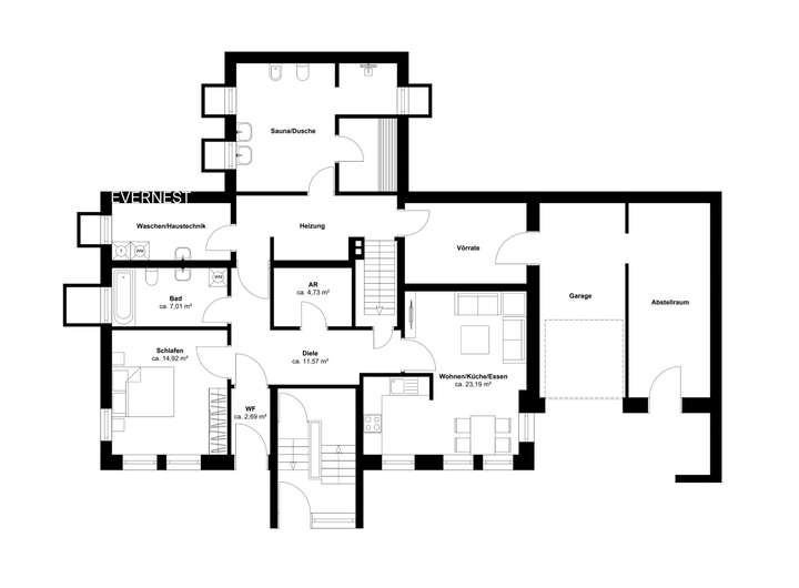
Das Haus ist auch unterkellert, hier findet sich der Waschraum mit einem Anschluss an die Zisterne, Heizungssystem, Raum in dem Sauna, Whirlpool und eine Dusche untergebracht sind sowie weitere Abstellräume mit direktem Zugang zur Garage.
Der Außenbereich unterstreicht den Charakter dieser Immobilie eindrucksvoll. Der Garten ist wunderschön angelegt und bietet verschiedene Bereiche zum Entspannen, Spielen und Gärtnern. Ein Gartenhaus sowie Schuppen stehen für Stauraum und Hobbys zur Verfügung. Spielgeräte für Kinder machen den Garten zu einem Ort für die ganze Familie. Der eigentliche Bonus liegt in der dazugehörigen Streuobstwiese mit Obst- und Nussbäumen (unter anderem Kirsche, Pflaume, Apfel- oder Mirabellen) Sie bietet nicht nur einen traumhaften Blick ins Grüne, sondern auch die Möglichkeit, eigenes Obst zu ernten und ein Stück Natur aktiv zu erleben.
Dieses Haus ist mehr als nur eine Immobilie. Es ist ein Ort, der Ruhe und Weite vermittelt, der Familienleben genauso zulässt wie Rückzug, der Generationen verbinden und gleichzeitig trennen kann. Die Kombination aus Wohnhaus, Einliegerwohnung, Garten und Obstwiese ist in dieser Form selten und verleiht dem Anwesen einen besonderen Stellenwert.
Gerne stelle ich Ihnen dieses Haus persönlich vor und freue mich über eine Nachricht von Ihnen.
Landhaus mit Einliegerwohnung und Streuobstwiese
52391 Vettweiß
Die vollständige Adresse der Immobilie erhalten Sie vom Anbieter.
Auf Karte anzeigen
Die vollständige Adresse der Immobilie erhalten Sie vom Anbieter.
Finanzierungszertifikat
In nur zwei Minuten zu Ihrem persönlichen Finanzierungszertifkat.
Infos
| Haustyp | Einfamilienhaus |
|---|---|
| Etagenzahl | 2 |
| Wohnfläche ca. | 261 m2 |
| Nutzfläche | 315,93 m2 |
| Grundstücksfläche | 3.400 m2 |
| Bezugsfrei ab | 2025-11-03 |
| Zimmer | 10 |
| Schlafzimmer | 7 |
| Badezimmer | 4 |
| Garage/Stellplatz | Garage |
Kosten
| Kaufpreis |
575.000 € |
|---|---|
| Provision |
3.57 % inkl. MwSt. Bei Abschluss eines notariellen Kaufvertrages ist eine Käuferprovision vom Käufer in Höhe von 3.57 % inkl. MwSt. aus dem Kaufpreis fällig. |
Finanzierungsrechner:
Kaufpreis:
600.000 €
Eigenkapital:
600.000 €
Monatliche Rate
0 €
Effektiver Jahreszins
0 %
Sollzinsbindung
10 Jahre
Bausubstanz & Energieausweis
| Baujahr | 1992 |
|---|---|
| Letzte Sanierung | 2018 |
| Objektzustand | Saniert |
| Heizungsart | Gas-Heizung |
| Wesentliche Energieträger | Gas |
| Energieausweis | liegt vor |
| Energieausweistyp | Bedarfsausweis |
| Energieverbrauchskennwert | 101,9 kWh/(m²*a) |
| Energieeffizienzklasse | D |
101,9
kWh/(m²*a)
Energieeffizienzklasse D
- A+
- A
- B
- C
- D
- E
- F
- G
- H
- 0
- 25
- 50
- 75
- 100
- 125
- 150
- 175
- 200
- 225
- >250
Beschreibung des Objekts
Ausstattung
-
Lage
Vettweiß-Frangenheim liegt im Kreis Düren und steht für naturnahes Wohnen mit guter Anbindung. Der Ort ist geprägt von gewachsenen Wohnstrukturen und einer gelebten Nachbarschaft.
Kinder können hier noch auf der Straße spielen. Das Leben ist von Gemeinschaft geprägt, mit regelmäßigen Festen sowie traditionellen Veranstaltungen, bei denen der Nikolaus noch persönlich vorbeikommt. Ein Schulbus fährt zur Grundschule, die Grundschule und der kostenlose Kindergarten sind aber auch gut mit dem Fahrrad erreichbar. Einkaufsmöglichkeiten und Ärzte befinden sich ebenso im nahen Umfeld.
Gleichzeitig ist die infrastrukturelle Anbindung sehr gut. Die Nähe zur B56, B477 sowie zu den Autobahnen A61 und A1 ermöglicht eine Erreichbarkeit der Städte Köln, Bonn, Aachen und Euskirchen in weniger als 30 Minuten.
Ein weiterer Standortfaktor ist die Nähe zur Bundeswehr. Militärische Einrichtungen in der Region sorgen seit vielen Jahren für eine stabile Nachfrage nach Wohnraum und eine verlässliche, bodenständige Ortsstruktur. Viele Bundeswehrangehörige und zivile Mitarbeiter leben mit ihren Familien in der Umgebung.
Das Haus verbindet damit ruhiges Wohnen im ländlichen Raum mit funktionierender Infrastruktur und guter Erreichbarkeit und eignet sich besonders für Familien sowie für Menschen, die Ruhe suchen und dennoch angebunden bleiben möchten.
Grundriss
Erdgeschoss
>
>
1.Obergeschoss
>
>
Kellergeschoss
>
>
Adresse
52391 Vettweiß
Interessante Orte
Preis- und Lageinformationen
Preistrend für Bestandsimmobilien in Vettweiß