Das 2017 erbaute Einfamilienhaus besticht durch seine ruhige, grüne Umgebung bei gleichzeitig hervorragender Anbindung an die S-Bahn. Auf ca. 135 m² Wohnfläche, verteilt auf zwei Etagen, bietet die Immobilie ideale Voraussetzungen für komfortables Familienwohnen. Das 404 m² große Grundstück verfügt neben einer Garage über zusätzliche Stellplätze für bis zu drei Fahrzeuge direkt davor.
Erdgeschoss:
Schon beim Betreten empfängt Sie ein heller Flur, von dem alle Räume bequem erreichbar sind. Mittelpunkt dieser Etage ist das großzügige Wohnzimmer, das mit seiner direkten Verbindung zum Wintergarten besticht. Dieser lässt sich an zwei Seiten komplett öffnen und verwandelt sich so im Handumdrehen in eine weitläufige Terrasse.
Ergänzt wird das Raumangebot durch eine moderne, im Kaufpreis enthaltene Einbauküche, ein Gäste- oder Arbeitszimmer sowie das Elternschlafzimmer.
Das Tageslichtbad ist mit ebenerdiger Dusche und großer Badewanne sowie moderner Keramik ausgestattet. Ein separater Hauswirtschaftsraum sorgt zusätzlich für Ordnung und praktischen Stauraum. An heißen Tagen sichern Klimaanlagen im Wohn- und Schlafzimmer ein angenehmes Raumklima.
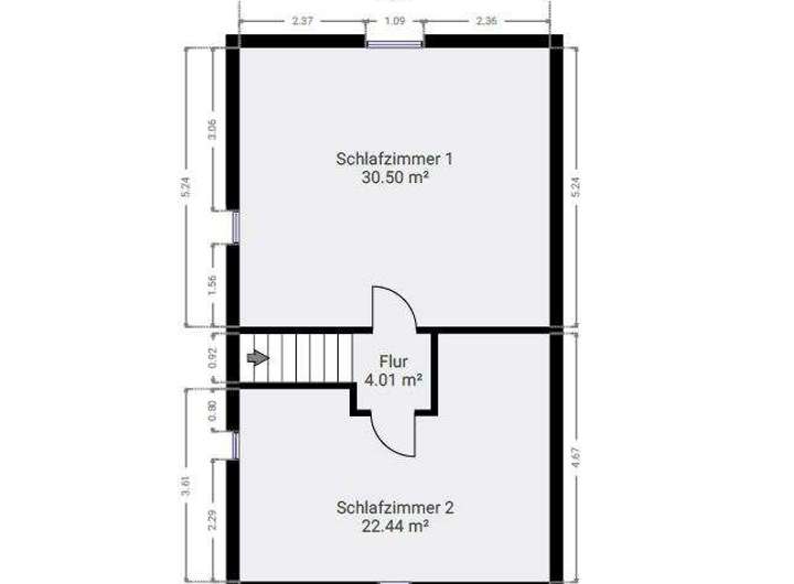
Dachgeschoss:
Das ausgebaute Obergeschoss hält eine großzügige Wohnfläche für Sie bereit. Hier befinden sich zwei separate Räume, die sich super als Kinderzimmer eignen. Zudem ist ein Anschluss vorbereitet, sodass bei Bedarf später eine zusätzliche Toilette integriert werden kann.
Garten:
Der Garten ist eine kleine Wohlfühloase. Neben einem großen Schuppen für Gartengeräte finden Sie hier eine unterirdische Regenwasserzisterne mit einem Fassungsvermögen von etwa 6.000 Litern, die die Pflege der Grünflächen erleichtert. Der Blick ins unverbaute Umland vermittelt Ruhe und Naturverbundenheit, perfekt für entspannte Stunden im Freien.
Eine kleine Besonderheit ist die von den Anwohnern geschaffene Gemeinschaftsfläche in der Nachbarschaft. Sie lädt Kinder zum Spielen und Erwachsene zu sportlichen Aktivitäten oder geselligen Treffen ein.
Dieses Haus vereint modernen Wohnkomfort, durchdachte Raumaufteilung und naturnahes Wohnen. Ein idealer Ort für Familien, die ein Zuhause zum Ankommen und Wohlfühlen suchen.
Wohnen mit Weitblick | Modernes Einfamilienhaus | 5 Zimmer | Garage | Klimaanlage
04509 Schönwölkau
Die vollständige Adresse der Immobilie erhalten Sie vom Anbieter.
Auf Karte anzeigen
Die vollständige Adresse der Immobilie erhalten Sie vom Anbieter.
Finanzierungszertifikat
In nur zwei Minuten zu Ihrem persönlichen Finanzierungszertifkat.
Infos
| Haustyp | Einfamilienhaus |
|---|---|
| Wohnfläche ca. | 135 m2 |
| Grundstücksfläche | 404 m2 |
| Bezugsfrei ab | nach Vereinbarung |
| Zimmer | 5 |
| Schlafzimmer | 4 |
| Badezimmer | 1 |
| Garage/Stellplatz | Garage |
| Anzahl Garage/Stellplatz | 4 |
Kosten
| Kaufpreis |
399.900 € |
|---|---|
| Provision |
3,57 % inkl. MwSt. Provisionsteilung - hälftige Käufer- bzw. Verkäuferprovision in Höhe von je 3,57 % inkl. 19 % Umsatzsteuer vom endgültigen Erwerbspreis (fällig für den Käufer bei Vertragsabschluss und nach Eingang der Verkäuferprovision) |
Finanzierungsrechner:
Kaufpreis:
600.000 €
Eigenkapital:
600.000 €
Monatliche Rate
0 €
Effektiver Jahreszins
0 %
Sollzinsbindung
10 Jahre
Bausubstanz & Energieausweis
| Baujahr | 2017 |
|---|---|
| Heizungsart | Gas-Heizung |
| Wesentliche Energieträger | Flüssiggas |
| Energieausweis | liegt vor |
| Energieausweistyp | Verbrauchsausweis |
| Energieverbrauchskennwert | 59,0 kWh/(m²*a) |
| Energieeffizienzklasse | B |
59,0
kWh/(m²*a)
Energieeffizienzklasse B
- A+
- A
- B
- C
- D
- E
- F
- G
- H
- 0
- 25
- 50
- 75
- 100
- 125
- 150
- 175
- 200
- 225
- >250
Beschreibung des Objekts
Ausstattung
* 5 Zimmer
* 135 Quadratmeter Wohnfläche
* 404 Quadratmeter Grundstücksfläche
* Moderne Einbauküche inklusive
* Rollladen
* Garten mit unverbautem Blick
* Klimaanlage im Wohn- und Schlafzimmer
* Schöner Wintergarten
* Badezimmer mit Wanne und ebenerdiger Dusche
* 1 Garage
* 2 Außenstellplätze
* Unterirdische Regenwasser-Zisterne
Lage
Schönwölkau erstreckt sich malerisch über das Land, wobei der charmante Ortsteil Hohenroda besonders hervorsticht. Die Lage zeichnet sich durch eine gelungene Verbindung von ländlichem Flair und einer guten Anbindung an wichtige Infrastrukturen aus. Umgeben von grünen Feldern, bietet Hohenroda eine ruhige Atmosphäre und ist ein Rückzugsort für all diejenigen, die die Vorzüge des Landlebens schätzen.
Einkaufsmöglichkeiten und Geschäfte des täglichen Bedarfs, befinden sich im nahegelegenen Krostitz - innerhalb von 8 Minuten mit dem PKW erreichbar. Nur unwesentlich weiter befindet sich die große Kreisstadt Delitzsch mit seinem vielfältigen Freizeitaktivitäten und Geschäften - innerhalb von nur 12 Minuten erreichbar.
Im Ort findet sich außerdem eine S-Bahn-Haltestelle, von welcher aus das Leipziger Zentrum in 45 Minuten erreicht. Bis nach Delitzsch benötigen Sie lediglich 15 Minuten mit der Bahn.
Den Rand Leipzigs erreichen Sie binnen 15 Minuten mit dem PKW.
Sonstige Angaben
Hinweis zur Richtigkeit und Vollständigkeit der Angaben:
Der Makler weist darauf hin, dass die von ihm weitergegebenen Objektinformationen vom Verkäufer bzw. von einem vom Verkäufer beauftragten Dritten stammen und von ihm, dem Makler, auf ihre Richtigkeit nicht überprüft worden sind. Es ist Sache des Kunden, diese Angaben auf ihre Richtigkeit hin zu überprüfen. Der Makler, der diese Informationen nur weitergibt, übernimmt für die Richtigkeit keinerlei Haftung.
Grundriss
Grundriss - Erdgeschoss
>
>
Grundriss Dachgeschoss
>
>
Adresse
04509 Schönwölkau
Interessante Orte
Preis- und Lageinformationen
Preistrend für Bestandsimmobilien in Schönwölkau