Architektenhaus Anto präsentiert sich vielfältig auf zwei Etagen mit einem innovativen Grundriss, der Wünsche wahr werden lässt. Im Erdgeschoss betreten Sie das Haus durch eine geräumige Diele, die offen in die Küche übergeht. Die Küche wird zum Mittelpunkt des Wohnbereiches. Direkt daneben befindet sich der Esstisch, wo man gemeinsam isst und Zeit verbringt. Der Wohnbereich mit Couch und TV schließt daran an und lädt zum Entspannen ein. Neben der Küche führt eine Tür in das praktische Home-Office. Ebenfalls im Erdgeschoss sind ein Hauswirtschaftsraum und ein Gäste-WC vorhanden.
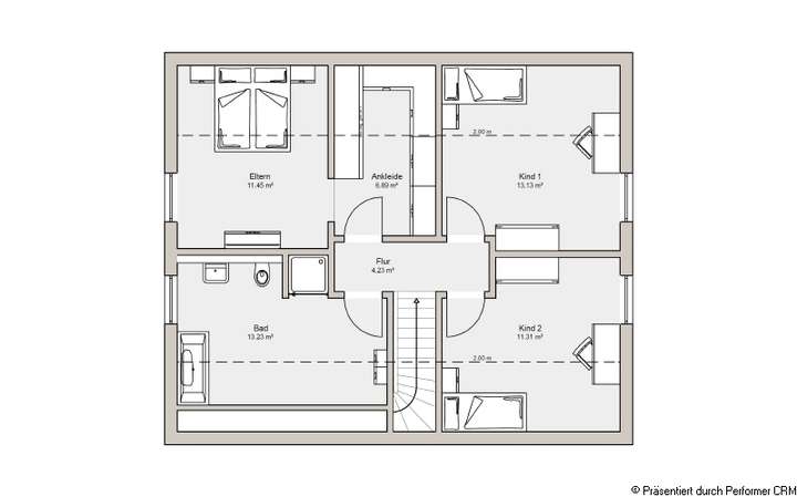
Abgerundet wird das Satteldachhaus im Dachgeschoss mit einem Elternschlafzimmer mit einer Ankleide, zwei Kinderzimmer und einem geräumigen Familienbad.
Dieses Haus wird nach Ihren individuellen Wünschen geplant und ausgestattet!
Ein Platz zum Träumen
04564 Böhlen
Die vollständige Adresse der Immobilie erhalten Sie vom Anbieter.
Auf Karte anzeigen
Die vollständige Adresse der Immobilie erhalten Sie vom Anbieter.
Finanzierungszertifikat
In nur zwei Minuten zu Ihrem persönlichen Finanzierungszertifkat.
Infos
| Haustyp | Einfamilienhaus |
|---|---|
| Wohnfläche ca. | 143 m2 |
| Grundstücksfläche | 682 m2 |
| Zimmer | 5 |
| Schlafzimmer | 3 |
| Badezimmer | 1 |
| Anzahl Garage/Stellplatz | 2 |
Kosten
| Kaufpreis |
444.480 € |
|---|---|
| Provision | Nein |
Finanzierungsrechner:
Kaufpreis:
600.000 €
Eigenkapital:
600.000 €
Monatliche Rate
0 €
Effektiver Jahreszins
0 %
Sollzinsbindung
10 Jahre
Bausubstanz & Energieausweis
| Baujahr | 2026 |
|---|---|
| Bauphase | Haus in Planung (projektiert) |
| Objektzustand | Erstbezug |
| Qualität der Austattung | Gehoben |
| Heizungsart | Wärmepumpe |
| Energieausweistyp | Bedarfsausweis |
| Energieverbrauchskennwert | 13,3 kWh/(m²*a) |
| Energieeffizienzklasse | A+ |
13,3
kWh/(m²*a)
Energieeffizienzklasse A+
- A+
- A
- B
- C
- D
- E
- F
- G
- H
- 0
- 25
- 50
- 75
- 100
- 125
- 150
- 175
- 200
- 225
- >250
Beschreibung des Objekts
Ausstattung
5 Zimmer, offene Küche, Diele, Flur, Bad, WC, Ankleide, Hauswirtschaftsraum
Das gezeigte Traumhaus im Überblick:
+ Massivhaus im Sinne der Ausstattungsbeschreibung "Nestbau"
+ Energieeffizienzklasse A+
+ + Zukunftsorientierte Energieausstattung in Form einer Luft-Wasser-Wärmepumpe und Fußbodenheizung
Beste Markenausstattung in jedem Kern-Haus:
+ Fenster mit 3-Scheiben-Wärmeschutzverglasung und elektrischen Rollläden
+ Dacheindeckung mit Betondachsteinen von Braas mit "Star-Oberfläche"
+ Hochwertiger Kunstharz-Außenputz
+ Badausstattung mit Badewanne und flacher Duschwanne
+ Fliesen in Bad und WC
+ Haustür mit Sicherheitsverriegelung
+ Innentüren der Marke Herholz mit Edelstahldrückern
+ Stahl-Holz-Treppe mit individueller Farbgestaltungsmöglichkeit
+ Elektroausstattung inklusive Klingelanlage
+ Rauchmelder für Ihre Sicherheit
+ Einsatz regionaler Handwerksbetriebe
+ Blower-Door-Test
Lage
Die Lage des Grundstückes ist sehr attraktiv. Es befindet sich ca. 600 m westlich (Luftlinie) zum Stausee Rötha und ca. 1,50 km (fußläufig, Fahrrad) zum Naherholungsgebiet Hainer-/Kahnstdorfer See.
Einkaufsmöglichkeiten der Stadt Böhlen befinden sich in ca. 2 km Entfernung. Schule/Grundschule Böhlen sind ca. 2,50 km entfernt.
Den S-Bahnhaltepunkt Böhlen Werke erreicht man nach ca. 1,20 Kilometer.
Sonstige Angaben
Ist dies schon Ihr Traumhaus? Oder dürfen wir ein individuelles Haus für Sie planen?
Ich freue mich, Ihre Wünsche zu erfahren und Ihre Fragen zu beantworten.
Sie erreichen mich unter 0341-2527132
Ihre Grit Hohberg
Kern-Haus
Seit 1994 realisieren wir individuelle Häuser rund um Leipzig und Halle. Über 1.900 zufriedene Bauherren in der Region sprechen für sich.
Unser engagiertes Team plant und baut massive Häuser und begleitet Sie mit umfassendem Service.
+ Eigener Architekt
+ Preisgarantie
+ Verbindliche Bauzeit
+ 5-Phasen-TÜV-Prüfung
Der in dieser Anzeige gezeigte Preis versteht sich inklusive Grundstück und exklusive der Baunebenkosten.
Grundriss
Grundriss Erdgeschoss
>
>
Grundriss Dachgeschoss
>
>
Adresse
04564 Böhlen
Interessante Orte
Preis- und Lageinformationen
Preistrend für Bestandsimmobilien in Böhlen