Etos steht für eine anspruchsvolle und zeitlose Architektur, angelehnt an den Bauhausstil. Der moderne Baukörper mit Flachdach schirmt den Lebensraum zur Eingangs- und Straßenseite ab – die Rückseite öffnet sich mit großen Fenstern dem Garten.
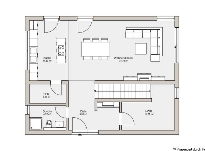
Die offenen Wohnräume sind durch bodentiefe Fenster lichtdurchflutet. Die Küche ohne Trennwand schafft eine Sichtachse zum Wohn- und Essbereich. Eine Speisekammer und ein Duschbad vervollständigen das Raumangebot. Der Hauswirtschaftsraum beherbergt die innovative Haustechnik, die für niedrigste Energiekosten des Hauses sorgt.
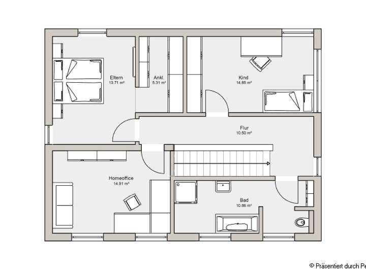
Über eine geradläufige Betontreppe gelangt man ins Obergeschoss. Hier befindet sich neben Kinderzimmer und Home-Office das Eltern-Schlafzimmer mit separater Ankleide. Das helle Badezimmer ist klar gegliedert und bietet Raum zum Entspannen.
Gestaltungs-Varianten mit einer 2-geschossigen Galerie über dem Wohnraum, einer großen Glasfassade oder mit Balkon erhalten Sie im persönlichen Gespräch mit Ihrem Hausbau-Berater.
Dieses Haus wird nach Ihren individuellen Wünschen geplant und ausgestattet!
Haus mit Garten - alles ganz einfach mit Kern-Haus
06792 Sandersdorf
Die vollständige Adresse der Immobilie erhalten Sie vom Anbieter.
Auf Karte anzeigen
Die vollständige Adresse der Immobilie erhalten Sie vom Anbieter.
Finanzierungszertifikat
In nur zwei Minuten zu Ihrem persönlichen Finanzierungszertifkat.
Infos
| Haustyp | Einfamilienhaus |
|---|---|
| Wohnfläche ca. | 143 m2 |
| Grundstücksfläche | 537 m2 |
| Zimmer | 4 |
| Schlafzimmer | 3 |
| Badezimmer | 2 |
| Anzahl Garage/Stellplatz | 2 |
Kosten
| Kaufpreis |
451.900 € |
|---|---|
| Provision | Nein |
Finanzierungsrechner:
Kaufpreis:
600.000 €
Eigenkapital:
600.000 €
Monatliche Rate
0 €
Effektiver Jahreszins
0 %
Sollzinsbindung
10 Jahre
Bausubstanz & Energieausweis
| Baujahr | 2026 |
|---|---|
| Bauphase | Haus in Planung (projektiert) |
| Objektzustand | Erstbezug |
| Qualität der Austattung | Gehoben |
| Heizungsart | Wärmepumpe |
| Wesentliche Energieträger | Strom |
| Energieausweistyp | Bedarfsausweis |
| Energieverbrauchskennwert | 19,4 kWh/(m²*a) |
| Energieeffizienzklasse | A+ |
19,4
kWh/(m²*a)
Energieeffizienzklasse A+
- A+
- A
- B
- C
- D
- E
- F
- G
- H
- 0
- 25
- 50
- 75
- 100
- 125
- 150
- 175
- 200
- 225
- >250
Beschreibung des Objekts
Ausstattung
4 Zimmer, Küche, Diele, Dusche, Flur, Bad, Speisekammer, Ankleide, Hauswirtschaftsraum
Das gezeigte Traumhaus im Überblick:
+ Schlüsselfertiges Massivhaus im Sinne der Ausstattungsbeschreibung "Edition 25"
+ Zukunftsorientierte Energieausstattung in Form einer Luft-Wasser-Wärmepumpe und Fußbodenheizung sowie einer kontrollierten Wohnraumlüftung mit Wärmerückgewinnung
+ Inklusive Bodenplatte
Beste Markenausstattung in jedem Kern-Haus:
+ Hochwertiger Kunstharz-Außenputz für eine langlebige Fassade
+ Vollständige Badausstattung von Villeroy & Boch mit Badewanne und flacher Duschwanne sowie einer Echtglasduschkabine
+ Fliesen von Villeroy & Boch in Bad und WC
+ Haustür mit 5-fach-Sicherheitsverriegelung
+ Erstklassige Innentüren der Marke Herholz
+ Fenster mit 3-Scheiben-Wärmeschutzverglasung und Rollläden
+ Stahl-Holz-Treppe mit individueller Farbgestaltungsmöglichkeit
+ Vollständige und überdurchschnittliche Elektroausstattung inklusive Klingelanlage und Netzwerkdosen
+ Rauchmelder für Ihre Sicherheit
+ Alle Leistungen aus einer Hand
+ Alle Planungs- und Architektenleistungen
+ Einsatz regionaler Handwerksbetriebe
+ Baubegleitende 5-Phasen-TÜV-Prüfung und Blower-Door-Test
+ Individuelle Anpassung auf Ihre Bedürfnisse
+ Auf Wunsch mit Keller erhältlich
+ Auf Wunsch mit weiteren Energietechniken erhältlich
Lage
- schnell in Halle, Bitterfeld, Leipzig
- 20 km bis Halle
- 35 km Leipzig
- gute Autobahnanbindung A 9 und A 14
- in 15 min im Landschaftspark Goitzsche sowie Bernstein See
Sonstige Angaben
Ist dies schon Ihr Traumhaus? Oder dürfen wir ein individuelles Haus für Sie planen?
Ich freue mich, Ihre Wünsche zu erfahren und Ihre Fragen zu beantworten.
Sie erreichen mich unter 0341-2527132
Ihre Grit Hohberg
Kern-Haus
Seit 1994 realisieren wir individuelle Häuser rund um Leipzig und Halle. Über 1.900 zufriedene Bauherren in der Region sprechen für sich.
Unser engagiertes Team plant und baut massive Häuser und begleitet Sie mit umfassendem Service.
+ Eigener Architekt
+ Preisgarantie
+ Verbindliche Bauzeit
+ 5-Phasen-TÜV-Prüfung
Der in dieser Anzeige gezeigte Preis versteht sich inklusive Grundstück und exklusive der Baunebenkosten.
Grundriss
Grundriss Erdgeschoss
>
>
Grundriss Obergeschoss
>
>
Adresse
06792 Sandersdorf
Interessante Orte
Preis- und Lageinformationen
Preistrend für Bestandsimmobilien in Sandersdorf