Willkommen in Ihrem neuen Zuhause mit einem entscheidenden Extra: Dieses neuwertige KfW 40+ Einfamilienhaus vereint energieeffizientes Wohnen auf höchstem Niveau mit modernster Ausstattung und einer unvergleichlich ruhigen, familienfreundlichen Lage in Himmelkron. Als ehemaliges Musterhaus der renommierten Firma Danwood wurde es ausschließlich zu Beratungszwecken genutzt und ist dadurch in einem Zustand wie frisch vom Bauträger – absolut unbewohnt, nahezu ohne Gebrauchsspuren und sofort bezugsfertig. Besonders hervorzuheben sind die hochwertige Bauqualität, die nachhaltige Bauweise sowie die optimale Verkehrsanbindung an die B303 und die A9.
Das Haus wurde 2017 errichtet und erstreckt sich über zwei Etagen mit einer Gesamtwohnfläche von 126,26m² auf einem liebevoll angelegten Grundstück von 487m². Direkt vor dem Haus befinden sich sechs gepflasterte Stellplätze sowie eine 7m lange Garage und ein Carport mit LED-Deckenbeleuchtung – alles durchdacht zwischen Haus und Garage angeordnet. Der Steingarten im Eingangsbereich sorgt für ein gepflegtes Erscheinungsbild, während die grüne Rückseite mit Rasenfläche und freiem Blick über Felder Erholung und Weitblick bietet. Eine großzügige Südterrasse mit direktem Zugang aus dem Wohnbereich rundet das stimmige Gesamtbild im Außenbereich ab.
Dank der nachhaltigen Holzständerbauweise und durchdachter technischer Ausstattung erfüllt das Haus höchste Ansprüche an Energieeffizienz und Wohnkomfort. Die Holzbalkendecken verfügen über integrierten Schallschutz, das Dach ist mit hochwertigen, anthrazitfarbenen Tondachziegeln eingedeckt und mit einer PV-Anlage (3,72kWp) samt 4,5kWh Speicher ausgerüstet. Der Dachboden bietet durch ausgelegte Laufbohlen praktischen Stauraum als Kellerersatz. Elektrische Alurollläden, 3-fach verglaste Fenster, eine Wärmepumpe mit Fußbodenheizung in allen Räumen sowie ein aktives Be- und Entlüftungssystem unterstreichen die moderne Ausstattung. Der Anschluss an schnelles DSL mit bis zu 100Mbit/s sorgt zudem für zukunftsfähige Konnektivität.
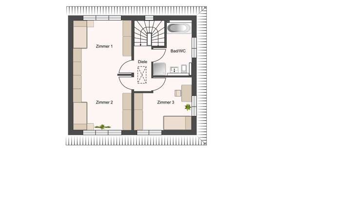
Im Inneren erwartet Sie ein durchdachter Grundriss mit hochwertiger Ausstattung. Das Erdgeschoss empfängt Sie über einen überdachten Eingangsbereich, der in einen Windfang mit Gäste-WC und weiter in die offene Diele führt. Der lichtdurchflutete Wohn- und Essbereich mit 33,94m² öffnet sich durch bodentiefe Fenster zur Südterrasse und dem Garten. Die offen gestaltete Küche ist mit hochwertigen Geräten und einer stilvollen Bar ausgestattet. Hochwertige Holzfliesen, LED-Spots und eine durchgängige Fußbodenheizung unterstreichen das elegante Wohngefühl. Im Obergeschoss bieten drei Zimmer – darunter ein großes, zusammengelegtes Arbeitszimmer mit 33,64m², welches bei Bedarf wieder geteilt werden kann, ein 14,33m² großes Schlafzimmer – sowie ein großzügiges Badezimmer mit bodentiefer Regendusche, Badewanne und Handtuchheizkörper modernen Komfort für gehobene Ansprüche.
Dieses hochwertig ausgestattete Zuhause im Neubauzustand bietet Ihnen die seltene Möglichkeit, stressfrei und ohne unplanbare Kosten in ein modernes, energieeffizientes Wohnkonzept einzuziehen. Die ruhige Lage im Neubaugebiet von Himmelkron in Verbindung mit der schnellen Anbindung machen es zu einem idealen Ort für Leben und Arbeiten. Lassen Sie sich dieses einmalige Angebot nicht entgehen und vereinbaren Sie gerne einen Besichtigungstermin.
Wichtig: Eine Wohnnutzung dieses Hauses ist nur unter speziellen Voraussetzungen möglich. Die wichtigste Voraussetzung ist die Anmeldung eines gewerblichen Betriebs oder einer Firma und eine (teilweise) gewerbliche Nutzung. Die genauen Details erklären wir Ihnen sehr gerne auf Anfrage.
Bezugsfertiger Neubau! Hochwertiges KfW 40+ Haus in ruhiger Lage mit Garage, Südterrasse und Garten
95502 Himmelkron
Die vollständige Adresse der Immobilie erhalten Sie vom Anbieter.
Auf Karte anzeigen
Die vollständige Adresse der Immobilie erhalten Sie vom Anbieter.
Finanzierungszertifikat
In nur zwei Minuten zu Ihrem persönlichen Finanzierungszertifkat.
Infos
| Haustyp | Doppelhaushaelfte |
|---|---|
| Etagenzahl | 2 |
| Wohnfläche ca. | 126 m2 |
| Grundstücksfläche | 487 m2 |
| Bezugsfrei ab | 01.11.2025 |
| Zimmer | 4 |
| Schlafzimmer | 3 |
| Badezimmer | 1 |
| Garage/Stellplatz | Garage |
| Anzahl Garage/Stellplatz | 8 |
Kosten
| Kaufpreis |
469.000 € |
|---|---|
| Provision |
3,57% (inkl. MwSt) |
Finanzierungsrechner:
Kaufpreis:
600.000 €
Eigenkapital:
600.000 €
Monatliche Rate
0 €
Effektiver Jahreszins
0 %
Sollzinsbindung
10 Jahre
Bausubstanz & Energieausweis
| Baujahr | 2017 |
|---|---|
| Bauphase | Haus fertig gestellt |
| Objektzustand | Neuwertig |
| Qualität der Austattung | Gehoben |
| Heizungsart | Wärmepumpe |
| Wesentliche Energieträger | Strom |
| Energieausweis | liegt vor |
| Energieausweistyp | Bedarfsausweis |
| Energieverbrauchskennwert | 8,0 kWh/(m²*a) |
| Energieeffizienzklasse | A+ |
8,0
kWh/(m²*a)
Energieeffizienzklasse A+
- A+
- A
- B
- C
- D
- E
- F
- G
- H
- 0
- 25
- 50
- 75
- 100
- 125
- 150
- 175
- 200
- 225
- >250
Beschreibung des Objekts
Ausstattung
- 126,26m² Wohnfläche auf zwei Etagen
- 487m² großes, gepflegtes Grundstück
- Sonniger Garten mit Feldblick und Südterrasse
- Baujahr 2017, unbewohnt im neuwertigen Zustand
- Bezugsfertig ab 01.11.2025 ohne Renovierungsbedarf
- 7m Garage, Carport mit LED, 6 Stellplätze
- Fußbodenheizung & Lüftungsanlage in allen Räumen
- PV-Anlage mit Speicher, energieeffizient KfW 40+
- Hochwertige Holzfliesen & LED-Spots im ganzen Haus
- 3-fach verglaste Fenster mit elektrischen Alurollläden
- Ruhige Lage im Neubaugebiet mit Feldrandlage
- Direkter Anschluss an A9 und B303 in wenigen Minuten
- Nah an Bayreuth, Schulen, Einkauf & Freizeitangebot
Lage
Das Haus befindet sich in einem ruhigen, neu entstandenen Wohngebiet am Ortsrand von Himmelkron, das sich durch eine harmonische Nachbarschaft und eine familienfreundliche Atmosphäre auszeichnet. Die Umgebung ist geprägt von modernen Einfamilienhäusern mit gepflegten Gärten, wenig Verkehr und einer entspannten Wohnqualität. Kinder können hier sicher spielen, Spaziergänger und Radfahrer genießen die naturnahe Umgebung mit Blick auf weite Felder. Die Nachbarschaft ist ruhig, dennoch lebendig – ideal für Familien, Berufstätige oder Selbstständige, die ein ruhiges Zuhause mit Nähe zur Natur suchen.
Im Ort selbst sind alle Einrichtungen des täglichen Bedarfs bequem erreichbar. Ein gut sortierter Supermarkt, Bäckereien, Metzgereien und ein Drogeriemarkt befinden sich in wenigen Fahrminuten Entfernung. Kindergärten und eine Grundschule sind direkt im Ort vorhanden, weiterführende Schulen liegen im nahegelegenen Kulmbach oder Bad Berneck. Auch medizinisch ist man hier bestens versorgt – Hausärzte, Zahnarzt und eine Apotheke befinden sich in kurzer Entfernung. Für Freizeit und Genuss sorgen mehrere Gasthäuser mit fränkischer Küche, Cafés sowie die beliebten Thermen in der Umgebung. Besonders hervorzuheben ist das nahe gelegene Kloster Himmelkron, ein kulturelles Highlight mit regelmäßigem Veranstaltungsangebot.
Verkehrstechnisch überzeugt der Standort mit einer hervorragenden Anbindung: Die B303 und die Autobahn A9 sind in wenigen Minuten erreichbar, was eine schnelle Verbindung in Richtung Bayreuth, Hof oder Nürnberg garantiert. Auch Pendler profitieren von der Nähe zu den Städten – Bayreuth ist in rund 15 Minuten mit dem Auto erreichbar. Der Bahnhof in Neuenmarkt-Wirsberg bietet regelmäßige Regionalverbindungen, während Buslinien das Wohngebiet an die umliegenden Orte gut anbinden. Für Berufstätige, Familien und Gewerbetreibende ergibt sich daraus eine ideale Kombination aus naturnahem Wohnen und hervorragender Erreichbarkeit.
Zusammenfassend bietet dieser Standort in Himmelkron eine perfekte Balance aus Ruhe, Wohnkomfort und praktischer Erreichbarkeit. Die gepflegte Nachbarschaft, die gute Infrastruktur und die schnelle Verkehrsanbindung machen das Umfeld besonders attraktiv für alle, die modernes Wohnen mit hoher Lebensqualität in ländlicher Lage und Nähe zur Stadt verbinden möchten.
Sonstige Angaben
Der Käufer zahlt im Erfolgsfall an die Firma Dressel Immobilien GmbH eine Käufer- Maklerprovision in Höhe von 3,57% inkl. 19% MwSt. Die Provision errechnet sich aus dem beurkundeten Kaufpreis.
Dieses Exposé ist eine Vorabinformation, als Rechtsgrundlage gilt allein der notariell abgeschlossene Kaufvertrag.
Wir weisen auf unsere allgemeinen Geschäftsbedingungen hin.
Angaben des Eigentümers, der Eigentümerin / Auftraggebers, Auftraggeberin:
Alle Angaben beruhen auf uns vorliegenden Informationen des Auftraggebers nach bestem Wissen und Gewissen und sind freibleibend und unverbindlich.
Grundriss
Grundriss EG
>
>
Grundriss OG
>
>
Adresse
95502 Himmelkron
Interessante Orte
Preis- und Lageinformationen
Preistrend für Bestandsimmobilien in Himmelkron