Dieses exklusive Architektenensemble im Bauhausstil kombiniert zwei hochwertig gestaltete Wohnhäuser auf real geteilten Grundstücken und bietet damit eine seltene Verbindung aus stilvollem Wohnen, großzügigem Raumangebot und vielseitigen Nutzungsmöglichkeiten. In einer der gefragtesten Wohnlagen Bayreuths im Stadtteil Meyernberg gelegen, überzeugt das Anwesen mit ruhiger, familiärer Atmosphäre und gleichzeitig optimaler Anbindung in die Innenstadt. Beide Häuser begeistern mit lichtdurchfluteten Räumen, eindrucksvollen Fensterfronten und einer architektonischen Klarheit, die modernes Design mit hoher Wohnqualität vereint.
Das Haupthaus mit 290,44 m² Wohnfläche und das angrenzende zweite Gebäude mit 216,63 m² Fläche fügen sich harmonisch in das aufwendig gestaltete Gesamtgrundstück ein. Beide Häuser verfügen über separate Zugänge und können autark genutzt werden – ideal für ein flexibles, zukunftsorientiertes Nutzungskonzept. Der Garten wurde professionell angelegt und überzeugt mit dichtem Baumbestand, einer blickdichten Buchenhecke sowie mehreren Terrassenflächen. Vor dem Ensemble stehen insgesamt bis zu sieben Außenstellplätze zur Verfügung, zusätzlich bietet das Haupthaus eine großzügige Doppelgarage.
Gebaut in massiver Qualität mit Hochlochziegelwänden, Stahlbetondecken und einem pflegeleichten Pfettendach mit Ziegeleindeckung, bieten beide Gebäude eine solide und langlebige Bausubstanz. Aluminiumfenster, eine zentrale Gasheizung (Kessel von 1991, Brenner von 1998), Kupferleitungen, moderne Kippschalter mit FI-Schutz und ein schneller Kabelanschluss mit bis zu 1.000 Mbit/s sorgen für modernen Wohnkomfort. Die gesamte Immobilie befindet sich in einem äußerst gepflegten Zustand und überzeugt durch ihre technische Zuverlässigkeit.
Im Haupthaus empfängt Sie im Erdgeschoss eine weitläufige Diele mit direktem Zugang zu Küche, Wohnbereich, Gäste-WC, Garage und Gartengeschoss. Das Herzstück bildet der rund 85 m² große Wohn- und Essbereich mit offenem Kamin, raumhohen Glasfronten auf allen Seiten und drei direkten Zugängen zur Ostterrasse, dem umlaufenden Südbalkon und der überdachten Westterrasse. Die Küche mit 22 m² bietet reichlich Platz für eine Inselküche und grenzt ebenfalls an die Terrasse. Die integrierte Doppelgarage führt über eine Einschubtreppe in den Spitzboden, der als zusätzliche Hobbyfläche genutzt werden kann. Im Gartengeschoss befinden sich drei private Schlafsuiten – darunter ein Elternbereich mit Schlafzimmer, Ankleide, Bad, separatem WC und Gartenzugang sowie zwei Kinderbereiche mit jeweils eigenem Bad und direktem Zugang zum Südgarten. Ein Hauswirtschaftsraum, ein Hobbyraum und ein Weinkeller runden das Raumangebot ab.
Das zweite Gebäude wurde ursprünglich als Bürogebäude genutzt und ist inzwischen als Wohnhaus genehmigt. Es verfügt über eine Gesamtfläche von 216,63 m² und bietet eine großzügige Grundstruktur mit viel natürlichem Licht. Im Erdgeschoss befinden sich ein großer Raum mit rund 48 m² Fläche und kompletter Fensterfront sowie ein weiterer Raum mit etwa 13 m². Im Gartengeschoss liegen zusätzliche Flächen von rund 113 m², ebenfalls mit raumhohen Fenstern und Blick in den grünen Südgarten. Die Räume stehen bereit für einen individuellen, flexiblen Innenausbau nach den Vorstellungen der neuen Eigentümer.
Dieses außergewöhnliche Doppelanwesen bietet eine seltene Gelegenheit in Bayreuth: zwei architektonisch durchdachte Wohnhäuser in ruhiger Toplage mit viel Platz, hochwertiger Bausubstanz und einem liebevoll gestalteten Grundstück. Die real geteilten Grundstücke eröffnen flexible Nutzungsperspektiven – sei es für generationsübergreifendes Wohnen, separate Wohneinheiten oder die Kombination aus Wohnen und Arbeiten. Eine Immobilie mit Seltenheitswert – in Zustand, Lage und Gestaltung gleichermaßen überzeugend.
Zwei Wohnhäuser! Großzügiges Familiendomizil in Bayreuth mit Gartenidylle und flexibler Nutzung
95447 Bayreuth
Die vollständige Adresse der Immobilie erhalten Sie vom Anbieter.
Auf Karte anzeigen
Die vollständige Adresse der Immobilie erhalten Sie vom Anbieter.
Finanzierungszertifikat
In nur zwei Minuten zu Ihrem persönlichen Finanzierungszertifkat.
Infos
| Haustyp | Einfamilienhaus |
|---|---|
| Etagenzahl | 2 |
| Wohnfläche ca. | 507 m2 |
| Grundstücksfläche | 1.487 m2 |
| Bezugsfrei ab | sofort |
| Zimmer | 8 |
| Schlafzimmer | 5 |
| Badezimmer | 3 |
| Anzahl Garage/Stellplatz | 7 |
Kosten
| Kaufpreis |
998.000 € |
|---|---|
| Provision |
3,57% (inkl. MwSt) |
Finanzierungsrechner:
Kaufpreis:
600.000 €
Eigenkapital:
600.000 €
Monatliche Rate
0 €
Effektiver Jahreszins
0 %
Sollzinsbindung
10 Jahre
Bausubstanz & Energieausweis
| Baujahr | 1972 |
|---|---|
| Letzte Sanierung | 1998 |
| Bauphase | Haus fertig gestellt |
| Objektzustand | Gepflegt |
| Qualität der Austattung | Normal |
| Heizungsart | Zentralheizung |
| Wesentliche Energieträger | Gas |
| Energieausweis | liegt vor |
| Energieausweistyp | Bedarfsausweis |
| Energieverbrauchskennwert | 252,7 kWh/(m²*a) |
| Energieeffizienzklasse | H |
252,7
kWh/(m²*a)
Energieeffizienzklasse H
- A+
- A
- B
- C
- D
- E
- F
- G
- H
- 0
- 25
- 50
- 75
- 100
- 125
- 150
- 175
- 200
- 225
- >250
Beschreibung des Objekts
Ausstattung
- Wohnhaus mit 290,44m² Wohnfläche auf zwei Ebenen
- Zweites Gebäude mit 216,63m², als Wohnhaus genehmigt
- Gesamtgrundstück ca. 1.487m², real geteilt und nutzbar
- Liebevoll angelegter Garten mit Buchenhecke und Baumbestand
- Baujahr 1972, sehr gepflegter Zustand, massive Bauweise
- Drei großzügige Terrassen für Morgen-, Tages- und Abendsonne
- Doppelgarage im Haus plus bis zu 5 Außenstellplätze
- Offener Kamin im Wohnbereich, 85m² Wohn-/Esszone
- Großflächige Alu-Fenster mit beeindruckender Lichtführung
- Gas-Zentralheizung, Brenner 1998 erneuert
- Ruhige, familienfreundliche Lage in Bayreuth-Meyernberg
- Sehr gute Anbindung an Bus, Innenstadt und Autobahn
- Schulen, Naherholung und Kulturangebote in direkter Umgebung
Lage
Die ruhige und gleichzeitig hervorragend angebundene Lage in einem der begehrtesten Wohngebiete Bayreuths macht dieses Zuhause besonders attraktiv. Im familiären Stadtteil Meyernberg fügt sich das Wohnhaus harmonisch in eine gepflegte, gehobene Nachbarschaft ein. Hier genießen Sie ein Umfeld, das durch viel Grün, angenehme Ruhe und eine gewachsene Struktur geprägt ist – ideal für Familien und Menschen mit hohem Anspruch an Lebensqualität und Wohnkomfort.
Die Infrastruktur lässt keine Wünsche offen: Einkaufsmöglichkeiten für den täglichen Bedarf befinden sich in unmittelbarer Nähe, ebenso wie Bäcker, Apotheken und Arztpraxen. Schulen und Kindergärten sind schnell erreichbar und unterstreichen die Familienfreundlichkeit des Viertels. In wenigen Minuten erreicht man zudem mehrere Supermärkte, Drogerien sowie kleine Fachgeschäfte. Kulinarisch bietet Bayreuth alles vom gemütlichen Café bis zum gehobenen Restaurant – auch ein abendlicher Spaziergang zur Eisdiele ist hier problemlos möglich. Die nahegelegenen Grünflächen und der beliebte Röhrenseepark laden zu Spaziergängen und sportlichen Aktivitäten ein, während die Bayreuther Innenstadt mit ihrem historischen Flair, dem Festspielhaus und zahlreichen kulturellen Veranstaltungen zusätzliche Lebensqualität bietet.
Die Anbindung ist hervorragend: Eine Stadtbuslinie fährt regelmäßig in kurzen Takten ins Zentrum von Bayreuth, sodass auch ohne Auto eine schnelle Verbindung gewährleistet ist. Mit dem Auto erreicht man die A9 in wenigen Minuten – perfekt für Pendler in Richtung Nürnberg, München oder Berlin. Der Hauptbahnhof Bayreuth ist in rund zehn Minuten erreichbar und bietet gute Verbindungen ins regionale und überregionale Netz.
Zusammenfassend bietet diese Lage eine seltene Kombination aus Ruhe, hoher Wohnqualität und exzellenter Anbindung. Familien profitieren von der sicheren, grünen Umgebung mit guter Bildungs- und Freizeitstruktur. Wer ein Zuhause in einer der besten Wohnlagen Bayreuths sucht, findet hier den idealen Ort zum Ankommen und Wohlfühlen.
Sonstige Angaben
Der Käufer zahlt im Erfolgsfall an die Firma Dressel Immobilien GmbH eine Käufer- Maklerprovision in Höhe von 3,57% inkl. 19% MwSt. Die Provision errechnet sich aus dem beurkundeten Kaufpreis.
Dieses Exposé ist eine Vorabinformation, als Rechtsgrundlage gilt allein der notariell abgeschlossene Kaufvertrag.
Wir weisen auf unsere allgemeinen Geschäftsbedingungen hin.
Angaben des Eigentümers, der Eigentümerin / Auftraggebers, Auftraggeberin:
Alle Angaben beruhen auf uns vorliegenden Informationen des Auftraggebers nach bestem Wissen und Gewissen und sind freibleibend und unverbindlich.
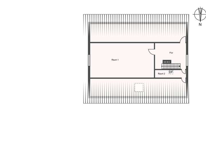
Grundriss
Grundriss Erdgeschoss
>
>
Grundriss Gartengeschoss
>
>
Grundriss Dachgeschoss
>
>
Adresse
95447 Bayreuth
Interessante Orte
Preis- und Lageinformationen
Preistrend für Bestandsimmobilien in Meyernberg/Schmatzenhöhe