Entdecken Sie Ihr zukünftiges Einzelhaus mit zwei Wohneinheiten in Herbolzheim, das ganz nach Ihren Wünschen und Vorstellungen projektiert wird. Mit großzügigen 8 Zimmern und einer Wohnfläche von ~240 m² bietet dieses Haus ausreichend Platz für Ihre Familie oder sogar für mehrere Generationen unter einem Dach. Das Grundstück von ~565,00 m² ermöglicht Ihnen viel Gestaltungsspielraum im Außenbereich. Auf zwei Etagen finden Sie alles, was Sie für komfortables Wohnen benötigen, einschließlich eines modernen Badezimmers mit Dusche, Wanne und Fenster, welches für eine angenehme Belüftung sorgt.
Die hochwertigen Bodenbeläge aus Fliesen und Laminat überzeugen nicht nur durch ihre ansprechende Optik, sondern auch durch ihre Langlebigkeit und Pflegeleichtigkeit. Die Fliesen sind ideal für Feuchträume, da sie wasserabweisend sind, während der Laminatboden in den Wohnräumen für ein warmes Wohngefühl sorgt. Die umweltfreundliche Wärmepumpe als Befeuerungsart sorgt zudem für eine effiziente und nachhaltige Heizlösung, die Ihren CO2-Fußabdruck minimiert. Mit dem KFW40 Standard erfüllt Ihr neues Zuhause höchste Energiestandards für modernes Wohnen.
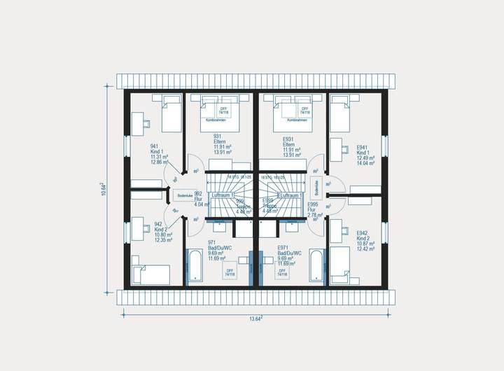
Die Abbildungen zeigen zum Teil Sonderausstattungen. Für die Richtigkeit und Vollständigkeit kann keine Gewähr bzw. Haftung übernommen werden.
Für die Richtigkeit und Vollständigkeit kann keine Gewähr bzw. Haftung übernommen werden.
Ihr Traum vom Einzelhaus mit zwei Wohneinheiten in Herbolzheim - Individuell und nachhaltig!
79336 Herbolzheim
Die vollständige Adresse der Immobilie erhalten Sie vom Anbieter.
Auf Karte anzeigen
Die vollständige Adresse der Immobilie erhalten Sie vom Anbieter.
Finanzierungszertifikat
In nur zwei Minuten zu Ihrem persönlichen Finanzierungszertifkat.
Infos
| Haustyp | Mehrfamilienhaus |
|---|---|
| Etagenzahl | 2 |
| Wohnfläche ca. | 234 m2 |
| Grundstücksfläche | 570 m2 |
| Zimmer | 8 |
Kosten
| Kaufpreis |
904.500 € |
|---|
Finanzierungsrechner:
Kaufpreis:
600.000 €
Eigenkapital:
600.000 €
Monatliche Rate
0 €
Effektiver Jahreszins
0 %
Sollzinsbindung
10 Jahre
Bausubstanz & Energieausweis
| Baujahr | unbekannt |
|---|---|
| Bauphase | Haus in Planung (projektiert) |
| Heizungsart | Wärmepumpe |
Beschreibung des Objekts
Ausstattung
- 8 Zimmer auf ~240 m² Wohnfläche
- Hochwertige Fliesen und Laminat als Bodenbeläge
- Modernes Badezimmer mit Dusche, Wanne und Fenster
- Effiziente Luft-Wasser-Wärmepumpe
- KFW40 Standard für energieeffizientes Wohnen
- Inklusive Dienstleistungspaket Free Time für vielbeschäftigte Kunden
allkauf bedeutet maximale Sicherheit, kurze Lieferzeiten und garantierte Fertigstellung. Zu allen Häusern gehört:
- Energieeffizienzwand
- Echtholztreppe
- Luft-Wasser-Wärmepumpe
- Fußbodenheizung
- Be- und Entlüftungsanlage
- 3-fach verglaste Fenster inklusive Rollläden mit Aluminiumlamellen
- Lichte Raumhöhe 2,75 m
- inkl. erhöhten Fenstern und Türen
- TOXPROOF Gütesiegel - schadstoffgeprüfter Materialien
- Just-in-Time-Lieferungen
- Bemustern im eigenen Bemusterungszentrum mit Markenprodukten
Vereinbaren Sie noch heute Ihren Termin zur Planung Ihres allkauf Traumhauses!
Die Grundstückskosten, Baunebenkosten und Außenanlagesind enthalten.
Nicht enthalten sind , alle Erwerbsnebenkosten und Finanzierungskosten (Grunderwerbsteuer, Maklergebühren und Notar etc.)
Lage
Herbolzheim bietet Ihnen eine hervorragende Infrastruktur mit Schulen, Einkaufsmöglichkeiten und Freizeitangeboten in unmittelbarer Nähe. Genießen Sie die Natur und die zahlreichen Freizeitmöglichkeiten, die diese charmante Stadt zu bieten hat.
Grundriss
Grundriss
>
>
Grundriss
>
>
Adresse
79336 Herbolzheim
Interessante Orte
Preis- und Lageinformationen
Preistrend für Bestandsimmobilien in Herbolzheim