Dieses einladende Einfamilienhaus aus dem Jahr 1972 überzeugt schon auf den ersten Blick mit seinem charaktervollen Landhausstil und einer besonders charmanten Außenwirkung. Liebevoll gestaltete Details wie das sichtbare Balkenwerk, die Holzfenster und der gepflasterte Eingangsbereich verleihen dem Haus eine warme, wohnliche Atmosphäre. Wichtig zu wissen: Bei dem Haus handelt es sich um ein Massivhaus, das sichtbare Balkenwerk dient ausschließlich der optischen Gestaltung und hat keine statische Funktion.
Die erhöhte Lage sowie der weitläufige Blick ins Grüne sorgen für ein Wohngefühl, das Ruhe und Naturgenuss wunderbar vereint.
Beim Betreten des Hauses empfängt Sie ein einladender Eingangsbereich, von dem aus Sie in die großzügig geschnittenen Wohnräume gelangen. Das helle Wohnzimmer beeindruckt mit seiner offenen Raumwirkung, den sichtbaren Holzbalken an der Decke und den großen Fenstern, die viel Tageslicht hereinlassen. Der wohnliche Parkettboden und die einheitliche Gestaltung schaffen eine Atmosphäre, in der man sich sofort zu Hause fühlt. Daneben befindet sich das Badezimmer, ausgestattet mit einer Wanne, WC und einem Waschbecken. Direkt daneben liegt das geräumige Esszimmer, das ebenfalls mit Holzbalken und einer stimmigen Optik begeistert. Von hier aus haben Sie Zugang zum Balkon, der einen herrlichen Ausblick auf die umgebende Natur bietet - perfekt für entspannte Momente im Freien.
Auch die Küche zeigt sich im klassischen Landhausstil. Die gepflegte Einbauküche mit ihren warmen Farbtönen, dekorativen Fronten und dem großzügigen Fensterbereich fügt sich harmonisch in das Gesamtbild ein.
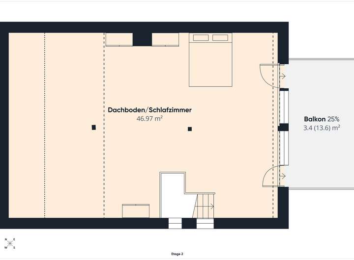
Ein besonderes Highlight ist das ausgebaute Dachgeschoss: Hier erwartet Sie ein beeindruckend großer, offener Raum mit stilvoller Holzvertäfelung, imposanter Deckenhöhe und einer Galerieoptik, die dem Bereich einzigartigen Charakter verleiht. Durch die großen Fensterfronten wirkt der Raum lichtdurchflutet und bietet direkten Zugang zu einer weiteren Dachterrasse. Dieser Bereich eignet sich hervorragend als großzügiges Schlafzimmer, Atelier oder kreativer Rückzugsort – ein Raum mit außergewöhnlichem Flair.
Im Untergeschoss stehen zwei weitere helle Räume zur Verfügung, die sich flexibel als Kinderzimmer, Gästezimmer oder Büro nutzen lassen. Besonders der größere Raum mit direktem Zugang in den Garten bietet einen hohen Wohnkomfort. Der Garten selbst ist liebevoll angelegt, mit verschiedenen Grünbereichen, einem kleinen Teich und Blick auf weite Felder. Hier können Familien, Tierliebhaber oder Hobbygärtner ihren eigenen Ruhepol gestalten. Durch die Hanglage wirken die einzelnen Bereiche besonders geschützt und privat. Zusätzliche Nutzflächen wie der Hauswirtschaftsraum und der Heizungsbereich sowie der direkte Zugang zur Garage runden das Angebot ab.
Dieses Einfamilienhaus vereint großzügige Wohnflächen, einen einzigartigen Landhausstil, wunderschöne Ausblicke und flexible Nutzungsmöglichkeiten auf drei Ebenen. Ein Zuhause, das Charakter zeigt und gleichzeitig ideale Voraussetzungen für Familien, Paare oder kreative Köpfe bietet, die Wert auf Atmosphäre, Platz und eine ruhige Lage inmitten der Natur legen.
Wenn Wohnen zum Rückzug wird: Großzügiges Einfamilienhaus mit herrlichem Weitblick zu verkaufen
53501 Grafschaft
Die vollständige Adresse der Immobilie erhalten Sie vom Anbieter.
Auf Karte anzeigen
Die vollständige Adresse der Immobilie erhalten Sie vom Anbieter.
Finanzierungszertifikat
In nur zwei Minuten zu Ihrem persönlichen Finanzierungszertifkat.
Infos
| Haustyp | Einfamilienhaus |
|---|---|
| Etagenzahl | 3 |
| Wohnfläche ca. | 172 m2 |
| Nutzfläche | 35 m2 |
| Grundstücksfläche | 294 m2 |
| Zimmer | 5 |
| Schlafzimmer | 2 |
| Badezimmer | 1 |
| Garage/Stellplatz | Garage |
| Anzahl Garage/Stellplatz | 2 |
Kosten
| Kaufpreis |
339.000 € |
|---|---|
| Provision |
3,57% |
Finanzierungsrechner:
Kaufpreis:
600.000 €
Eigenkapital:
600.000 €
Monatliche Rate
0 €
Effektiver Jahreszins
0 %
Sollzinsbindung
10 Jahre
Bausubstanz & Energieausweis
| Baujahr | 1972 |
|---|---|
| Bauphase | Haus fertig gestellt |
| Qualität der Austattung | Normal |
| Heizungsart | Öl-Heizung |
| Wesentliche Energieträger | Öl |
| Energieausweis | liegt vor |
| Energieausweistyp | Bedarfsausweis |
| Energieverbrauchskennwert | 214,7 kWh/(m²*a) |
| Energieeffizienzklasse | G |
214,7
kWh/(m²*a)
Energieeffizienzklasse G
- A+
- A
- B
- C
- D
- E
- F
- G
- H
- 0
- 25
- 50
- 75
- 100
- 125
- 150
- 175
- 200
- 225
- >250
Beschreibung des Objekts
Lage
Wo Ruhe, Natur und Lebensqualität sich begegnen.
Holzweiler, ein malerischer Ortsteil der Gemeinde Grafschaft, zählt zu den begehrten Wohnlagen im Kreis Ahrweiler. Inmitten sanft geschwungener Landschaften, umgeben von Feldern, Wiesen und kleinen Waldflächen, bietet der Ort eine Wohnqualität, die man nur selten findet: ruhig, naturnah und zugleich hervorragend angebunden.
Die unmittelbare Umgebung des Hauses lädt dazu ein, den Alltag hinter sich zu lassen. Ob Spaziergänge durch die Natur, entspannte Fahrradtouren oder Erholung im eigenen Garten - hier entsteht ein Lebensgefühl, das von Weite und Gelassenheit geprägt ist. Die herrlichen Ausblicke auf die umliegenden Grünflächen unterstreichen den besonderen Charakter dieser Lage.
Gleichzeitig profitieren Bewohner von einer sehr gut ausgebauten Infrastruktur der gesamten Gemeinde Grafschaft. Kindergärten, Schulen, Einkaufsmöglichkeiten und vielfältige Freizeitangebote sind in kurzer Zeit erreichbar. Die Nähe zu Bad Neuenahr-Ahrweiler, Meckenheim und Bonn sorgt dafür, dass sowohl berufliche Wege, bis zur Autobahn sind es nur 5 Minuten Fahrtweg, als auch kulturelle Aktivitäten komfortabel gestaltet werden können.
Besondere Akzente setzt die Vielfalt an Freizeit- und Erholungsmöglichkeiten der Region – von Wellnessangeboten über abwechslungsreiche Gastronomie bis hin zu weitläufigen Wanderwegen und naturnahen Ausflugszielen. Holzweiler vereint damit all die Eigenschaften, die anspruchsvolle Käufer schätzen: eine ruhige Wohnlage inmitten der Natur, ein harmonisches Umfeld sowie eine ausgezeichnete Erreichbarkeit in alle wichtigen Richtungen.
Ein Standort, der nicht nur den Alltag erleichtert, sondern das Leben bereichert – und den Charakter dieses besonderen Hauses auf ideale Weise ergänzt.
Grundriss
Grundriss EG
>
>
Grundriss DG
>
>
Grundriss KG
>
>
Adresse
53501 Grafschaft
Interessante Orte
Preis- und Lageinformationen
Preistrend für Bestandsimmobilien in Grafschaft