Stilvoll. Durchdacht. Zeitlos.
Diese moderne Doppelhaushälfte aus dem Jahr 2013 überzeugt durch klare Architektur, hochwertige Bauausführung und ein Raumkonzept, das sich konsequent an den Bedürfnissen anspruchsvoller Familien orientiert.
Auf drei Ebenen verbindet das Haus Großzügigkeit mit Energieeffizienz und zeitloser Eleganz.
Stilvoll. Durchdacht. Zeitlos.
63743 Aschaffenburg
Die vollständige Adresse der Immobilie erhalten Sie vom Anbieter.
Auf Karte anzeigen
Die vollständige Adresse der Immobilie erhalten Sie vom Anbieter.
Finanzierungszertifikat
In nur zwei Minuten zu Ihrem persönlichen Finanzierungszertifkat.
Infos
| Haustyp | Doppelhaushaelfte |
|---|---|
| Wohnfläche ca. | 155 m2 |
| Grundstücksfläche | 310 m2 |
| Zimmer | 5 |
| Schlafzimmer | 4 |
| Badezimmer | 2 |
| Garage/Stellplatz | Carport |
| Anzahl Garage/Stellplatz | 1 |
Kosten
| Kaufpreis |
849.000 € |
|---|---|
| Provision |
3,57 % inkl. MwSt. |
Finanzierungsrechner:
Kaufpreis:
600.000 €
Eigenkapital:
600.000 €
Monatliche Rate
0 €
Effektiver Jahreszins
0 %
Sollzinsbindung
10 Jahre
Bausubstanz & Energieausweis
| Baujahr | 2013 |
|---|---|
| Objektzustand | Gepflegt |
| Qualität der Austattung | Gehoben |
| Heizungsart | Fußbodenheizung |
| Wesentliche Energieträger | Pelletheizung |
| Energieausweis | liegt vor |
| Energieausweistyp | Verbrauchsausweis |
| Energieverbrauchskennwert | 68,6 kWh/(m²*a) |
| Energieeffizienzklasse | B |
68,6
kWh/(m²*a)
Energieeffizienzklasse B
- A+
- A
- B
- C
- D
- E
- F
- G
- H
- 0
- 25
- 50
- 75
- 100
- 125
- 150
- 175
- 200
- 225
- >250
Beschreibung des Objekts
Ausstattung
Eckdaten
Haustyp: Doppelhaushälfte
Baujahr: 2013
Grundstück: ca. 310 m²
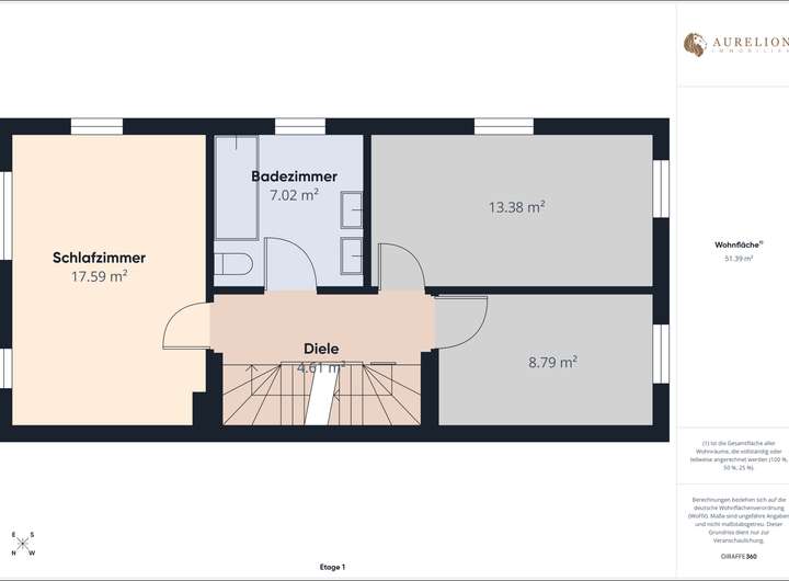
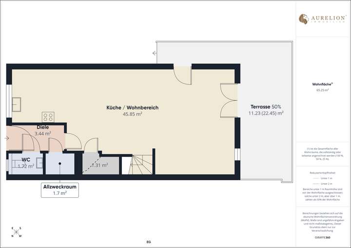
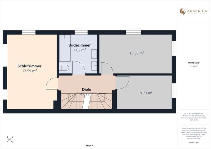
Wohnfläche: 155,7 m²
Zimmer: 5
Schlafzimmer: 4
Badezimmer: 2 zzgl. Gäste-WC
Etagen: Erdgeschoss, 1. Obergeschoss, ausgebautes Dachgeschoss
Verfügbar ab: Januar 2026
Architektur & Ausstattung:
Die Immobilie wurde im KfW-70-Standard errichtet und erfüllt damit hohe Ansprüche an Nachhaltigkeit und Wirtschaftlichkeit.
• Hochwertige zentrale Pellet-Heizungsanlage
• Vollwärmeschutz der Außenfassade
• Fußbodenheizung in allen Wohnbereichen
• Echtholzparkett für eine warme, hochwertige Anmutung
• Bodentiefe Fenster für maximale Lichtdurchflutung
• Elektrische Rollläden
• Einbauküche mit Gaggenau-Geräten
• Einbauschränke und Schiebetürelemente aus Holz
• Echtholztreppenaufgang
• Klimaanlage
• Dachterrasse mit Weitblick
• Carport
Wohnqualität:
Großzügige Räume, klare Linien und hochwertige Materialien prägen das Erscheinungsbild. Die Dachterrasse erweitert den Wohnraum nach außen und schafft einen privaten Rückzugsort mit besonderer Atmosphäre – ein seltenes Detail in dieser Kategorie.
Ein Haus mit klarer Architektur, effizienter Technik und nachhaltiger Substanz.
Lage
Lage
Die Wohnanlage liegt ruhig in einer Sackgasse und dennoch verkehrsgünstig mit kurzen Wegen. Einkaufsmöglichkeiten sind fußläufig erreichbar, der Stadtring ist schnell angebunden und ermöglicht ein zügiges Verlassen der Stadt. Die Fasanerie und das Schönthal befinden sich in kurzer Distanz und ergänzen die Lage um einen nahegelegenen Grünraum. Schulen und Kindergärten sind ebenfalls fußläufig, über die gut ausgebauten Radwege oder mit öffentlichen Verkehrsmittel sehr gut erreichbar.
Sonstige Angaben
Aurelion & Company wurde exklusiv vom Eigentümer mit der Vermarktung dieser Immobilie beauftragt. Gerne stehen wir Ihnen für Ihre Rückfragen zur Verfügung. Für eine Besichtigung vereinbaren Sie mit uns einen Termin.
Alle Angaben stammen vom Eigentümer bzw. Dritten. Diese wurden von uns sorgfältig geprüft und nach bestem Wissen und Gewissen bearbeitet. Alle Angaben sind somit ohne Gewähr auf Vollständigkeit und Richtigkeit.
Der Zwischenverkauf, die Zwischenvermietung, Fehler und Irrtümer bleiben uns vorbehalten.
Grundriss
Grundriss EG
>
>
Grundriss 1.OG
>
>
Grundriss 2.OG
>
>
Adresse
63743 Aschaffenburg
Interessante Orte
Preis- und Lageinformationen
Preistrend für Bestandsimmobilien in Stadtmitte