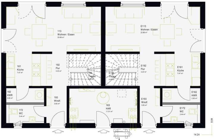
In unserem FamilyStyle 20.04 S können zwei Wohnparteien nebeneinander leben und gleichzeitig großzügige Räume und besonderen Wohnkomfort genießen: Insgesamt steht eine Wohnfläche von 204,02 m² zur Verfügung. Im Grundriss sind die beiden Wohneinheiten spiegelbildlich angeordnet - und können an die Wünsche der Baufamilien angepasst werden. Unten befinden sich je ein offener Koch-, Ess- und Wohnbereich, Gäste-WC und ein Hauswirtschaftsraum, der von beiden Parteien genutzt wird. Eine u-förmige Treppe führt in das obere Stockwerk. Dort ist Platz für ein geräumiges Bad, mehrere Schlafräume oder Hobby- und Arbeitszimmer. So ist das FamilyStyle 20.04 S wie gemacht für Familien, die voll im Leben stehen.
Doppelhaushälfte - nette Baupartner-Familie gesucht!
04821 Brandis
Die vollständige Adresse der Immobilie erhalten Sie vom Anbieter.
Auf Karte anzeigen
Die vollständige Adresse der Immobilie erhalten Sie vom Anbieter.
Finanzierungszertifikat
In nur zwei Minuten zu Ihrem persönlichen Finanzierungszertifkat.
Infos
| Haustyp | Einfamilienhaus |
|---|---|
| Etagenzahl | 2 |
| Wohnfläche ca. | 100 m2 |
| Nutzfläche | 100 m2 |
| Grundstücksfläche | 500 m2 |
| Zimmer | 4 |
| Schlafzimmer | 3 |
| Badezimmer | 2 |
Kosten
| Kaufpreis |
350.000 € |
|---|
Finanzierungsrechner:
Kaufpreis:
600.000 €
Eigenkapital:
600.000 €
Monatliche Rate
0 €
Effektiver Jahreszins
0 %
Sollzinsbindung
10 Jahre
Bausubstanz & Energieausweis
| Baujahr | unbekannt |
|---|---|
| Objektzustand | Erstbezug |
Beschreibung des Objekts
Ausstattung
Bei uns entscheiden Sie!
Eigenleistung ist Eigenkapital. Beim Hausbau setzen wir deshalb auf eine flexible Bauweise, die sich durch das kostensparende Bauen mit persönlich definierbaren Eigenleistungen auszeichnet und für Sie unzählige Vorteile bietet. Dadurch lässt sich mit einem massa haus mehr Wohnkomfort realisieren, denn jedes Haus wird nach den persönlichen Wünschen unserer Baufamilien geplant. Nutzen auch Sie die Option, individuell gestaltbare Eigenleistungen beim Hausbau direkt in anrechenbares Eigenkapital umzuwandeln.
Folgendes ist in diesem Angebot (Ihr technikfertiges Haus) bereits enthalten:
- der Grundstückskaufpreis
- modernes Niedrigenergie-Ausbauhaus
- 3-fach verglaste Wärmeschutzfenster
- Aluminium-Rollläden
- FREIRAUM-Deckenhöhe 2,75m
- modernes Haustürelement
- mineralischer Struktur-Außenputz
- Dacheindeckung in versch. Farben zur Auswahl
- Bodenplatte (mit Baugrunduntersuchung und Bodengutachten)
- Baukran und Baugerüst
- Luft-Wasser Wärmepumpe inkl. Fußbodenheizung
- integrierte Be- und Entlüftungsanlage
- Holztreppe
- Elektroinstallation im Haus
- Sanitär-...
Lage
Brandis ist eine familienfreundliche Kleinstadt im Landkreis Leipzig, nur etwa 20 Kilometer östlich der Leipziger Innenstadt gelegen. Die Stadt überzeugt durch eine sehr gute Verkehrsanbindung - sowohl über die Bundesstraße B6 als auch mit der S-Bahn - und bietet somit eine schnelle Erreichbarkeit der Leipziger Metropolregion. Schulen, Kindergärten, Einkaufsmöglichkeiten sowie medizinische Einrichtungen sind vor Ort vorhanden. Die grüne Umgebung mit Wäldern, Seen und dem Naherholungsgebiet rund um den Albrechtshainer See lädt zu Freizeitaktivitäten und Erholung ein. Brandis vereint ruhiges Wohnen im Grünen mit der Nähe zur Großstadt.
Sonstige Angaben
massa haus-Ausbauhäuser sind seit 47 Jahren erste Wahl für aktive und kreative Hausbau-Individualisten! Mit Hauptsitz in Simmern (Hunsrück) begleitet die massa haus GmbH seit 1978 Baufamilien dabei, den Traum vom Eigenheim zu verwirklichen. Jährlich bauen wir ca. 2000 neue Fertighäuser und entwickeln unsere Fertighausmodelle fortlaufend modern und umweltfreundlich weiter. Wir bauen Ihr massa haus-Fertighaus nachhaltig und energieeffizient. Damit wird Ihre Immobilie zur idealen Wertanlage, die jeden Tag erlebbar ist.
Grundriss
Erdgeschoss
>
>
Obergeschoss
>
>
Adresse
04821 Brandis
Interessante Orte
Preis- und Lageinformationen
Preistrend für Bestandsimmobilien in Brandis