Objekt projektiert.
Das BALANCE 120 V2 ist das perfekte Haus für Bauherren, die auf nichts verzichten möchten. Sein äußeres Erscheinungsbild wird geprägt von einer sachlich-klaren Formensprache und einer schlichten Farbgestaltung. Gekrönt wird der schlanke Baukörper von einem Satteldach, mit dem sich das Haus besonders in urbane Bausituationen harmonisch einfügt. Der bewusste Verzicht auf Dachüberstände an Giebeln und Traufen unterstreicht den modernen, geradlinigen Charakter des Gebäudes. Für Spannung sorgen die Fenster, die mit verschiedenen Größen und Arten die strenge Geometrie durchbrechen: Vertikale Lichtbänder wechseln sich mit raumhohen Fenstertüren und breiten Glasfronten ab. Ihre Anordnung folgt dabei nicht nur gestalterischen, sondern in erster Linie funktionalen Aspekten: Während sich das Haus zur Straßenseite eher zurückhaltend mit kleineren Lichtöffnungen präsentiert, um nicht zu viel von der Privatsphäre preiszugeben, darf es auf der blickgeschützten Gartenseite etwas großzügiger zugehen. Ein schöner Blickfang ist die Holzverschalung, die sich über zwei Etagen erstreckt und dem Einfamilienhaus eine persönliche bzw. regionaltypische Note verleiht. Regional wäre auch eine Klinkerverkleidung denkbar.
Das Innere des Hauses bietet trotz der kompakten Außenmaße ausreichend Bewegungsfreiraum für bis zu vier Personen. Das liegt nicht zuletzt an der durchdachten Raumaufteilung. Dreh- und Angelpunkt des Familienlebens ist das Erdgeschoss, wo sich der weitläufige Wohn-, Ess- und Kochbereich befindet. Schon vom Eingang aus fällt der Blick durch die Diele hinein in den lichtdurchfluteten Gemeinschaftsbereich. Besonders praktisch ist der zweite Zugang, der die Bewohner direkt in die Küche führt. So können schwere Einkäufe ohne Umwege schnell an ihren Platz gebracht werden. Zusätzliche Stellfläche und weiteren Stauraum bietet der Technikraum, der an die Küche angrenzt.
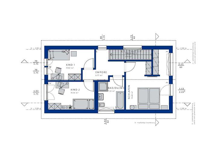
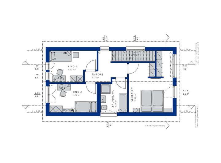
Über eine geradläufige Treppe gelangen die Bewohner in das Dachgeschoss, das die Privaträume beherbergt. Dank des hohen Kniestocks von 2 m herrscht auch hier oben eine großzügige und luftige Atmosphäre. Ein geräumiges Elternschlafzimmer mit Ankleide, zwei gleich große Kinderzimmer und ein gemütliches Bad mit Wanne und Dusche vervollständigen das Wohnglück.
Attraktives Einfamilienhaus in ruhiger Lage
95197 Schauenstein
Die vollständige Adresse der Immobilie erhalten Sie vom Anbieter.
Auf Karte anzeigen
Die vollständige Adresse der Immobilie erhalten Sie vom Anbieter.
Finanzierungszertifikat
In nur zwei Minuten zu Ihrem persönlichen Finanzierungszertifkat.
Infos
| Haustyp | Einfamilienhaus |
|---|---|
| Etagenzahl | 2 |
| Wohnfläche ca. | 128 m2 |
| Grundstücksfläche | 530 m2 |
| Zimmer | 4 |
Kosten
| Kaufpreis |
426.278 € |
|---|
Finanzierungsrechner:
Kaufpreis:
600.000 €
Eigenkapital:
600.000 €
Monatliche Rate
0 €
Effektiver Jahreszins
0 %
Sollzinsbindung
10 Jahre
Bausubstanz & Energieausweis
| Baujahr | unbekannt |
|---|
Beschreibung des Objekts
Lage
Schauenstein ist eine kleine Stadt im oberfränkischen Landkreis Hof, eingebettet zwischen dem Naturpark Frankenwald und dem Fichtelgebirge. Mit etwa 2.000 Einwohnern bietet sie eine hohe Lebensqualität in ländlicher Idylle und profitiert von einer soliden Infrastruktur.
Adresse
95197 Schauenstein
Interessante Orte
Preis- und Lageinformationen
Preistrend für Bestandsimmobilien in Schauenstein