Im idyllischen Neuhengstett warten nur noch fünf Einfamilienhäuser im Henri-Arnaud-Carré auf ihre neuen Eigentümer. Die massiv errichteten Architektenhäuser mit edler Holzfassade sind bereits fertiggestellt – und bieten Ihnen die besondere Gelegenheit, den Innenausbau ganz nach Ihren individuellen Wünschen zu gestalten.
Gewinnerprojekt im Architektenwettbewerb
Die Einfamilienhäuser sind Teil einer ausgezeichneten Projektentwicklung, die im Architektenwettbewerb als Sieger hervorging. Damit steht das Henri-Arnaud-Carré für Architektur auf höchstem Niveau – durchdacht, ästhetisch und zukunftsweisend.
Architektur mit Stil und Substanz
Mit ca. 154 m² Wohnfläche auf Grundstücken von rund 350–400 m² bieten die Häuser großzügige Raumkonzepte: offene Wohn-/Essbereiche, helle Zimmer mit großen Fensterflächen und ein optionaler Hobbyraum im Untergeschoss. Eine massiv gebaute Garage, ein Terrassenbereich mit viel Privatsphäre sowie ein Gartenhaus für zusätzlichen Stauraum sind inklusive.
Modern, nachhaltig und zukunftssicher
Das Quartier überzeugt durch nachhaltige Energieversorgung: Nahwärme, elegant integrierte Photovoltaik-Technik und vorbereitete Anschlüsse für Wallboxen machen Ihr Zuhause fit für morgen.
Ihr Vorteil: Mitgestalten und einziehen
Während die äußere Gestaltung bereits vollendet ist, entscheiden Sie über die Innenausstattung nach Maß – von Bodenbelägen über Fliesen bis hin zu Bädern und Küchen. So entsteht ein Zuhause, das Ihre persönliche Handschrift trägt.
Bauträger mit 30 Jahren Erfahrung
Die IW Plan Althengstett GmbH, Teil der Münz Immobilien Gruppe, steht für absolute Preissicherheit und Qualität aus der Region. Als erfahrener Bauträger mit über drei Jahrzehnten Erfahrung begleiten wir Sie bis zur Schlüsselübergabe – für Sie bedeutet das: ein sorgenfreier Weg ins Eigenheim.
Wohnen auf höchstem Niveau - Ganz nach Ihren Vorstellungen
75382 Althengstett
Die vollständige Adresse der Immobilie erhalten Sie vom Anbieter.
Auf Karte anzeigen
Die vollständige Adresse der Immobilie erhalten Sie vom Anbieter.
Finanzierungszertifikat
In nur zwei Minuten zu Ihrem persönlichen Finanzierungszertifkat.
Infos
| Haustyp | Einfamilienhaus |
|---|---|
| Etagenzahl | 2 |
| Wohnfläche ca. | 153 m2 |
| Nutzfläche | 39,6 m2 |
| Grundstücksfläche | 335 m2 |
| Bezugsfrei ab | sofort |
| Zimmer | 5 |
| Schlafzimmer | 4 |
| Garage/Stellplatz | Garage |
| Anzahl Garage/Stellplatz | 2 |
Kosten
| Kaufpreis |
795.000 € |
|---|---|
| Provision |
keine zusätzliche Käuferprovision |
Finanzierungsrechner:
Kaufpreis:
600.000 €
Eigenkapital:
600.000 €
Monatliche Rate
0 €
Effektiver Jahreszins
0 %
Sollzinsbindung
10 Jahre
Bausubstanz & Energieausweis
| Baujahr | 2025 |
|---|---|
| Bauphase | Haus fertig gestellt |
| Objektzustand | Erstbezug |
| Qualität der Austattung | Gehoben |
Beschreibung des Objekts
Ausstattung
Ausstattungsdetails im Überblick
* Fertiggestellte Außenanlagen:
* Garage in Massivbauweise
* Terrasse mit hoher Privatsphäre
* Garten inkl. Gartenhaus & Bepflanzung
* Stellplatz(e) vor dem Haus
* Massive Bauweise mit Tonziegeln (kein Styropor)
* Edle Echt-Holzfassade – langlebig, hinterlüftet & vorvergraut
* Flachdach mit moderner Attika für versteckte PV-Anlage
* Gestaltungsfreiheit im Innenbereich:
* Innenausbau inklusive & frei planbar
* Ausbau gegen Preisnachlass auch in Eigenleistung möglich
* Architektenhilfe bei individueller Raumaufteilung
* Nachhaltigkeit & Technik:
* PV-Anlage (unsichtbar vom Boden aus)
* Nahwärmeversorgung durch die Gemeinde
* Wallbox-Vorbereitung an allen Stellplätzen
* Glasfaseranschluss für Highspeed-Internet
* Ideal für Familien & Individualisten:
* Privatweg mit Spielflächen & Pergolas
* Kurze Wege zu Schule, Supermarkt & ÖPNV
* Ruhige Lage mit viel Grün und Parkflair
Lage
Leben mit bester Anbindung
Althengstett verbindet naturnahes Wohnen im schönen Heckengäu mit bester Erreichbarkeit:
• 40 Minuten nach Stuttgart – ob mit Auto oder Bahn, die Landeshauptstadt liegt bequem in Reichweite.
• Direkte Verbindung mit der neuen Hermann-Hesse-Bahn: In Kürze fährt die S-Bahn ab Althengstett bis nach Stuttgart-Mitte – schnell, komfortabel und ohne Umstieg.
• Kurze Wege zu bedeutenden Arbeitgebern: Mercedes-Benz, Porsche oder Bosch sind in rund 20–45 Minuten erreichbar und machen den Standort auch für Berufspendler attraktiv.
• 5 Minuten zum Supermarkt, Bäcker oder Metzger.
• Schulen, Kindergarten, Apotheke, Bücherei, Schwimmbad und vielfältige Freizeitangebote direkt vor Ort.
So genießen Sie die Ruhe des Heckengäus und profitieren zugleich von urbaner Nähe und ausgezeichneter Infrastruktur.
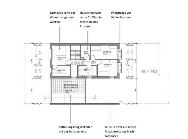
Grundriss
Grundriss UG
>
>
Grundriss EG
>
>
Grundriss OG
>
>
Adresse
75382 Althengstett
Interessante Orte
Preis- und Lageinformationen
Preistrend für Bestandsimmobilien in Althengstett