Diese Doppelhaushälfte aus dem Jahr 2017 überzeugt durch eine klare architektonische Handschrift, großzügige Proportionen und eine angenehm ruhige Materialästhetik. Bereits die Eingangssituation wirkt leicht und modern: Ein geschützter Zugang führt in eine helle Diele, in der Naturstein, Eiche und Glas eine hochwertige Grundstimmung schaffen.
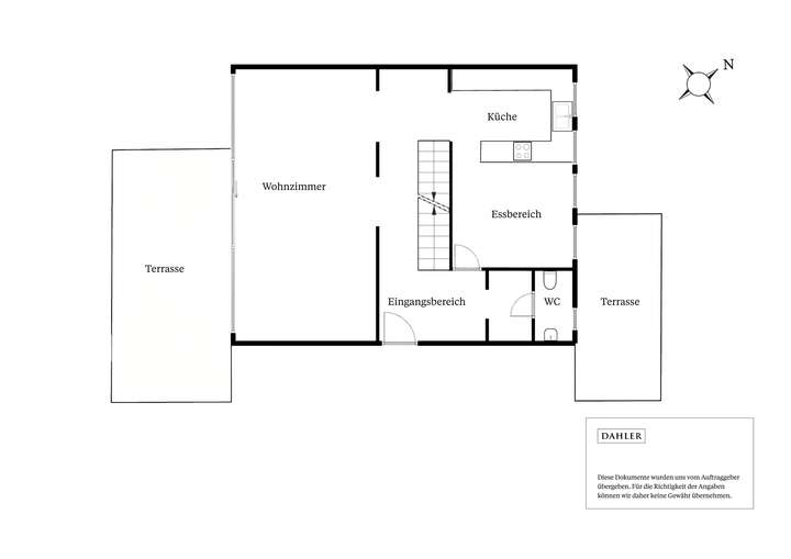
Der Wohnbereich im Erdgeschoss ist als zusammenhängende Raumsequenz gestaltet – Küche, Essen und Wohnen greifen harmonisch ineinander. Die Küche mit ihren weißen Fronten setzt einen feinen Kontrast zum warmen Eichenboden. Der Essbereich bildet das Zentrum und öffnet sich über breite Sichtachsen in mehrere Richtungen. Großformatige Fensterflächen und raumhohe Schiebetüren verbinden den Wohnbereich fließend mit dem Garten. Eine maßgefertigte Holzpaneelwand mit integrierter Medienlösung setzt einen klaren gestalterischen Akzent.
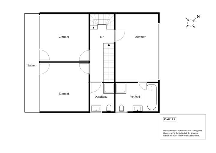
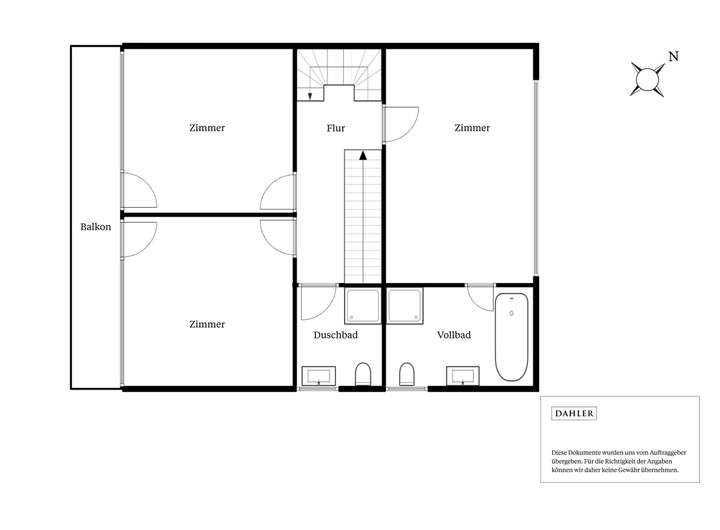
Im Obergeschoss zeigt sich die Struktur des Hauses besonders deutlich: Zwei nahezu identisch geschnittene Kinderzimmer liegen nebeneinander und teilen sich den Balkon. Ein eigenes Duschbad grenzt unmittelbar an. Das Elternschlafzimmer bildet mit langem Fensterband, zusätzlichem Dachflächenfenster und maßgefertigten Einbauschränken eine private Rückzugsebene; das en suite Vollbad ist modern und hochwertig ausgestattet.
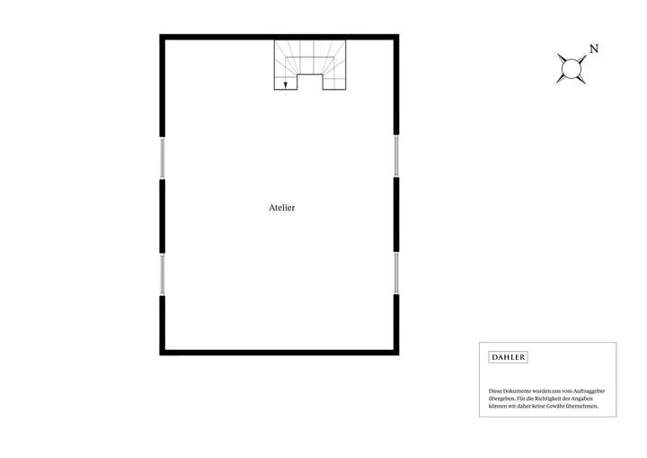
Das Dachgeschoss erweitert das Haus um ein großzügiges Atelier mit über 27m² Fläche. Der offene Charakter, die Lichtführung über mehrere Dachflächenfenster und die klare Geometrie machen diesen Raum vielseitig nutzbar.
Das Untergeschoss ist als vollwertige Ebene ausgeführt: Ein Fitness-, Hobby- und Lagerraum sowie der Technikbereich bieten viel Platz und Flexibilität – unterstützt durch durchgehende Fußbodenheizung und wertige Bodenbeläge.
Der Außenbereich umfasst eine großzügige Südwestterrasse, während der Whirlpool in einer geschützten Zone des Ostgartens platziert ist. Eine Einzelgarage mit elektrischem Sektionaltor, zusätzlichem Stauraum und zwei 11-kW-Wallboxen ergänzt das Angebot.
Architektur mit Klarheit – Wohnen auf hohem Niveau
82178 Puchheim
Die vollständige Adresse der Immobilie erhalten Sie vom Anbieter.
Auf Karte anzeigen
Die vollständige Adresse der Immobilie erhalten Sie vom Anbieter.
Finanzierungszertifikat
In nur zwei Minuten zu Ihrem persönlichen Finanzierungszertifkat.
Infos
| Haustyp | Doppelhaushaelfte |
|---|---|
| Etagenzahl | 3 |
| Wohnfläche ca. | 220 m2 |
| Grundstücksfläche | 495 m2 |
| Bezugsfrei ab | 01.01.2026 |
| Zimmer | 7 |
| Schlafzimmer | 4 |
| Badezimmer | 2 |
Kosten
| Kaufpreis |
1.650.000 € |
|---|---|
| Provision |
3,57 % inkl. der gesetzl. MwSt., bezogen auf den Kaufpreis |
Finanzierungsrechner:
Kaufpreis:
600.000 €
Eigenkapital:
600.000 €
Monatliche Rate
0 €
Effektiver Jahreszins
0 %
Sollzinsbindung
10 Jahre
Bausubstanz & Energieausweis
| Baujahr | 2017 |
|---|---|
| Objektzustand | Neuwertig |
| Heizungsart | Wärmepumpe |
| Wesentliche Energieträger | Erdwärme |
| Energieausweis | liegt vor |
| Energieausweistyp | Verbrauchsausweis |
| Energieverbrauchskennwert | 22,4 kWh/(m²*a) |
| Energieeffizienzklasse | A+ |
22,4
kWh/(m²*a)
Energieeffizienzklasse A+
- A+
- A
- B
- C
- D
- E
- F
- G
- H
- 0
- 25
- 50
- 75
- 100
- 125
- 150
- 175
- 200
- 225
- >250
Beschreibung des Objekts
Ausstattung
• massive Ziegelbauweise
• Weiße Wanne als Kellerabdichtung (Wasserundurchlässiger Stahlbeton nach DAfStb-Richtlinie – hochwertiger Feuchteschutz für alle Kellerräume)
• Kellerfenster als Nautilus-Systemfenster (hochwertig, druckwasserdicht, ideal für weiße Wanne)
• Eiche-Massivholzdielen, gewachst
• Natursteinböden aus Ditfurter Kalkstein
• maßgefertigte Vollholztüren und Schreinerarbeiten in Garderobe, Schlafzimmern, Bädern und Wohnbereich
• Einbauküche in zurückhaltendem Weiß mit Acrylfronten in SENSOtec-Qualität (extrem kratzfest, anti-fingerprint)
• Keramikarbeitsplatte
• Holz-Alu-Fenster, 3-fach verglast
• Automatische Verschattung der Fenster über Smart-Home-Steuerung
• LED-Auf- und Einbauleuchten in allen Etagen
• Fußbodenheizung in allen Geschossen inklusive Keller
• Glasgeländer in VSG
• große elektrische Außenmarkise bei der Süd-West Terrasse
• WLAN-Abdeckung in allen Ebenen
• Whirlpool von Villeroy & Boch mit eingebauter Chlordosieranlage und Soundsystem, abgeschirmt platziert
• angelegter Süd-Ostgarten mit neuem Lärchenzaun
• Einzelgarage mit elektrischem Sektionaltor, zusätzlichem Stauraum und zwei 11-kW-Wallboxen
• zusätzlicher Außenstellplatz
Lage
Puchheim Ort gilt als charaktervoller Wohnort im Münchner Westen – ein Stadtteil, der seine ruhige, gewachsene Struktur bewahrt hat und gleichzeitig eine bemerkenswert gute Infrastruktur bietet. Die Umgebung wirkt geordnet und freundlich: breite Wege, gepflegte Gärten, familienorientierte Straßenräume und kurze Distanzen zu allem, was den Alltag erleichtert.
Mehrere Spielplätze liegen in bequemer Nähe. Die Spaziermöglichkeiten sind vielfältig – von leichten Rundwegen entlang des Gröbenbachs bis hin zu ausgedehnten Wegen über die Felder zwischen Puchheim und Eichenau.
Ein lokales Highlight ist die Milchtankstelle am Spieglhof, die mit frischer, regionaler Milch und saisonalen Hofprodukten längst zu einem beliebten Anlaufpunkt geworden ist. Ergänzt wird das Angebot durch den Wochenmarkt am Grünen Markt im historischen Ortszentrum.
Familien profitieren von kurzen Wegen zur Grundschule Puchheim-Ort, mehreren Kitas sowie Sport- und Freizeitangeboten wie dem SV Puchheim. Die Anbindung ist komfortabel: Das MVV-RufTaxi verbindet Puchheim Ort flexibel mit dem S-Bahnhof Puchheim. Von dort fährt die S4 in kurzer Zeit nach München-Pasing und weiter in die Innenstadt – ein pendlerfreundlicher Weg, ganz ohne Parkplatzsuche.
Puchheim Ort vereint damit all das, was anspruchsvolle Wohnlagen auszeichnet: Ruhe, Nähe zur Natur, kurze Wege und eine Infrastruktur, die den Alltag spürbar erleichtert.
Grundriss
Erdgeschoss
>
>
1. Obergeschoss
>
>
Dachgeschoss
>
>
Kellergeschoss
>
>
Adresse
82178 Puchheim
Interessante Orte
Preis- und Lageinformationen
Preistrend für Bestandsimmobilien in Puchheim