Diese charmante Immobilie in Reihenendbauweise bietet auf zwei Etagen ein funktionales und harmonisch gestaltetes Raumkonzept das ideal für Paare, kleine Familien oder kreative Lebensentwürfe ist. Der Garten lädt zu sonnigen und entspannten Stunden ein.
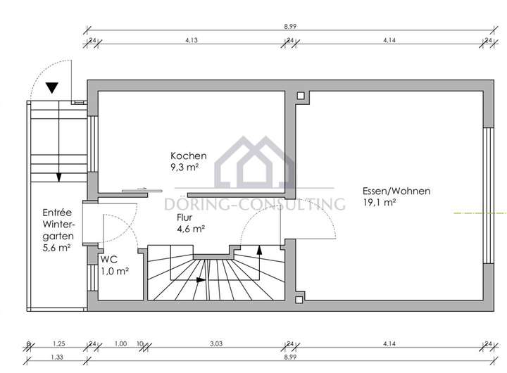
Die Immobilie verfügt über insgesamt ca. 72qm. Zunächst betreten Sie den kleinen Windfang. Die Diele lässt ausreichend Platz für Ihre Garderobe. Rechterhand befindet sich das Gäste-WC.
Der Wohn - und Essbereich wird durch das große Fenster mit ausreichend Licht durchflutet. Die angrenzende Küche lässt sogar Platz für eine Essecke.
Die obere Etage verfügt über zwei Schlafzimmer. Das größte Zimmer ist geräumig geschnitten. Von hieraus gelangen Sie auch auf den Balkon.
Das zweite Schlafzimmer kann optional als Kinder-/Gäste- oder Arbeitszimmer genutzt werden.
Des Weiteren ist das weißgeflieste Tageslichtbad mit einer Dusche ausgestattet.
Ein Dachausbau/Erweiterung wäre prüfbar und würde eine höhere Ausnutzung ermöglichen. Dies bedarf jedoch der Zustimmung sowie Genehmigung der Bauämter und gilt daher ohne Gewähr. Eine unverbindliche Planung liegt bereits vor.
Die Immobilie ist vollständig unterkellert.
Optional kann eine Garage zusätzlich auf dem Nachbargrundstück für 10€ p. A. angemietet werden. Andernfalls lässt das Grundstück auch ausreichend Platz für einen Stellplatz.
Schnuckeliges REH mit Potenzial
63579 Freigericht
Die vollständige Adresse der Immobilie erhalten Sie vom Anbieter.
Auf Karte anzeigen
Die vollständige Adresse der Immobilie erhalten Sie vom Anbieter.
Finanzierungszertifikat
In nur zwei Minuten zu Ihrem persönlichen Finanzierungszertifkat.
Infos
| Haustyp | Reiheneckhaus |
|---|---|
| Etagenzahl | 2 |
| Wohnfläche ca. | 72 m2 |
| Grundstücksfläche | 289 m2 |
| Bezugsfrei ab | Sofort |
| Zimmer | 3 |
| Schlafzimmer | 2 |
| Badezimmer | 1 |
| Garage/Stellplatz | Außenstellplatz |
| Anzahl Garage/Stellplatz | 1 |
Kosten
| Kaufpreis |
199.000 € |
|---|---|
| Provision |
3,57% inkl. MwSt. Die Käuferprovision beträgt 3,57% inkl. MwSt. des beurkundeten Kaufpreises. |
Finanzierungsrechner:
Kaufpreis:
600.000 €
Eigenkapital:
600.000 €
Monatliche Rate
0 €
Effektiver Jahreszins
0 %
Sollzinsbindung
10 Jahre
Bausubstanz & Energieausweis
| Baujahr | 1962 |
|---|---|
| Objektzustand | Renovierungsbedürftig |
| Heizungsart | Zentralheizung |
| Wesentliche Energieträger | Gas |
| Energieausweis | liegt vor |
| Energieausweistyp | Bedarfsausweis |
| Energieverbrauchskennwert | 375,8 kWh/(m²*a) |
| Energieeffizienzklasse | H |
375,8
kWh/(m²*a)
Energieeffizienzklasse H
- A+
- A
- B
- C
- D
- E
- F
- G
- H
- 0
- 25
- 50
- 75
- 100
- 125
- 150
- 175
- 200
- 225
- >250
Beschreibung des Objekts
Ausstattung
Hinweis: Es wurde teilweise ein virtuelles Staging verwendet. Lediglich die Einbauküche ist als Inventar vorhanden.
- Sanierungsbedürftig
- Einbauküche
- Balkon
- Keller
- Gäste-WC
- Gaszentralheizung aus 2012
- Kunststofffenster (doppelverglast)
- Optional anzumietende Garage auf dem Nachbargrundstück
Lage
Die Immobilie befindet sich in einer ruhigen und gepflegten Wohnlage in Freigericht, die besonders für Familien und Paare attraktiv ist. Die Nachbarschaft ist geprägt von Einfamilienhäusern, gepflegten Grünflächen und einer angenehmen Wohnatmosphäre.
Alle Einrichtungen des täglichen Bedarfs, wie Supermärkte, Apotheken, Bäckereien und Ärzte, sind schnell erreichbar. Schulen, Kindergärten und Freizeitangebote befinden sich in der Nähe, sodass kurze Wege den Alltag erleichtern. Gleichzeitig lädt die Umgebung zu Spaziergängen und Erholung im Grünen ein.
Die Anbindung an den öffentlichen Nahverkehr sowie an das Straßennetz ist gut, sodass umliegende Städte und das Rhein-Main-Gebiet bequem erreichbar sind. Insgesamt überzeugt die Lage durch die Kombination aus ruhigem Wohnen, guter Infrastruktur und naturnaher Umgebung ideal für alle, die ein angenehmes Wohnumfeld suchen.
Sonstige Angaben
Haftungsausschluss:
Alle in diesem Angebot enthaltenen Angaben, Abmessungen und Preisangaben beruhen auf Angaben des Eigentümers. Hierfür übernehmen wir keine Haftung. Irrtum und Zwischenverfügungen bleiben vorbehalten.
Provisionshinweis:
Mit der Anfrage bei und durch Inanspruchnahme der Dienstleistung unserer Firma wird ein Maklervertrag geschlossen. Sollte durch unsere Nachweis- oder Vermittlungstätigkeit ein notarieller Kaufvertrag zustande kommen, ist vom Käufer eine Provision in Höhe von 3,57% (inkl. Gesetz. MwSt.) des Kaufpreises an uns zu zahlen. Die Firma DÖRING-CONSULTING hat einen provisionspflichtigen Maklervertrag in gleicher Höhe mit dem Verkäufer abgeschlossen. Die Provision ist mit Vertragsabschluss verdient, zahlbar und sofort fällig.
Adresse
63579 Freigericht
Interessante Orte
Preis- und Lageinformationen
Preistrend für Bestandsimmobilien in Freigericht