Willkommen in Ihrem neuen Zuhause – einem charmanten Reihenendhaus in begehrter Lage von Pößneck, das mit über 150 m² Wohnfläche auf mehreren Ebenen viel Raum für Leben, Familie und individuelle Wohnträume bietet. Gerade diese Etagenbauweise verleiht der Immobilie ihren besonderen Reiz: Sie verbindet Individualität und Flexibilität – ideal, um Wohnen, Arbeiten und Rückzug ganz nach Ihren Bedürfnissen zu gestalten.
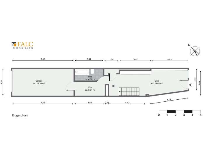
Im Erdgeschoss empfängt Sie von Stadtseite eine großzügige Diele, die einladend Platz für Garderobe und Ankommen schafft. Ein Badezimmer mit Badewanne lädt zu entspannten Wohlfühlmomenten ein. Praktisch durchdacht: Über den Flur gelangen Sie direkt in die mit dem Haus verbundene Garage, die direkt vom Haus aus zugänglich ist.
Im 1. Obergeschoss befindet sich der Lebensmittelpunkt: Neben einem separaten WC und einer zusätzlichen Dusche erwarten Sie Küche und Wohnzimmer. Der lichtdurchflutete Wohnbereich öffnet sich nach außen und führt Sie in Ihren zukünftigen Freiraum und auf die Terrasse.
Das 2. Obergeschoss überzeugt mit einem durchdachten Grundriss und viel Stauraum: Der Flur ist mit Einbauschränken ausgestattet und bietet Platz für alles, was im Alltag gut verstaut sein will. Von hier aus erreichen Sie das Schlafzimmer sowie ein Kinderzimmer, das sich ebenso gut als Gäste- oder Arbeitszimmer nutzen lässt.
Ein echtes Highlight ist das ausgebaute Dachgeschoss: Eine knapp 37 m² große, offene Fläche mit vielfältigen Gestaltungsmöglichkeiten – ob Hobbyraum, Atelier oder ein Rückzugsort zum Arbeiten und Entspannen. Für behaglichen Komfort sorgt hier eine zusätzliche moderne Infrarot-Fußbodenheizung, die jederzeit wohlige Wärme schafft.
Das Haus wurde in den letzten Monaten bereits für Sie renoviert. Die Restarbeiten wurden bewusst offengelassen, um diese gemeinsam mit Ihnen als zukünftigen Eigentümer abzustimmen – so können Sie Ihre eigenen Vorstellungen direkt noch einfließen lassen.
Besonders attraktiv ist die Außenfläche: Die Terrasse auf dem Anbau ist bereits vorbereitet. Hier haben Sie die ideale Grundlage, Ihre persönliche Wohlfühl-Oase nach eigenen Ideen zu gestalten. Ein zusätzlicher Pluspunkt: Die Garage schließt sich an die Terrasse an und bildet so eine wunderbare Verbindung zum Haus – praktisch im Alltag und zugleich ein stimmiges Ensemble, das Innen und Außen harmonisch miteinander verknüpft.
Jeder bekommt seine eigene Etage! Terrasse und Garage und viel Platz auf engstem Raum
07381 Pößneck
Die vollständige Adresse der Immobilie erhalten Sie vom Anbieter.
Auf Karte anzeigen
Die vollständige Adresse der Immobilie erhalten Sie vom Anbieter.
Finanzierungszertifikat
In nur zwei Minuten zu Ihrem persönlichen Finanzierungszertifkat.
Infos
| Haustyp | Sonstige |
|---|---|
| Etagenzahl | 4 |
| Wohnfläche ca. | 154 m2 |
| Nutzfläche | 2 m2 |
| Grundstücksfläche | 120 m2 |
| Bezugsfrei ab | sofort |
| Zimmer | 4 |
| Schlafzimmer | 3 |
| Badezimmer | 2 |
| Garage/Stellplatz | Carport |
| Anzahl Garage/Stellplatz | 1 |
Kosten
| Kaufpreis |
167.300 € |
|---|---|
| Provision |
3,57 % inkl. MwSt. vom notariell vereinbarten Kaufpreis |
Finanzierungsrechner:
Kaufpreis:
600.000 €
Eigenkapital:
600.000 €
Monatliche Rate
0 €
Effektiver Jahreszins
0 %
Sollzinsbindung
10 Jahre
Bausubstanz & Energieausweis
| Baujahr | 1800 |
|---|---|
| Letzte Sanierung | 2025 |
| Bauphase | Haus fertig gestellt |
| Objektzustand | Erstbezug nach Sanierung |
| Qualität der Austattung | Normal |
| Heizungsart | Gas-Heizung |
| Wesentliche Energieträger | Gas |
| Energieausweis | liegt vor |
| Energieausweistyp | Bedarfsausweis |
| Energieverbrauchskennwert | 183,1 kWh/(m²*a) |
| Energieeffizienzklasse | F |
183,1
kWh/(m²*a)
Energieeffizienzklasse F
- A+
- A
- B
- C
- D
- E
- F
- G
- H
- 0
- 25
- 50
- 75
- 100
- 125
- 150
- 175
- 200
- 225
- >250
Beschreibung des Objekts
Ausstattung
* Massivhaus mit Satteldach (ohne Keller)
* Neue Holzfenster mit Thermoverglasung
* Gasheizung mit Heizkörpern
* Über 150 m² Wohn- und Nutzfläche auf 4 Etagen
* Großzügige Diele im Erdgeschoss
* Badezimmer mit Badewanne (gefliest)
* Zweites separates WC im 1. Obergeschoss
* Zusätzliche Dusche im 1. Obergeschoss (gefliest)
* Küche mit Fliesenspiegel
* Wohnzimmer mit Zugang zur Terrasse
* Terrasse auf dem Anbau vorbereitet
* Ausgebautes Dachgeschoss mit ca. 37 m² offener Fläche (flexibel nutzbar)
* Moderne Infrarot-Fußbodenheizung im Dachgeschoss
* Flur im 2. Obergeschoss mit Einbauschränken und viel Stauraum
* Schlafzimmer und Kinderzimmer im 2. Obergeschoss
* Lichtdurchflutete Räume
* Laminatböden in den Wohnräumen
* Direkt ans Haus angebundene Garage (vom Haus aus zugänglich)
* Garage aktuell als Werkstatt/Lager genutzt, wird nach Verkauf freigeräumt
* Zusätzlicher Stellplatz vor der Garage
* Renovierung bereits erfolgt – Haus nahezu einzugsfertig
* Innengestaltung in Teilen noch nach Ihren Wünschen möglich
Lage
Das Haus liegt in zentraler und zugleich angenehm wohnlicher Lage von Pößneck – ideal für eine junge Familie, die kurze Wege liebt und dennoch ein ruhiges Zuhause sucht. Der Marktplatz im Stadtzentrum ist in etwa 5 bis 7 Minuten zu Fuß erreichbar – perfekt für den schnellen Einkauf, den Wochenmarkt oder ein Eis am Nachmittag. Und wenn es einmal zügig gehen soll: Die Bushaltestelle befindet sich nur rund 40 Meter entfernt. So bleibt im Familienalltag mehr Zeit für das, was wirklich zählt.
Pößneck zeigt sich als familienfreundliche Stadt mit Herz: überschaubar, sicher und mit einer Infrastruktur, die den Alltag spürbar erleichtert. Genug Spielraum für ein entspanntes Familienleben.
Als größte Stadt im Saale-Orla-Kreis vereint Pößneck vieles, was Familien schätzen: naturnahes Wohnen ein solides wirtschaftliches Umfeld und ein vielfältiges Angebot an Bildung, Betreuung und Freizeit. Kindertagesstätten und Schulen sind ebenso gut erreichbar wie Einkaufsmöglichkeiten des täglichen Bedarfs – von Supermärkten bis hin zu Baumärkten und Tankstellen. Kurze Wege bedeuten: weniger Organisation, mehr Familienzeit.
Auch gesundheitlich sind Sie bestens aufgehoben: Mit einem eigenen Krankenhaus sowie zahlreichen Arztpraxen und physiotherapeutischen Einrichtungen ist eine verlässliche Versorgung direkt vor Ort gegeben – ein beruhigender Pluspunkt, gerade mit Kind.
Für kleine Wasserratten, Sportbegeisterte und alle, die gern aktiv sind, bietet Pößneck hervorragende Möglichkeiten: eine große, moderne Schwimmhalle, ein weitläufiges Freibad, das 2023 komplett saniert wurde, sowie viele weitere Sport- und Freizeitangebote – unter anderem der beliebte „Sportpark an der Warte“. Hier wird aus einem freien Nachmittag schnell ein kleines Familienabenteuer.
Die Anbindung ist ebenfalls überzeugend: Durch das regionale und überregionale Schienennetz erreichen Sie Städte wie Jena und Leipzig sowie Neustadt, Saalfeld und Rudolstadt bequem auch mit dem ÖPNV – ideal für Pendler oder spontane Ausflüge. Mit dem Auto profitieren Sie zudem vom gut ausgebauten Straßennetz; die BAB 9 ist in etwa 15 Minuten erreichbar und öffnet Ihnen den Weg zu weiter entfernten Zielen.
Unterm Strich: Eine Lage, die Familienfreundlichkeit, Alltagstauglichkeit und Lebensqualität verbindet – mit kurzen Wegen, viel Infrastruktur, starken Freizeitmöglichkeiten und einem Umfeld, in dem Kinder unbeschwert aufwachsen können.
Sonstige Angaben
Die Angaben zur Immobilie basieren teilweise auf Informationen des Eigentümers. Für deren Richtigkeit und Vollständigkeit übernehmen wir keine Gewähr. Dies gilt insbesondere für Baujahr, Maße und Flächenangaben.
Die in diesem Exposé enthaltenen Fotos und Videos sind teilweise unter Einsatz digitaler Bildbearbeitung und künstlicher Intelligenz erstellt oder optimiert worden. Sie dienen ausschließlich der Veranschaulichung. Verbindlich sind nur die tatsächlichen Gegebenheiten bei einer Besichtigung vor Ort! Eine persönliche Besichtigung vermittelt Ihnen den besten Eindruck.
Bitte geben Sie bei Ihrer Anfrage stets Ihre vollständige Adresse und Telefonnummer an!
Wenn Sie Interesse an dieser oder einer anderen Immobilie aus unserem Portfolio haben, nähere Informationen wünschen oder Fragen zur Finanzierung bestehen, unterstützen wir Sie gern umfassend.
FALC Immobilien – Ihr innovativer Immobilienmakler.
Wir sind auf allen relevanten Portalen präsent – gemäß unserem Motto: Einfach mehr!
Ihr Ansprechpartner:
Thomas Braun
FALC Immobilien Weimar · Über der Nonnenweise 1 · 99428 Weimar
Büro: +49 3643 498 87 12 · Mobil: +49 177 573 26 36
FALC Zentrale (Mo–So 6:00–22:00 Uhr): 0800 / 646 0 646 (kostenfrei)
E-Mail: thomas.braun@falcimmo.de
weitere Immobilienangebote finden Sie hier: https://www.falcimmo.de/immobilienangebote.html
Weitere Dokumente
360° Rundgang starten.pdfFinanzierungsvorschlag-FALC-TB
Grundriss
Erdgeschoss
>
>
Dachgeschoss
>
>
1. Obergeschoss
>
>
2. Obergeschoss
>
>
Adresse
07381 Pößneck
Interessante Orte
Preis- und Lageinformationen
Preistrend für Bestandsimmobilien in Pößneck