Zum Verkauf steht ein charmantes Einfamilienhaus, das mit einer Wohnfläche von ca. 99 m² und einer Grundstücksfläche von etwa 186 m² eine ideale Grundlage für handwerklich begabte Käufer bietet. Dieses Haus, ursprünglich im Jahr 1952 erbaut, wurde 1970 aufgestockt und grundlegend umgebaut. Trotz seines sanierungsbedürftigen Zustands birgt es großes Potenzial für eine liebevolle Renovierung. Der Kaufpreis beträgt attraktive 86.000 Euro, was Ihnen ausreichend Spielraum lässt, um Ihre eigenen Vorstellungen vom modernen Wohnen zu verwirklichen.
Die Immobilie benötigt eine umfassende Renovierung: frische Bodenbeläge, neue Türen mit Zargen, Fenster und eine modernisierte Elektrik stehen auf der To-do-Liste. Auch das Badezimmer bedarf einer vollständigen Sanierung. Für eine effiziente Energieversorgung empfiehlt es sich, die Fassade und die oberste Geschossdecke zu dämmen. Aus dem vorhandenen Wintergarten und der Dachterrasse lässt sich auch wieder ein schöner Platz zum verweilen erstellen.
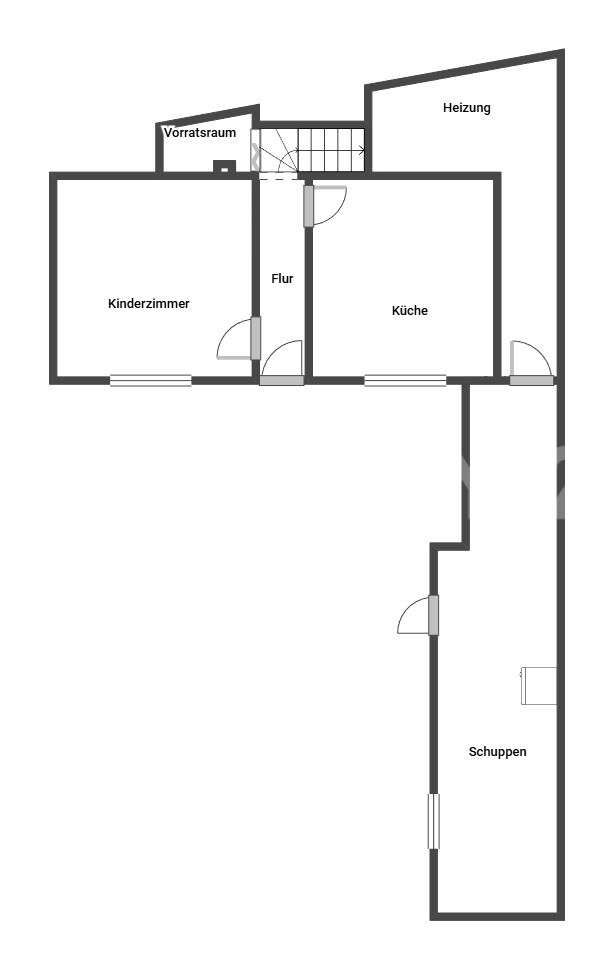
Die Öl-Zentralheizung aus dem Jahr 1997 befindet sich in einem separaten Schuppen, der auch ausreichend Platz für eine kleine Werkstatt bietet. Nutzen Sie diese Gelegenheit, um das Haus nach Ihren Wünschen zu gestalten und in einen modernen Lebensraum zu verwandeln. Die Immobilie bietet Ihnen die Möglichkeit, durch viel Eigenleistung einen persönlichen Wohntraum zu realisieren. Ergreifen Sie diese Chance und lassen Sie Ihre kreativen Ideen in dieses Haus einfließen. Eine Besichtigung lohnt sich, um das volle Potenzial dieser Immobilie zu entdecken.
Handwerker aufgepasst! Sanierungsbedürftiges Einfamilienhaus
53506 Kesseling
Die vollständige Adresse der Immobilie erhalten Sie vom Anbieter.
Auf Karte anzeigen
Die vollständige Adresse der Immobilie erhalten Sie vom Anbieter.
Finanzierungszertifikat
In nur zwei Minuten zu Ihrem persönlichen Finanzierungszertifkat.
Infos
| Haustyp | Einfamilienhaus |
|---|---|
| Etagenzahl | 2 |
| Wohnfläche ca. | 99 m2 |
| Grundstücksfläche | 186 m2 |
| Zimmer | 3 |
| Badezimmer | 1 |
Kosten
| Kaufpreis |
86.000 € |
|---|---|
| Provision |
Die Käuferprovision beträgt 3,57 % des Kaufpreises inkl. 19% MwSt. |
Finanzierungsrechner:
Kaufpreis:
600.000 €
Eigenkapital:
600.000 €
Monatliche Rate
0 €
Effektiver Jahreszins
0 %
Sollzinsbindung
10 Jahre
Bausubstanz & Energieausweis
| Baujahr | 1952 |
|---|---|
| Bauphase | Haus fertig gestellt |
| Objektzustand | Renovierungsbedürftig |
| Heizungsart | Zentralheizung |
| Wesentliche Energieträger | Öl |
| Energieausweis | liegt vor |
| Energieausweistyp | Bedarfsausweis |
| Energieverbrauchskennwert | 361,4 kWh/(m²*a) |
| Energieeffizienzklasse | H |
361,4
kWh/(m²*a)
Energieeffizienzklasse H
- A+
- A
- B
- C
- D
- E
- F
- G
- H
- 0
- 25
- 50
- 75
- 100
- 125
- 150
- 175
- 200
- 225
- >250
Beschreibung des Objekts
Lage
Die Immobilie befindet sich im malerischen Ort Kesseling, in der schönen Verbandsgemeinde Altenahr im Kreis Ahrweiler. Auf einer Höhe von 228 m gelegen, bietet Kesseling mit seinen 587 Einwohnern ein ruhiges und naturnahes Lebensumfeld. Dank der Lage im Schnittpunkt zweier Täler, die unterhalb des Steinerberges verlaufen, ist die Umgebung von atemberaubender Landschaft geprägt, die ideale Voraussetzungen für Outdoor-Aktivitäten bietet. Zahlreiche Höhen- und Wanderwege ziehen das ganze Jahr über Besucher an, die die Ruhe und Schönheit der Natur schätzen. Vor Ort finden Sie ein gemütliches Café und eine Autowerkstatt.
In nur 3 km Entfernung liegt der Ort Ahrbrück, der zusätzliche Annehmlichkeiten bietet, darunter eine Bank, einen Kindergarten sowie diverse Einkaufsmöglichkeiten wie eine Metzgerei, einen Penny-Markt, eine Bäckerei und einen Textil-Discounter. Für die Bildung ist ebenfalls gesorgt: Die Grundschule besuchen die Kinder in Ahrbrück, während die Realschule plus in Altenburg gelegen ist.
Die nächstgelegene Stadt Adenau, etwa 18 km entfernt, bietet eine hervorragende Infrastruktur mit Supermärkten, Restaurants, Cafés, Hotels, Apotheken und medizinischer Versorgung durch Fachärzte. Weiterführende Schulen wie das Gymnasium und Freizeiteinrichtungen runden das Angebot ab. Für Pendler und Reisende ist die Verkehrsanbindung optimal: Mit dem Pkw erreichen Sie die Autobahn A 61 am Meckenheimer Kreuz in etwa 18 km und die Ausfahrt Wehr in 24 km.
Sonstige Angaben
Gerne weisen wir darauf hin, dass wir im Sinne von §656c BGB sowohl für den aktuellen Eigentümer wie auch für Sie als Interessenten mit selber Provision tätig sind.
Kontaktlos Besichtigung dank 360 Grad Rundgang!
Um vorab einen Eindruck der Immobilie zu erhalten, bieten wir Ihnen eine virtuelle Besichtigung an. Wir führen Sie online durch das Haus und beantworten dabei alle anfallenden Fragen.
Grundriss
Grundriss 3D EG
>
>
Grundriss 3D OG
>
>
Grundriss EG
>
>
Grundriss OG
>
>
Adresse
53506 Kesseling
Interessante Orte
Preis- und Lageinformationen
Preistrend für Bestandsimmobilien in Kesseling