Dieses exklusive Einfamilienhaus befindet sich auf einem ca. 1.600,00 m² großen Grundstück in toller Lage von Moisburg. Das Haus wurde 1999 in Massivbauweise errichtet und 2014 mit hochwertigen Materialien saniert. Mit insgesamt 6 Wohn- und Schlafzimmern, zwei Bädern und einer offenen Küche erstreckt sich das Haus auf eine Wohnfläche von ca. 293,90 m².
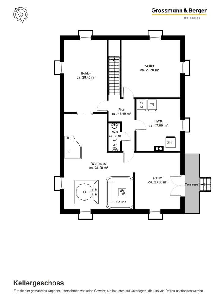
Der Wohnkeller befindet sich der Wellness- und Hobbybereich des Hauses.
Abgerundet wird das Platzangebot durch die geräumige Doppelgarage nebst Abstellraum.
Das Grundstück befindet sich in erhöhter und sonniger Lage. In Kombination mit den Balkonen bietet der Außenbereich verschiedene Rückzugsorte für die ganze Familie.
Exklusiver Wohntraum in grüner Lage
21647 Moisburg
Die vollständige Adresse der Immobilie erhalten Sie vom Anbieter.
Auf Karte anzeigen
Die vollständige Adresse der Immobilie erhalten Sie vom Anbieter.
Finanzierungszertifikat
In nur zwei Minuten zu Ihrem persönlichen Finanzierungszertifkat.
Infos
| Haustyp | Villa |
|---|---|
| Wohnfläche ca. | 293 m2 |
| Nutzfläche | 190,8 m2 |
| Grundstücksfläche | 1.600 m2 |
| Bezugsfrei ab | nach Vereinbarung |
| Zimmer | 6 |
| Badezimmer | 2 |
| Garage/Stellplatz | Außenstellplatz |
| Anzahl Garage/Stellplatz | 1 |
Kosten
| Kaufpreis |
1.790.000 € |
|---|---|
| Provision |
3,57 % inkl. MwSt. |
Finanzierungsrechner:
Kaufpreis:
600.000 €
Eigenkapital:
600.000 €
Monatliche Rate
0 €
Effektiver Jahreszins
0 %
Sollzinsbindung
10 Jahre
Bausubstanz & Energieausweis
| Baujahr | 1999 |
|---|---|
| Heizungsart | Fußbodenheizung |
| Wesentliche Energieträger | Gas |
| Energieausweis | liegt vor |
| Energieausweistyp | Bedarfsausweis |
| Energieverbrauchskennwert | 94,6 kWh/(m²*a) |
| Energieeffizienzklasse | C |
94,6
kWh/(m²*a)
Energieeffizienzklasse C
- A+
- A
- B
- C
- D
- E
- F
- G
- H
- 0
- 25
- 50
- 75
- 100
- 125
- 150
- 175
- 200
- 225
- >250
Beschreibung des Objekts
Ausstattung
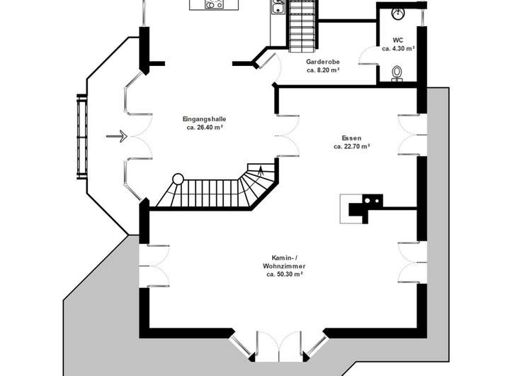
Betreten Sie das Haus durch die eindrucksvolle Haustür mit Säulen, befinden Sie sich in der Eingangshalle mit Blick auf die Galerie. Ihre Garderobe sowie ein Gäste-WC befinden sich in einem separaten Flur. Geradezu befindet sich der geräumige Wohn- und Essbereich mit Kamin und Zugang zu Ihrer Terrasse. Zu Ihrer linken befindet sich die offene und moderne Küche mit hochwertigen Einbaugeräten. Von hier erreichen Sie außerdem ein erstes Zimmer, welches sich ideal als Büro eignet.
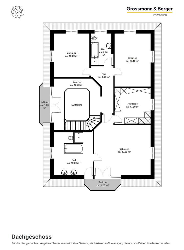
Über die helle Holztreppe betreten Sie die Galerie des Hauses. Hier befindet sich der erste Balkon mit Blick in das Estetal. Der Schlafbereich überzeugt mit einer geräumigen Ankleide, einem Bad en Suite und einem weiteren Balkon mit Blick über die Wiesen des Estetals. Auf dieser Etage befinden sich zudem zwei großzügige Zimmer und ein Vollbad. Der größtenteils wohnlich ausgebaute Keller verfügt über einen Hobby- und Fitnessbereich sowie einen Wellnessbereich mit Sauna und Jacuzzi. Ein Raum verfügt über eine Souterrain-Terrasse mit Zugang in den Garten. Abgerundet wird diese Ebene durch ein weiteres WC, einen praktischen Hauswirtschaftsraum sowie einen Abstellraum.
Lage
Diese luxuriöse Immobilie ist in der Gemeinde Moisburg im Landkreis Harburg gelegen und bietet idyllisches Wohnen im Grünen.
Moisburg, mit ca. 1.800 Einwohnern, bietet ein ideales Umfeld für Familien und erfreut sich ständig wachsender Beliebtheit. Der nahegelegene Wald und das Estetal laden zu ausgedehnten Spaziergängen ein. Die Grundschule und der Kindergarten sind vor Ort. Weiterführende Schulen werden mit dem Schulbus angesteuert.
Eine Anbindung an die Autobahn A1 zwischen Bremen und Hamburg befindet sich in ca. 5 km Entfernung, ideal für Pendler. Hollenstedt und Buxtehude, mit ausgeprägter Infrastruktur, sind in wenigen Autominuten erreichbar. Hier finden Sie alle Einkaufsmöglichkeiten des täglichen Bedarfs. Der nächste S-Bahnhof ist in Buxtehude, dort haben Sie Anschluss nach Stade und Hamburg.
Grundriss
Kellergeschoss
>
>
Erdgeschoss
>
>
Dachgeschoss
>
>
Adresse
21647 Moisburg
Interessante Orte
Preis- und Lageinformationen
Preistrend für Bestandsimmobilien in Moisburg