Diese wundervolle Immobilie wurde im Jahr 1970 massiv auf einem ca. 800m² großen Grundstück fertig gestellt. Das Haus liegt in herrlicher Randlage eines begehrten Wohngebiets.
Die Wohnfläche mit ca. 288m² verteilt sich auf drei Etagen und bietet Ihnen Platz für die ganze Familie.
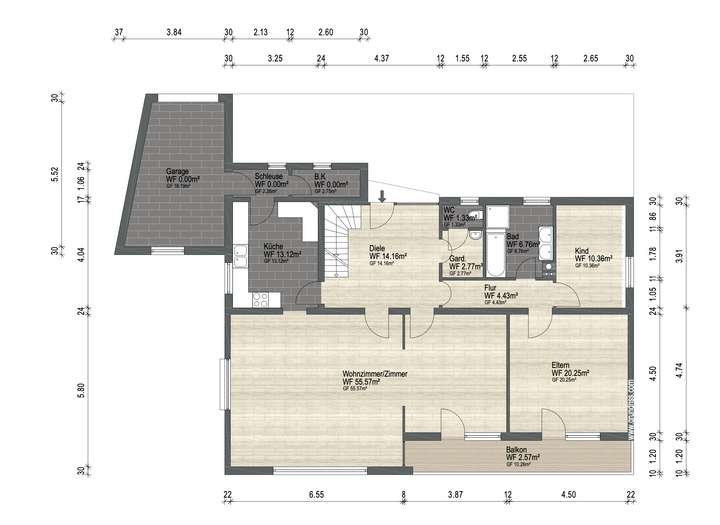
Erdgeschoss ca. 131 m² Wfl.: Diese Etage verfügt über 3,5 Zimmer, diese bestehen aus einem hellen und großzügigen Wohn-Esszimmer mit Zugang zum Südbalkon, einem Eltern- und einem Kinderschlafzimmer. Desweiteren gibt es auf diesem Stockwerk eine Küche mit Speisekammer, ein Badezimmer welches mit Badewanne und einer Dusche ausgestattet ist und ein separates WC. Die Eingangstüre wurde im Jahr 2020 erneuert. Komfortables Wohnen auf einer Ebene ist hier problemlos möglich.
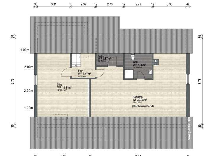
Dachgeschoss ca. 59m²: Hier finden Sie Schlafzimmer und ein weiteres Zimmer mit Ausbaupotential (dieses Zimmer mit ca. 31 m² ist in der Wfl.-Berechnung bereits enthalten). Ein fertiges Badezimmer mit Dusche und ein WC ist ebenfalls auf dieser Etage zu finden.
Im Untergeschoss (ca. 97 m² Wfl.) der Immobilie verteilt sich die Wohnfläche auf zwei große und helle Zimmer mit Zugang zur Terrasse. Außerdem gibt es einen Waschraum, die im Jahr 2022 erneuerte Pellets-Heizung und einen Lager- bzw. Vorratsraum.
Besonders charmant ist eine kleine separate Einheit (1-Zimmer), welche eine eigene Küchenzeile, ein Badezimmer und eine Terrasse beinhaltet.
Der schön bepflanzte Garten mit großer Terrasse bietet Ihnen viele verschiedene Sitzmöglichkeiten um die Sonne und die Aussicht zu genießen. Freunde und Familie haben auch bei Grillpartys genügen Platz, Ihre Kinder finden im Garten genügend Platz zum Spielen und Toben.
Die Immobilie verfügt über eine Garage (Sektionaltor aus 2020) mit direktem Zugang ins Haus. Die Fenster wurden 2016 erneuert.
Die Immobilie überzeugt durch die solide Bausubstanz und die regelmäßigen Modernisierungen.
Lassen Sie sich diese herrliche Immobilie nicht entgehen und vereinbaren Sie gleich einen Besichtigungstermin mit uns.
Sonniges und gepflegtes Wohnhaus in begehrter Randlage mit separater Wohneinheit.
72458 Albstadt
Die vollständige Adresse der Immobilie erhalten Sie vom Anbieter.
Auf Karte anzeigen
Die vollständige Adresse der Immobilie erhalten Sie vom Anbieter.
Finanzierungszertifikat
In nur zwei Minuten zu Ihrem persönlichen Finanzierungszertifkat.
Infos
| Haustyp | Einfamilienhaus |
|---|---|
| Wohnfläche ca. | 288 m2 |
| Grundstücksfläche | 820 m2 |
| Bezugsfrei ab | nach Absprache |
| Zimmer | 8,5 |
| Badezimmer | 3 |
| Garage/Stellplatz | Garage |
| Anzahl Garage/Stellplatz | 1 |
Kosten
| Kaufpreis |
495.000 € |
|---|---|
| Provision |
3.57 % inkl. gesetzl. MwSt. |
Finanzierungsrechner:
Kaufpreis:
600.000 €
Eigenkapital:
600.000 €
Monatliche Rate
0 €
Effektiver Jahreszins
0 %
Sollzinsbindung
10 Jahre
Bausubstanz & Energieausweis
| Baujahr | 1969 |
|---|---|
| Objektzustand | Gepflegt |
| Heizungsart | Zentralheizung |
| Wesentliche Energieträger | Pelletheizung |
| Energieausweis | liegt vor |
| Energieausweistyp | Bedarfsausweis |
| Energieverbrauchskennwert | 197,0 kWh/(m²*a) |
| Energieeffizienzklasse | F |
197,0
kWh/(m²*a)
Energieeffizienzklasse F
- A+
- A
- B
- C
- D
- E
- F
- G
- H
- 0
- 25
- 50
- 75
- 100
- 125
- 150
- 175
- 200
- 225
- >250
Beschreibung des Objekts
Ausstattung
Einbauküche
Blick ins Grüne
Fliesen
Parkett
Vollunterkellert
Lage
Die Stadt Albstadt-Ebingen befindet sich auf der schönen und sehr abwechslungsreichen Schwäbischen Alb.
Die Innenstadt von Ebingen ist in kurzen Wegen erreichbar. Ebenfalls die Schulen, Kindergärten sowie die Stadtmitte mit Banken, Ärzten und Apotheken. Ebingen verfügt nicht nur über unterschiedliche Kindergärten und Schulen, sondern auch über die Hochschule Albstadt-Sigmaringen. Nach Balingen fahren Sie rund 16 km. Den wunderschönen Bodensee erreichen Sie in 45 Autominuten.
Die sehr gute Infrastruktur, bestehend aus vielseitigem Gewerbe, u. a. geprägt von vielen mittelständischen und weltweitführenden Unternehmen, diese bieten Abwechslung und sichere Arbeitsplätze. Einkaufsmöglichkeiten sind in unmittelbarer Umgebung erreichbar.
Für Freizeitaktivitäten bietet die Umgebung zahlreiche Möglichkeiten: Von Wanderungen in den malerischen Hügeln der Schwäbischen Alb bis hin zu kulturellen Veranstaltungen im nahegelegenen Stadttheater. Golfliebhaber finden im Golfclub Hechingen-Hohenzollern, nur 20 Autominuten entfernt, eine erstklassige Anlage.
Ein besonderes Highlight der Region ist die Burg Hohenzollern, ein majestätisches Wahrzeichen, das die Geschichte und Kultur der Region widerspiegelt und in etwa 30 Minuten mit dem Auto erreichbar ist. Diese Immobilie verkörpert das Beste aus beiden Welten: die Ruhe und Schönheit der Natur kombiniert mit den Annehmlichkeiten eines urbanen Lebensstils. Ein perfekter Rückzugsort für diejenigen, die das Außergewöhnliche suchen.
Sonstige Angaben
Der Makler-Vertrag mit uns und/oder unserem Beauftragten kommt durch die Beauftragung der Maklertätigkeit in Textform (z.B. E-Mail mit Bestätigung der gewollten Inanspruchnahme) zustande. Die Höhe der Courtage richtet sich nach den ab dem 23.12.2020 in Kraft getretenen gesetzlichen Regelungen zur Teilung der Maklercourtage. Hiernach wird die Courtage regelmäßig für beide Parteien (Eigentümer und Käufer) jeweils in Höhe von 3 % zuzüglich Umsatzsteuer in jeweils geltender Höhe, derzeit also insgesamt 3,57 % des Kaufpreises einschließlich Umsatzsteuer bei notariellem Vertragsabschluss verdient und fällig. Die Höhe der Bruttocourtage unterliegt einer Anpassung bei Steuersatzänderung. Grunderwerbssteuer, Notar- und Gerichtskosten trägt der Käufer.
Grundriss
Erdgeschoss
>
>
Dachgeschoss
>
>
Untergeschoss
>
>
Adresse
72458 Albstadt
Interessante Orte
Preis- und Lageinformationen
Preistrend für Bestandsimmobilien in Albstadt