Außergewöhnliches Grundstück mit Einfamilienhaus in Gröbenzell.
In einer der begehrtesten und ruhigsten Lagen von Gröbenzell, umgeben von weitläufigen Feldern und direkt am idyllischen Gröbenbach, liegt dieses außergewöhnliche Villenanwesen auf einem traumhaften Grundstück von rund 10.000 m². Das parkähnliche Areal mit zwei privaten Weihern bietet absolute Ruhe, Privatsphäre und ein unvergleichliches Naturerlebnis.
Auf dem Grundstück befindet sich ein großzügiges Einfamilienhaus, das sich über drei Etagen erstreckt und viel Raum für individuelle Wohnideen bietet. Das Haus ist renovierungsbedürftig und eignet sich ideal für Käufer, die ihren persönlichen Wohntraum realisieren möchten. Durch eine umfassende Sanierung oder einen Neubau lässt sich hier ein einzigartiges Anwesen schaffen, das modernes Wohnen mit naturnaher Idylle vereint.
Das Haus verfügt über eine sonnige Südterrasse und einen Balkon mit herrlichem Blick ins Grüne. Über der Doppelgarage befindet sich ein vollständig ausgebauter Bereich mit eigenem Badezimmer – ideal als Einliegerwohnung, Gästebereich oder Homeoffice. Der Zugang erfolgt derzeit über das Obergeschoss des Haupthauses.
Zum Verkauf stehen ca. 2.000 m² Grundstücksfläche inklusive des bestehenden Hauses. Die verbleibenden rund 8.000 m² mit den beiden Weihern können optional mitgenutzt, gepachtet oder zusätzlich erworben werden. Diese flexible Gestaltung ermöglicht vielfältige Nutzungskonzepte.
Dieses Grundstück ist eine echte Rarität in Gröbenzell – ein Ort, an dem Natur, Wasser und Weitblick harmonisch miteinander verschmelzen. Trotz der idyllischen Lage sind sämtliche Einkaufsmöglichkeiten, Schulen, Freizeiteinrichtungen und die Anbindung an München in kurzer Zeit erreichbar.
Ein Anwesen mit außergewöhnlichem Potenzial und einzigartigem Charme.
Einmaliges Anwesen in Gröbenzell auf traumhaftem Naturgrundstück!
82194 Gröbenzell
Die vollständige Adresse der Immobilie erhalten Sie vom Anbieter.
Auf Karte anzeigen
Die vollständige Adresse der Immobilie erhalten Sie vom Anbieter.
Finanzierungszertifikat
In nur zwei Minuten zu Ihrem persönlichen Finanzierungszertifkat.
Infos
| Haustyp | Einfamilienhaus |
|---|---|
| Etagenzahl | 3 |
| Wohnfläche ca. | 280 m2 |
| Grundstücksfläche | 1.980 m2 |
| Zimmer | 8 |
| Badezimmer | 4 |
Kosten
| Kaufpreis |
1.890.000 € |
|---|---|
| Provision |
3,57 % inkl. MwSt. (3,00 % netto) |
Finanzierungsrechner:
Kaufpreis:
600.000 €
Eigenkapital:
600.000 €
Monatliche Rate
0 €
Effektiver Jahreszins
0 %
Sollzinsbindung
10 Jahre
Bausubstanz & Energieausweis
| Baujahr | 1983 |
|---|---|
| Objektzustand | Renovierungsbedürftig |
| Wesentliche Energieträger | Öl |
| Energieausweis | liegt vor |
| Energieausweistyp | Bedarfsausweis |
| Energieverbrauchskennwert | 141,2 kWh/(m²*a) |
| Energieeffizienzklasse | E |
141,2
kWh/(m²*a)
Energieeffizienzklasse E
- A+
- A
- B
- C
- D
- E
- F
- G
- H
- 0
- 25
- 50
- 75
- 100
- 125
- 150
- 175
- 200
- 225
- >250
Beschreibung des Objekts
Ausstattung
- Großzügiges Einfamilienhaus auf ca. 2.000 m² Teilgrundstück
- Restgrundstück von ca. 8.000 m² mit Weiher – optional zur Mitnutzung, Pacht oder zum zusätzlichen Erwerb
- Traumhafte Lage direkt am Gröbenbach
- Perfekt für Naturliebhaber
- Zwei private Weiher (als Fischweiher oder Schwimmteich nutzbar)
- Unverbaubarer Blick ins Grüne und umliegende Felder
- Drei Etagen mit großzügiger Raumaufteilung
- Renovierungsbedürftig
- Großzügige Südterrasse mit Gartenblick
- Balkon mit Südausrichtung
- Doppelgarage mit ausgebautem Obergeschoss und unterkellert
u.v.m.
Lage
Gröbenzell zählt zu den begehrtesten Wohnorten im Münchner Westen. Die Gemeinde verbindet eine hervorragende Infrastruktur, ausgezeichnete Verkehrsanbindung und idyllische, grüne Umgebung zu einer idealen Mischung aus Stadtnähe und Lebensqualität.
Dank der direkten Anbindung an die Metropolregion München bietet Gröbenzell die perfekte Balance zwischen urbanem Komfort und ländlicher Ruhe.
Mehrere Kindertagesstätten, Grundschulen, eine Waldorfschule sowie ein Gymnasium befinden sich direkt im Ort – ideal für Familien. Sämtliche Einrichtungen des täglichen Bedarfs wie Supermärkte, Apotheken, Ärzte, Cafés und Restaurants sind fußläufig erreichbar.
Der S-Bahnhof Gröbenzell (S3) liegt nur etwa 10 Gehminuten entfernt. Von dort aus erreichen Sie die Münchner Innenstadt in ca. 24 Minuten. Auch die Autobahnen A8 und A99 sind in rund 5 Fahrminuten erreichbar. Zum Flughafen München gelangen Sie bequem in etwa 30 Minuten mit dem Auto.
Der Freizeitwert in Gröbenzell ist außergewöhnlich hoch. In unmittelbarer Nähe laden der Olchinger See, das Fünfseenland, die Aubinger Lohe und zahlreiche Rad- und Spazierwege zu Erholung und Naturgenuss ein. Ob ein Ausflug zum Schloss Blutenburg, gemütliche Fahrradtouren oder Spaziergänge entlang des Gröbenbachs – hier finden Sie alles, was das Herz begehrt.
Gröbenzell bietet damit eine einzigartige Kombination aus ruhigem, naturnahem Wohnen und schneller Erreichbarkeit der Münchner Innenstadt – ein idealer Standort für Familien, Berufspendler und Naturliebhaber gleichermaßen.
Sonstige Angaben
Alle in diesem Exposé verwendeten Angaben beruhen auf Informationen von Dritten (z.B. Eigentümer, Hausverwaltung, etc.) und daher freibleibend und ohne jegliche Gewähr. Zahlenangaben sind immer als ca-Angaben zu verstehen. Irrtum, Änderungen, Zwischenverkauf oder Zwischenvermietung bleiben vorbehalten. Die Bekanntgabe der Objektadresse und von Objektdaten geschieht unter ausdrücklichem Hinweis auf unsere Provisionsforderung im Fall des Ankaufs. Die Höhe der Käuferprovision entnehmen Sie den Eckdaten dieses Exposés. Mit Übersendung des Exposés und Bekanntgabe der Objektadresse kommt ein Maklervertrag zustande. Sie wurden hierbei auf das Recht hingewiesen, binnen vierzehn Tagen ohne Angabe von Gründen diesen Vertrag zu widerrufen. Um ein bestehendes Widerrufsrecht auszuüben, genügt eine schriftliche Erklärung an EDE-Invest GmbH & Co. KG, Bavariaring 18, 80336 München. Möglicherweise haben Sie bei Erhalt des Exposees wirksam auf das Widerrufsrecht verzichtet. Haben Sie hingegen verlangt, dass unsere Dienstleistungen während der Widerrufsfrist beginnen sollen, ohne vorher auf das Widerrufsrecht zu verzichten, so haben Sie uns im Fall des Widerrufs einen angemessenen Betrag zu zahlen, der dem Anteil der bis zu dem Zeitpunkt, zu dem Sie uns den Widerruf erklären, bereits erbrachten Dienstleistungen im Vergleich zum Gesamtumfang der im Vertrag vorgesehenen Dienstleistungen entspricht. Ihr Widerrufsrecht erlischt vorzeitig, wenn wir auf Ihren ausdrücklichen Wunsch hin tätig geworden sind und der Vertrag vollständig erfüllt ist, bevor Sie Ihr Widerrufsrecht ausgeübt haben. Verpflichtungen zur Erstattung von Zahlungen müssen innerhalb von 30 Tagen erfüllt werden. Die Frist beginnt für Sie mit der Absendung Ihrer Widerrufserklärung, für uns mit deren Empfang.
Gewerbeerlaubnis gemäß § 34c GewO erteilt durch Aufsichtsbehörde gemäß § 34c GewO: Kreisverwaltungsreferat München, Ruppertstr. 19, 80466 München
Online-Streitbeilegung: http://ec.europa.eu/consumers/odr/
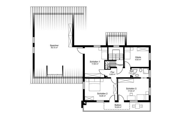
Grundriss
Erdgeschoss
>
>
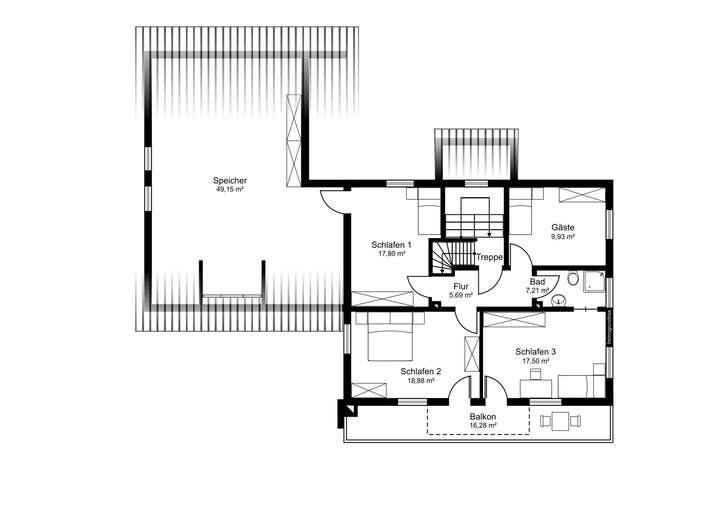
Obergeschoss
>
>
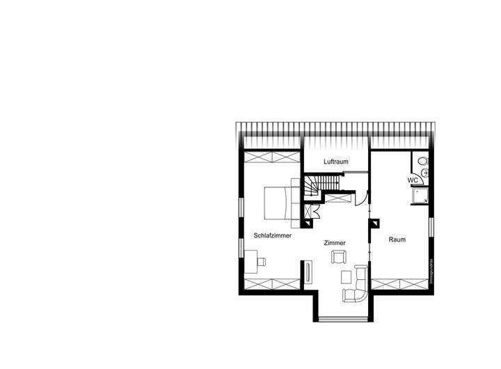
Dachgeschoss
>
>
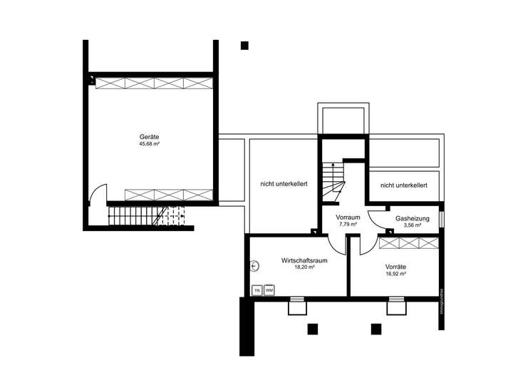
Untergeschoss
>
>
Adresse
82194 Gröbenzell
Interessante Orte
Preis- und Lageinformationen
Preistrend für Bestandsimmobilien in Gröbenzell