Wer das Besondere sucht, wird hier fündig: Dieses außergewöhnliche und gepflegte Landhaus vereint ländliche Idylle, höchsten Wohnkomfort und nahezu grenzenlose Nutzungsmöglichkeiten – ideal für Familien, Selbstständige oder Visionäre mit Platzbedarf. Sofort bezugsfertig, bietet es ein liebevoll angelegtes Grundstück, ein stilvolles Haupthaus mit Wintergarten, Sauna und Pool sowie drei eindrucksvolle Nebengebäude. Die ruhige, aber zentrale Lage mit exzellenter Infrastruktur macht dieses Anwesen zu einem einzigartigen Rückzugsort mit perfekter Anbindung.
Das Hauptgebäude erstreckt sich über drei Etagen plus Keller mit insgesamt 266,16m² Wohnfläche. Das 1680m² große Grundstück liegt idyllisch am Waldrand und beherbergt neben einer großzügig gepflasterten Hofeinfahrt eine gepflegte Rasenfläche mit Springbrunnen, dessen Wasser aus einer nahegelegenen Quelle stammt. Ein Pool mit Gegenstromanlage, Flächenkollektoren für Warmwasser und eine Außendusche runden das Außenambiente ab. Zwei Scheunen mit 167m² und 94m² Grundfläche – eine davon mit 3 Etagen, Bühne und Bar ausgestattet – sowie ein weiteres Nebenhaus mit 47m² Grundfläche und 2 Etagen eröffnen vielseitige Nutzungsmöglichkeiten. Zwei Felsenkeller, eine beheizte Großgarage mit Grube, Starkstrom und Druckluftanschluss, eine Doppelgarage mit elektrischen Sektionaltoren und zwei Carports bieten ideale Voraussetzungen für Hobby, Gewerbe oder Sammler.
Die massive Bauweise des Haupthauses mit Sandsteinmauerwerk sorgt für ein angenehmes Raumklima. Die Fenster sind doppelt verglaste Kunststofffenster in sehr gutem Zustand, das Dach wurde 2001 neu eingedeckt und mit einer Zwischensparrendämmung versehen. Beheizt wird die Immobilie über eine zentrale Scheitholzheizung aus 2010 sowie eine Ölheizung aus 1993. Die Elektrik, Wasser- und Abwasserleitungen befinden sich in gutem Zustand. Der Internetanschluss mit 250MBit/s bietet eine leistungsfähige Netzwerkanbindung. Zahlreiche Modernisierungen wie neue Bäder, Fenster, Heizsysteme und der Wintergarten wurde in den vergangenen Jahren kontinuierlich umgesetzt – zuletzt bis 2022 mit kleineren, sorgfältig durchgeführten Verbesserungen.
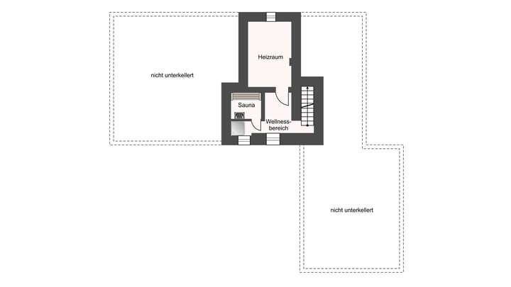
Innen überzeugt das Haus mit einem offenen Wohnkonzept, das sich großzügig über 3 Etagen entfaltet. Im Erdgeschoss empfängt eine große Diele mit Gästezimmer, Wohn- und Essbereich mit Zugang zur Küche, Badezimmer sowie Hauswirtschafts- und Abstellraum mit direktem Zugang zur Werkstatt und in den Keller. Ein rustikaler Torbogen führt in das lichtdurchflutete Wohnzimmer mit dekorativem Ofen und sichtbarer Holzbalkendecke. Die hochwertige Vollholzküche mit modernen Geräten lädt zum Kochen ein. Im Obergeschoss befinden sich fünf helle Zimmer, ein weiteres Bad und der gemütliche Wintergarten mit Kamin – vorbereitet für den direkten Gartenzugang. Der ausbaubare Dachboden bietet zusätzlich 38,83m² Nutzfläche mit Außenzugang. Das Dachgeschoss beherbergt zwei weitere Zimmer mit traumhaftem Ausblick in die Natur und auf die Plassenburg, zwei Abstellräume sowie ein modernes Bad. Ein Wellnessbereich mit Sauna und Dusche im Keller rundet das Raumangebot stilvoll ab.
Dieses Objekt ist mehr als nur ein Haus – es ist ein Lebensraum mit Charakter, Geschichte und Zukunftspotenzial. Ob als großzügiges Familienanwesen, Mehrgenerationenhaus, Atelier oder Wohn- und Arbeitsort in einem: Hier finden Sie Platz für Ihre Ideen. Die hervorragende Substanz, die exzellente Ausstattung, die vielseitig nutzbaren Nebengebäude und die idyllische Lage mit absoluter Ruhe und bester Anbindung machen dieses Angebot zu einer Rarität. Überzeugen Sie sich selbst von den Möglichkeiten und vereinbaren Sie jetzt einen Besichtigungstermin.
1.680m² Grundstücksfläche! Gepflegtes Landhaus mit zahlreichen Nebengebäuden in ruhiger Lage
95326 Kulmbach
Die vollständige Adresse der Immobilie erhalten Sie vom Anbieter.
Auf Karte anzeigen
Die vollständige Adresse der Immobilie erhalten Sie vom Anbieter.
Finanzierungszertifikat
In nur zwei Minuten zu Ihrem persönlichen Finanzierungszertifkat.
Infos
| Haustyp | Einfamilienhaus |
|---|---|
| Wohnfläche ca. | 266 m2 |
| Nutzfläche | 366,75 m2 |
| Grundstücksfläche | 1.680 m2 |
| Bezugsfrei ab | sofort |
| Zimmer | 11 |
| Schlafzimmer | 6 |
| Badezimmer | 3 |
| Anzahl Garage/Stellplatz | 7 |
Kosten
| Kaufpreis |
529.000 € |
|---|---|
| Provision |
3,57% (inkl. MwSt) |
Finanzierungsrechner:
Kaufpreis:
600.000 €
Eigenkapital:
600.000 €
Monatliche Rate
0 €
Effektiver Jahreszins
0 %
Sollzinsbindung
10 Jahre
Bausubstanz & Energieausweis
| Baujahr | 1928 |
|---|---|
| Letzte Sanierung | 2022 |
| Bauphase | Haus fertig gestellt |
| Objektzustand | Modernisiert |
| Qualität der Austattung | Gehoben |
| Heizungsart | Zentralheizung |
| Wesentliche Energieträger | Öl |
| Energieausweis | liegt vor |
| Energieausweistyp | Bedarfsausweis |
| Energieverbrauchskennwert | 425,6 kWh/(m²*a) |
| Energieeffizienzklasse | H |
425,6
kWh/(m²*a)
Energieeffizienzklasse H
- A+
- A
- B
- C
- D
- E
- F
- G
- H
- 0
- 25
- 50
- 75
- 100
- 125
- 150
- 175
- 200
- 225
- >250
Beschreibung des Objekts
Ausstattung
- 266,16m² Wohnfläche auf 3 Etagen plus Keller
- 1680m² großes, idyllisches Grundstück
- Gepflegter Garten mit Waldrandlage und Brunnen
- Massives Sandsteinmauerwerk
- Sofort bezugsfertig, top gepflegter Zustand
- Wintergarten mit Kamin und Gartenzugang
- Pool mit Gegenstromanlage und Außendusche
- Großgarage mit Grube, Starkstrom und WC
- Zentralheizung mit Scheitholz- und Ölsystem
- Doppelt verglaste Kunststofffenster, top Zustand
- Ruhige Lage im Ortsteil Burghaig bei Kulmbach
- Schnelle Anbindung an B85, B289 und A70
- Freizeit, Kultur & Natur direkt vor der Tür
- Bisherige Modernisierungen:
1968: Dacheindeckung Scheune 1
1981: Kunststofffenster doppelt verglast
1990: Ausbau Dachboden
1993: Ölheizung
1998: WC Erdgeschoss + Fenster
2001: Eindeckung Dachfläche Haupthaus inkl. Dachfenster
2002: Wintergarten
2005: Badezimmer Erdgeschoss + Fenster
2010: Scheitholzheizung
2014: Gartentüre
Allgemein: bis 2022 wurden stetig kleinere Modernisierungen durchgeführt
Lage
Die Immobilie befindet sich in einer ruhigen, gewachsenen Wohnlage im beliebten Kulmbacher Ortsteil Burghaig – einem charmanten Ort mit ländlichem Flair und starker Nachbarschaftsanbindung. Die umliegende Bebauung besteht überwiegend aus gepflegten Einfamilienhäusern mit großen Gärten. Der Ort wirkt idyllisch und naturnah, ohne abgeschieden zu sein. Direkt angrenzend befinden sich Felder, Wiesen und Waldstücke, die zu Spaziergängen und Erholung einladen. Die Nachbarschaft ist geprägt von einer angenehmen Mischung aus langjährigen Bewohnern und jungen Familien – ein ideales Umfeld für alle, die Ruhe suchen, ohne auf Gemeinschaft verzichten zu wollen.
Burghaig punktet mit einer sehr guten Infrastruktur im direkten Umfeld. Einkaufsmöglichkeiten für den täglichen Bedarf sind in wenigen Minuten mit dem Auto oder Fahrrad erreichbar – unter anderem mehrere Supermärkte, Bäckereien und Metzgereien im nahegelegenen Zentrum von Kulmbach. Kindergärten, Grund- und weiterführende Schulen befinden sich im Umkreis von 2–5km. Ärzte, Apotheken und das Klinikum Kulmbach bieten eine ausgezeichnete medizinische Versorgung. Die Stadt selbst überzeugt mit vielfältigen Freizeitangeboten, darunter das beliebte Freibad sowie charmante Cafés, Restaurants und kulturelle Veranstaltungen rund um die historische Plassenburg – ein Wahrzeichen der Region. Sportvereine, Radwege, ein Kino und zahlreiche Ausflugsmöglichkeiten in die Natur machen Kulmbach zu einem attraktiven Lebensmittelpunkt.
Die Verkehrsanbindung ist hervorragend: Das Stadtzentrum von Kulmbach ist in ca. 10 Minuten erreichbar. Über die Bundesstraße B85 und B289 gelangt man schnell in die umliegenden Städte wie Bayreuth, Kronach oder Lichtenfels. Die Autobahn A70 (Schweinfurt–Bayreuth) ist in etwa 15 Minuten erreichbar und bietet eine direkte Anbindung an das überregionale Straßennetz. Der Bahnhof Kulmbach ist nur rund 4km entfernt und bietet regelmäßige Regionalverbindungen, etwa Richtung Lichtenfels und Bamberg. Zudem gibt es eine Busanbindung im Ort mit Verbindungen in die Stadt sowie ins Kulmbacher Umland. Der nächste Flughafen ist Nürnberg und in etwa 1,5 Stunden Fahrzeit erreichbar.
Dieses Anwesen kombiniert naturnahes Wohnen in ruhiger Lage mit den Vorzügen einer sehr gut entwickelten Infrastruktur. Die Nähe zur Stadt Kulmbach, die ausgezeichnete Verkehrsanbindung sowie das vielfältige Freizeit- und Kulturangebot bieten eine hohe Lebensqualität für Familien, Berufspendler und Ruhesuchende gleichermaßen. Wer ländliche Ruhe mit urbaner Nähe und besten Versorgungsmöglichkeiten sucht, trifft mit dieser Lage eine ausgezeichnete Wahl.
Sonstige Angaben
Der Käufer zahlt im Erfolgsfall an die Firma Dressel Immobilien GmbH eine Käufer- Maklerprovision in Höhe von 3,57% inkl. 19% MwSt. Die Provision errechnet sich aus dem beurkundeten Kaufpreis.
Dieses Exposé ist eine Vorabinformation, als Rechtsgrundlage gilt allein der notariell abgeschlossene Kaufvertrag.
Wir weisen auf unsere allgemeinen Geschäftsbedingungen hin.
Angaben des Eigentümers, der Eigentümerin / Auftraggebers, Auftraggeberin:
Alle Angaben beruhen auf uns vorliegenden Informationen des Auftraggebers nach bestem Wissen und Gewissen und sind freibleibend und unverbindlich.
Grundriss
Grundriss Erdgeschoss
>
>
Grundriss Obergeschoss
>
>
Grundriss Dachgeschoss
>
>
Grundriss Kellergeschoss
>
>
Adresse
95326 Kulmbach
Interessante Orte
Preis- und Lageinformationen
Preistrend für Bestandsimmobilien in Kulmbach