In ruhiger, verkehrsberuhigter Wohnlage von Radolfzell am Bodensee entsteht diese hochwertige QNG+-Line Villa 142 von Hanse Haus auf einem besonders attraktiven Grundstück. Die seltene Verbindung aus Zentrumsnähe, Seenähe und wohltuender Wohnruhe macht diesen Standort zu einem Ort zum Ankommen und Wohlfühlen.
Das moderne Einfamilienhaus mit 5 Zimmern und ca. 135 m² Wohnfläche erstreckt sich über zwei Etagen und bietet ein durchdachtes Raumkonzept für Familien oder als stilvolles Feriendomizil. Herzstück des Erdgeschosses ist der offen gestaltete Wohn- und Essbereich mit Küche. Ergänzt wird diese Ebene durch ein Gäste-Bad mit Dusche sowie ein flexibel nutzbares Gäste-, Kinderzimmer oder auch als Büro.
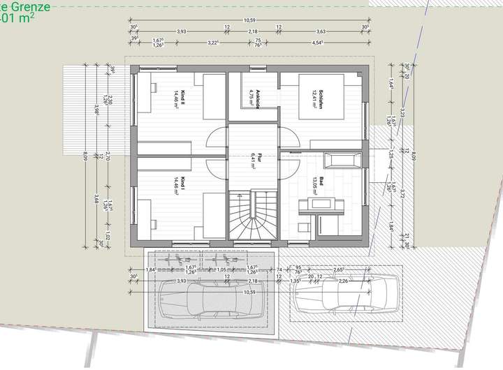
Im Obergeschoss erwarten Sie helle Kinderzimmer, ein großzügiges Elternschlafzimmer mit separater Ankleide sowie ein elegantes Badezimmer mit Dusche und Badewanne.
Als QNG+-zertifizierbares Haus ermöglicht die Villa den Zugang zur höchsten KfW-Förderstufe „Wohneigentum für Familien“. Nachhaltige Technik wie Fußbodenheizung, Luft-Wasser-Wärmepumpe und Photovoltaikanlage mit Batteriespeicher sorgt für zukunftssicheren Wohnkomfort.
Die Ausführung erfolgt schlüsselfertig.
Erfüllen Sie sich den Traum vom Eigenheim in begehrter Bodenseelage – wir beraten Sie gerne persönlich.
Wohnen, wo andere Urlaub machen! Traumvilla in bester Lage von Radolfzell
78315 Radolfzell am Bodensee
Die vollständige Adresse der Immobilie erhalten Sie vom Anbieter.
Auf Karte anzeigen
Die vollständige Adresse der Immobilie erhalten Sie vom Anbieter.
Finanzierungszertifikat
In nur zwei Minuten zu Ihrem persönlichen Finanzierungszertifkat.
Infos
| Haustyp | Sonstige |
|---|---|
| Etagenzahl | 2 |
| Wohnfläche ca. | 135 m2 |
| Grundstücksfläche | 468 m2 |
| Zimmer | 5 |
| Schlafzimmer | 4 |
| Badezimmer | 2 |
Kosten
| Kaufpreis |
795.500 € |
|---|---|
| Provision | Nein |
Finanzierungsrechner:
Kaufpreis:
600.000 €
Eigenkapital:
600.000 €
Monatliche Rate
0 €
Effektiver Jahreszins
0 %
Sollzinsbindung
10 Jahre
Bausubstanz & Energieausweis
| Bauphase | Haus in Planung (projektiert) |
|---|---|
| Heizungsart | Fußbodenheizung |
| Wesentliche Energieträger | Umweltwärme |
| Energieausweis | liegt vor |
Beschreibung des Objekts
Ausstattung
Highlights des Hauses:
- großzügiger Wohn- und Essbereich
- Gäste-WC mit Dusche und Gäste-/Arbeitszimmer im Erdgeschoss
- 3 Schlafzimmer auf einer Etage im Obergeschoss
- Badezimmer mit Dusche und Badewanne
- Elternschlafzimmer verfügt über eine eigene Ankleide
- effiziente Luft-Wasser-Wärmepumpe
- Fußbodenheizung
- PV-Anlage mit Batteriespeicher
- Dachform Satteldach
- Dachneigung 25°
- Wohnfläche 135 m²
- Anzahl Geschosse 2
Lage
Das projektierte Bauvorhaben entsteht in der Herrenlandstraße in Radolfzell am Bodensee, einer der attraktivsten Städte der Region mit hoher Lebensqualität.
Die ruhige, gepflegte Wohnlage bietet kurze Wege zur Altstadt (ca. 10 Minuten zu Fuß), zum Bahnhof (ca. 1 km) und zu Einkaufsmöglichkeiten, Restaurants sowie Freizeiteinrichtungen. Der Bodensee und Naherholungsgebiete wie die Halbinsel Mettnau oder der Seeuferpark sind in wenigen Minuten erreichbar.
Öffentliche Verkehrsmittel sowie eine hervorragende Anbindung an Konstanz, Singen, Friedrichshafen, die Schweiz, die B33 und die A81 gewährleisten Mobilität in alle Richtungen. Schulen, Kindergärten, medizinische Einrichtungen und Sportangebote befinden sich in unmittelbarer Nähe und machen den Standort besonders familienfreundlich.
Radolfzell selbst vereint städtischen Komfort mit naturnaher Umgebung, einem lebendigen Zentrum und hohem Freizeitwert und zählt zu den gefragtesten Wohnorten der Bodenseeregion.
Sonstige Angaben
Das projektierte Einfamilienhaus ist QNG zertifizierbar. Somit ist für Sie (Familie mit 1-2 Kinder) die höchste Förderstufe der KfW-Förderung "Wohneigentum für Familien" möglich und Sie profitieren von zinsgünstigen Krediten, die Ihnen die Finanzierung noch einmal zusätzlich erleichtern. Ob für Sie weitere Fördermöglichkeiten in Frage kommen, klären wir gerne in einem persönlichen Beratungsgespräch.
Grundriss
Grundriss EG - Haus B, QNG Vil
>
>
Grundriss OG - Haus B, QNG Vil
>
>
Adresse
78315 Radolfzell am Bodensee
Interessante Orte
Preis- und Lageinformationen
Preistrend für Bestandsimmobilien in Radolfzell am Bodensee