Auf dem historischen Gelände des ehemaligen Kronenbräu-Areals befindet sich dieses besondere Wohnhaus aus dem Jahr 1826, das ursprünglich als Verwaltungsgebäude der Brauerei genutzt wurde. Das Haus steht unter Denkmalschutz, was den historischen Wert unterstreicht und besondere Gestaltungsmöglichkeiten sowie steuerliche Vorteile eröffnet. Die Geschichte des Hauses ist bis heute spürbar und verleiht der Immobilie eine Authentizität, die man nur selten findet. Wo einst die organisatorische Zentrale der Brauerei untergebracht war, bietet sich heute die Möglichkeit, mit überschaubarem Budget ein individuelles Zuhause oder ein attraktives Investitionsobjekt zu entwickeln.
Das Gebäude liegt in einem ausgewiesenen Sanierungsgebiet und ermöglicht dadurch steuerliche Vorteile für Investoren und Eigennutzer, insbesondere im Rahmen der Abschreibungsmöglichkeiten nach §7h/7i EStG. Dies schafft eine hervorragende Grundlage, um historische Substanz mit wirtschaftlichem Weitblick und gestalterischer Freiheit zu verbinden.
Die Wohnfläche beträgt ca. 161,02 m² und verteilt sich auf zwei Ebenen. Das Grundstück umfasst derzeit rund 285 m². Durch den geplanten Abriss des angrenzenden Gebäudes wird die Grundstücksfläche auf ca. 320 m² erweitert und bietet damit zusätzlichen Raum für Garten, Terrasse oder individuelle Außenbereichsgestaltung.
Die Grundrissstruktur ist klar und gut nutzbar und erlaubt verschiedene Wohnkonzepte, darunter ein großzügiges Einfamilienhaus, ein Zweifamilienhaus oder Mehrgenerationenwohnen. Auch eine Nutzung als Kapitalanlage ist denkbar.
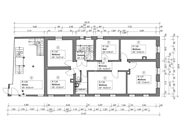
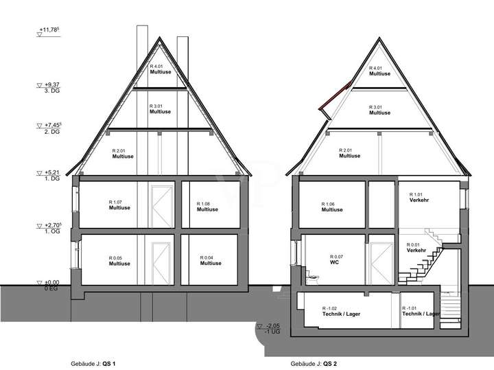
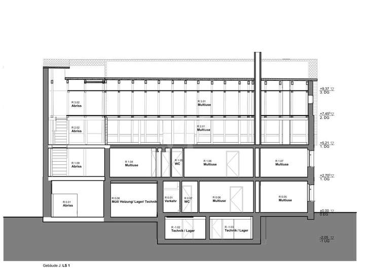
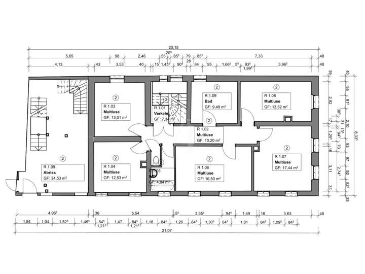
Insgesamt stehen acht Zimmer zur Verfügung, darunter bis zu sechs Schlafzimmer. Die Räume zeichnen sich durch angenehme Proportionen und eine klassische Aufteilung aus. Im Untergeschoss befinden sich zwei gewölbte Kellerräume.
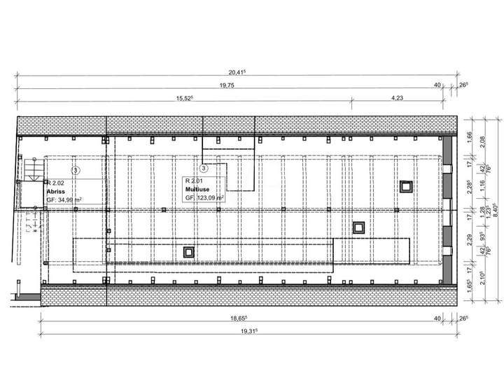
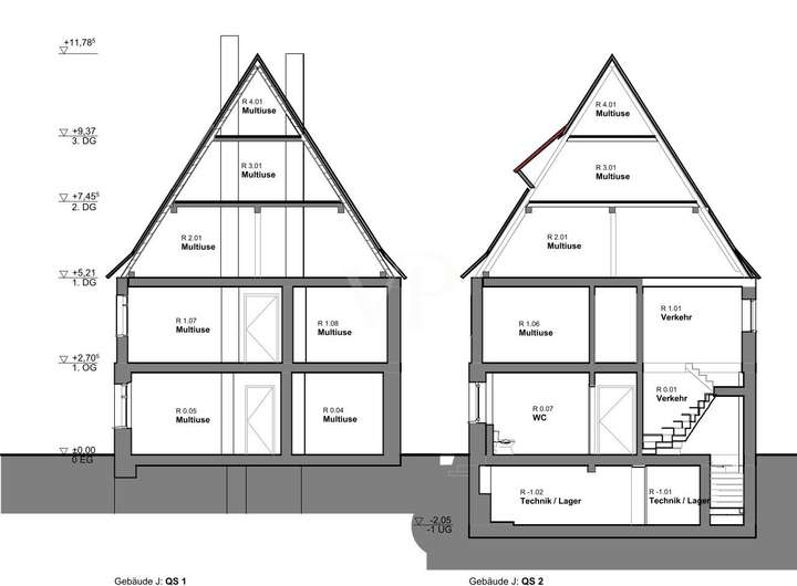
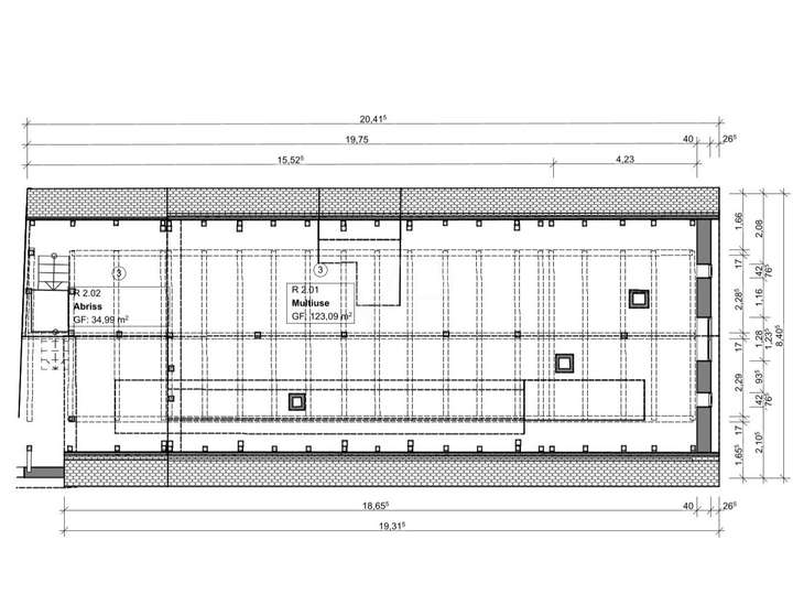
Zusätzlich verfügt das Haus über einen zweigeschossigen Dachboden (ca. 200 m²), der derzeit nicht ausgebaut ist. Dieser bietet weiteres, erhebliches Potenzial zur Schaffung zusätzlicher Wohnfläche oder individueller Nutzungsbereiche, vorbehaltlich der erforderlichen Genehmigungen. Damit eröffnet sich eine weitere Möglichkeit, die Immobilie den eigenen Bedürfnissen anzupassen und den Wert nachhaltig zu steigern.
Im Inneren sind noch zahlreiche charakterlich wertvolle Details erhalten geblieben, die an die ehemalige Brauerei erinnern. Dazu zählen hübsche Holzfenster, teilweise originaler Dielenboden sowie weitere bauliche Elemente, die dem Haus Wärme, Substanz und Geschichte verleihen. Diese Details bieten eine ideale Basis, um den ursprünglichen Charme im Zuge einer Sanierung zu bewahren und mit modernen Wohnansprüchen zu verbinden.
Das Gebäude ist vollständig sanierungsbedürftig und verfügt derzeit über keine Heizungsanlage. Die im Kaufpreis enthaltenen Erschließungskosten in Höhe von ca. 45.000,- Euro umfassen neben Gas, Strom und Wasser auch die Erschließung der Straße, bis zum Grundstück. Leitungen und entsprechende Anschlusskosten vom Grundstück in das Gebäude selbst bzw. an die gewünschte Stelle sind vom Käufer zu tragen. Dies eröffnet die Möglichkeit, die Immobilie technisch, energetisch und gestalterisch vollständig nach eigenen Vorstellungen zu modernisieren.
Diese Immobilie richtet sich an Käufer mit Blick für das Besondere. Ob Eigennutzer mit Sinn für historische Gebäude, kreative Bauherren oder Investoren mit Fokus auf steuerliche Vorteile: Hier lässt sich mit durchdachter Planung und Liebe zum Detail ein einzigartiger Wohn- oder Anlagewert schaffen.
Gerne stellen wir Ihnen dieses außergewöhnliche Haus persönlich vor und erläutern Ihnen die vielfältigen Möglichkeiten, die diese Immobilie bietet.
VON POLL | Historisches Juwel auf dem Kronenbräu-Areal trifft Zukunftspotenzial!
91242 Ottensoos
Die vollständige Adresse der Immobilie erhalten Sie vom Anbieter.
Auf Karte anzeigen
Die vollständige Adresse der Immobilie erhalten Sie vom Anbieter.
Finanzierungszertifikat
In nur zwei Minuten zu Ihrem persönlichen Finanzierungszertifkat.
Infos
| Haustyp | Einfamilienhaus |
|---|---|
| Wohnfläche ca. | 161 m2 |
| Grundstücksfläche | 284,78 m2 |
| Zimmer | 8 |
| Schlafzimmer | 6 |
| Badezimmer | 1 |
| Garage/Stellplatz | Außenstellplatz |
| Anzahl Garage/Stellplatz | 6 |
Kosten
| Kaufpreis |
485.000 € |
|---|---|
| Provision |
Käuferprovision beträgt 3,57 % (inkl. MwSt.) des beurkundeten Kaufpreises |
Finanzierungsrechner:
Kaufpreis:
600.000 €
Eigenkapital:
600.000 €
Monatliche Rate
0 €
Effektiver Jahreszins
0 %
Sollzinsbindung
10 Jahre
Bausubstanz & Energieausweis
| Baujahr | 1826 |
|---|---|
| Bauphase | Haus fertig gestellt |
| Denkmalschutzobjekt | Ja |
| Energieausweis | laut Gesetz nicht erforderlich |
Beschreibung des Objekts
Lage
Ottensoos ist ein charmantes, familienfreundliches Dorf im Nürnberger Land, das eine ideale Mischung aus ländlicher Ruhe und hervorragender Anbindung bietet. Eingebettet in eine idyllische Naturkulisse mit Wäldern, Wiesen und weitläufigen Spazierwegen, vermittelt der Ort ein Gefühl von Geborgenheit und hoher Lebensqualität.
Trotz der naturnahen Lage genießen Bewohner eine ausgezeichnete Verkehrsanbindung: Der S-Bahnhof Ottensoos sorgt für eine schnelle Verbindung nach Nürnberg, Lauf und Hersbruck. Perfekt für Pendler oder alle, die die Nähe zur Stadt schätzen, aber dennoch ruhig wohnen möchten. Mit dem Auto ist man durch die nahegelegene Autobahn A9 ebenfalls in kurzer Zeit in Nürnberg und der gesamten Metropolregion.
Im Ort selbst finden sich alle wichtigen Einrichtungen, die das tägliche Leben angenehm machen. Einkaufsmöglichkeiten über Kindergarten und Grundschule bis hin zu Ärzten und kleinen, regionalen Geschäften. Die freundliche Dorfgemeinschaft und die gut ausgebaute Infrastruktur machen Ottensoos zu einem Ort, in dem man sich schnell zuhause fühlt.
Auch das Freizeitangebot überzeugt: Wanderwege, Radstrecken, das Pegnitztal und zahlreiche Ausflugsmöglichkeiten liegen praktisch vor der Haustür. Gleichzeitig bietet das traditionelle Ortsbild mit gepflegten Häusern und ruhigen Straßen eine Atmosphäre, in der man jederzeit zur Ruhe kommt.
Ottensoos vereint das Beste aus zwei Welten: Naturverbundenheit, Ruhe und ein hoher Wohlfühlfaktor. Ein Standort, der sowohl für Familien als auch für Berufstätige und Naturliebhaber besonders attraktiv ist.
Sonstige Angaben
GELDWÄSCHE: Als Immobilienmaklerunternehmen ist die von Poll Immobilien GmbH nach § 2 Abs. 1 Nr. 14 und § 11 Abs. 1, 2 Geldwäschegesetz (GwG) dazu verpflichtet, bei der Begründung einer Geschäftsbeziehung die Identität des Vertragspartners festzustellen und zu überprüfen, bzw. sobald ein ernsthaftes Interesse an der Durchführung des Immobilienkaufvertrages besteht. Hierzu ist es erforderlich, dass wir nach § 11 Abs. 4 GwG die relevanten Daten Ihres Personalausweises festhalten (wenn Sie als natürliche Person handeln) – beispielsweise mittels einer Kopie. Bei einer juristischen Person benötigen wir eine Kopie des Handelsregisterauszugs, aus welchem der wirtschaftlich Berechtigte hervorgeht. Das Geldwäschegesetz sieht vor, dass der Makler die Kopien bzw. Unterlagen fünf Jahre aufbewahren muss. Als unser Vertragspartner haben Sie auch eine Mitwirkungspflicht nach § 11 Abs. 6 GwG.
HAFTUNG: Wir weisen darauf hin, dass die von uns weitergegebenen Objektinformationen, Unterlagen, Pläne etc. vom Verkäufer bzw. Vermieter stammen. Eine Haftung für die Richtigkeit oder Vollständigkeit der Angaben übernehmen wir daher nicht. Es obliegt daher unseren Kunden, die darin enthaltenen Objektinformationen und Angaben auf ihre Richtigkeit hin zu überprüfen. Alle Immobilienangebote sind freibleibend und vorbehaltlich Irrtümer, Zwischenverkauf- und Vermietung oder sonstiger Zwischenverwertung.
UNSER SERVICE FÜR SIE ALS EIGENTÜMER:
Planen Sie den Verkauf oder die Vermietung Ihrer Immobilie, so ist es für Sie wichtig, deren Marktwert zu kennen. Lassen Sie kostenfrei und unverbindlich den aktuellen Wert Ihrer Immobilie professionell durch einen unserer Immobilienspezialisten einschätzen. Unser bundesweites und internationales Netzwerk ermöglicht es uns, Verkäufer bzw. Vermieter und Interessenten bestmöglich zusammenzuführen.
Grundriss
Grundriss KG
>
>
Grundriss EG
>
>
Grundriss 1. OG
>
>
Grundriss 1. DG
>
>
Grundriss 2. DG
>
>
Querschnitt
>
>
Längsschnitt
>
>
Ansicht Nord
>
>
Ansicht Süd
>
>
Ansicht West
>
>
Adresse
91242 Ottensoos
Interessante Orte
Preis- und Lageinformationen
Preistrend für Bestandsimmobilien in Ottensoos