In einem neu entstehenden Baufeld im Ortsteil Gräbendorf der Gemeinde Heidesee bei Königs Wusterhausen stehen mehrere attraktive Grundstücke zum Verkauf. Die Grundstücke eignen sich hervorragend für den Bau eines individuellen Einfamilienhauses und bieten aufgrund ihrer Größe sowie der flexiblen Bebaubarkeit vielfältige Gestaltungsmöglichkeiten.
Die Erschließung ist im Kaufpreis enthalten und befindet sich bereits im Bau. Sämtliche Medien - einschließlich Strom, Wasser, Abwasser und Telekommunikation - werden direkt bis auf die einzelnen Grundstücke geführt. Damit ist ein reibungsloser Baustart nach Erwerb und Baugenehmigung gewährleistet.
Für das Gebiet liegt ein rechtskräftiger Bebauungsplan vor. Dieser ermöglicht mit einer GRZ von 0,36 eine großzügige und moderne Wohnbebauung. Damit eignen sich die Grundstücke optimal für zukünftige Eigentümer, die Wert auf individuelle Planungsfreiheit und eine naturnahe Wohnlage legen.
Die Kombination aus moderner Erschließung, klaren baurechtlichen Rahmenbedingungen und der ruhigen, familienfreundlichen Lage macht dieses Angebot besonders attraktiv für alle, die ihr Wunschhaus im Grünen verwirklichen möchten.
Der Kaufpreis beinhaltet den Grundstückskaufpreis und den Kaufpreis für den Bungalow „FAMILY120“ zzgl. Erschließungskosten.
Ausstattung:
• ThermoBodenplatte WU-Beton
• Massive Außen- und Innenwände im EG aus Poroton-Ziegel
• Wärmepumpe
• Fußbodenheizung
• 3-fach verglaste Premium-Fenster
• Und vieles Mehr…
Bungalow INDIVIDUELL. SOLIDE. BEZAHLBAR. inkl. Grundstück
15745 Heidesee
Die vollständige Adresse der Immobilie erhalten Sie vom Anbieter.
Auf Karte anzeigen
Die vollständige Adresse der Immobilie erhalten Sie vom Anbieter.
Finanzierungszertifikat
In nur zwei Minuten zu Ihrem persönlichen Finanzierungszertifkat.
Infos
| Haustyp | Einfamilienhaus |
|---|---|
| Etagenzahl | 1 |
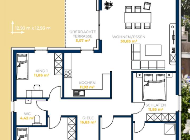
| Wohnfläche ca. | 120 m2 |
| Grundstücksfläche | 600 m2 |
| Zimmer | 4 |
| Schlafzimmer | 3 |
| Badezimmer | 1 |
Kosten
| Kaufpreis |
426.500 € |
|---|---|
| Provision |
4,76% inkl. MwSt. auf den Grundstückspreis Bei Abschluss des notariellen Kaufvertrags ist eine Provision in Höhe von 4,76% inkl. MwSt. auf den Grundstückskaufpreis in Höhe von 216.000,00€ fällig und zahlbar. |
Finanzierungsrechner:
Kaufpreis:
600.000 €
Eigenkapital:
600.000 €
Monatliche Rate
0 €
Effektiver Jahreszins
0 %
Sollzinsbindung
10 Jahre
Bausubstanz & Energieausweis
| Bauphase | Haus in Planung (projektiert) |
|---|---|
| Qualität der Austattung | Gehoben |
| Heizungsart | Wärmepumpe |
| Wesentliche Energieträger | Strom |
| Energieausweis | liegt zur Besichtigung vor |
Beschreibung des Objekts
Lage
Das angebotene Baugrundstück befindet sich im idyllischen Ortsteil Gräbendorf der Gemeinde Heidesee, einer beliebten Wohnlage im Landkreis Dahme-Spreewald. Die Umgebung ist geprägt von gewachsenen Siedlungsstrukturen, gepflegten Einfamilienhäusern sowie viel Grün - ideal für alle, die naturnah wohnen und dennoch gut angebunden sein möchten.
Gräbendorf bietet eine ruhige, familienfreundliche Atmosphäre mit hoher Lebensqualität. Die ausgedehnten Wald- und Seengebiete in der Umgebung, laden zu Spaziergängen, Wassersport und Erholung im Freien ein. Einkaufsmöglichkeiten, gastronomische Angebote sowie medizinische Versorgung sind in den umliegenden Ortsteilen und in Königs Wusterhausen schnell erreichbar.
Für Familien besonders attraktiv sind die nahegelegenen Kitas und Schulen, die mit dem Fahrrad oder öffentlichen Verkehrsmitteln gut angebunden sind. Die Gemeinde Heidesee verfügt über ein aktives Vereinsleben sowie zahlreiche Freizeit- und Sportangebote.
Die Verkehrsanbindung ist komfortabel: Über die A10 und A13 erreichen Sie Berlin, das Berliner Umland und die Region Spreewald in kurzer Zeit. Auch der Bahnhof Königs Wusterhausen mit S- und Regionalbahnanschluss ist schnell zu erreichen.
Insgesamt bietet diese Lage eine gelungene Kombination aus naturnahem Wohnen, guter Infrastruktur und optimaler Anbindung - ideal für alle, die ein ruhiges Zuhause im Grünen suchen, ohne auf städtische Erreichbarkeit verzichten zu müssen.
Sonstige Angaben
Alle Angaben zum Objekt beruhen auf den Angaben des Eigentümers. Irrtum und Zwischenverkauf ist vorbehalten. Der Verkauf erfolgt provisionspflichtig zugunsten eines beauftragten Maklerunternehmens.
Hinweis: Ein Energieausweis wird mit Baufertigstellung übergeben.
FIBAV Vertriebspartner Zeuthen
Jan Grams-Winter
Miersdorfer Chaussee 18
15738 Zeuthen
0176-22265852
033762-518813
info@fibav-vertriebspartner-zeuthen.de
www.fibav.de
zzgl. Baunebenkosten, Erschließungs- und Hausanschlusskosten
Abbildungen zeigen Varianten
Adresse
15745 Heidesee
Interessante Orte
Preis- und Lageinformationen
Preistrend für Bestandsimmobilien in Heidesee