KRISENSICHER UND AUTARK IN DIE ZUKUNFT
Vergessen Sie Schlagzeilen vom Black-Out und von Zusammenbrüchen der Stromnetze und anderen Katastrophen und den damit verbunden Folgen, wie der Ausfall vom wichtigsten Grundnahrungsmittel "Wasser". Die Wohnungen bleiben kalt, da ohne Strom auch keine moderne Heizung funktioniert und auch die Versorgung mit Lebensmitteln steht auf der Kippe.
Mit diesen Anwesen können Sie getrost all dieser latenten Katastrophen und deren Szenarien entgegensehen. Und zu Corona-Zeiten lebte man außerhalb der Zwänge einer Wohnung mit viel Platz und Natur.
GESICHERTE WASSERVERSORGUNG
Die Wasserversorgung ist immer gewährleistet, da die Versorgung über einen Brunnen erfolgt, der ohne jeglichen Energiebedarf aufgrund physikalischer Kräfte arbeitet. Zudem bezahlen Sie für das bezogene Wasser in Schwarzwald-Qualität und ohne Chlor keinen Cent.
STROMVERSORGUNG
Die Stromversorgung ist teilweise über die 9 KV Photovoltaik abgedeckt. Ein Generator könnte die entstehenden Lücken ergänzen, womit zumindest die Wärmeversorgung der 2017 eingebauten Ölheizung gewährleistet ist.
WARME WOHNUNG - WARMES ESSEN
Jede Wohnung dieses Zweifamilien-Hauses hat einen Holz-Ofen, beide am 13.06.2025 abgenommen und attestiert. Die Wohnung im Erdgeschoß verfügt sogar über einen antiken Holz-Ofen-Herd mit Backröhre und Wasser-Schiffchen und das Beste, das dafür benötige Holz befindet sich direkt vor Ihrer Haustüre und dazu auch noch kostenlos. Die Bewohner haben somit immer eine warme Mahlzeit, an Stelle einer kalten Dose Ravioli.
SELBSTVERSORGER
Mit dem vorhandenen großen Garten und dem 1,7 ha großen Grundstücken kann die Grundversorgung mit Lebensmitteln sichergestellt werden. Zudem befinden sich auf dem Grundstück diverse Obst und Nutzbäume, wie zwei große Maronen-Bäume, Walnuss und Mirabellen, Quitten, Äpfel und anderen Früchten. Neben diesen Obst-Bäumen nennt man außerdem ein Stück Wald sein Eigen. Auch gehört eine große Wiese zum Anwesen, die durch einen Wildbach begrenzt wird, auf der auch Tiere gehalten werden können.
NATUR PUR + ALLEINLAGE
Dieses Haus in Alleinlage zeichnet sich durch eine schöne Natur aus und die Nachbarn sind außerhalb Ihrer Sichtweite.
Stellen Sie sich vor, Sie stehen morgens auf dem Balkon oder der Terrasse und genießen Ihren morgendlichen Kaffee oder Tee und atmen glasklare frische Luft. Sie lauschen der Natur und die aufgehende Sonne wärmt Ihre Haut und sie hören das Rauschen des Wildbachs zu Ihren Füßen.
Abends, in der Dunkelheit stehen Sie wieder auf der Terrasse und schauen in den Nachthimmel. Bei glasklarer Luft und ohne jeden Einfluss einer Lichtquelle beobachten Sie den Sternenhimmel. Und wenn sich die Augen langsam an die Dunkelheit gewöhnt haben, sehen Sie die winzigen Punkte unsere Galaxie, der Milchstraße, mit ihren Milliarden von Sternen und Himmelsköpern so klar, wie Sie diesen faszinierenden Anblick vielleicht bisher noch nie gesehen haben.
DER PREIS
Der Preis dieses frisch renovierten Hauses liegt am untersten Ende von Schätz- und Vergleichswerten und weit unter dem genannten Höchstwert.
DAS VERKAUFSARGUMENT
Sie fragen sich jetzt vielleicht, warum wird so ein Haus mit all diesen geschilderten Alleinstellungsmerkmalen verkauft? Leider wird es jetzt angeboten, denn der Zahn der Zeit nagt NICHT am Haus, sondern am Besitzer - also dem Inserenten. Irgendwann stellt sich die Frage, wann ist der richtige Zeitpunkt für einen Verkauf - und der ist jetzt. Das Anwesen ist im Top-Zustand und es ist deshalb jetzt auch die richtige Zeit, es in jüngere Hände zu geben, die mit Herz und Verstand das Anwesen in die Zukunft begleiten.
MFH * top renoviert * Alleinlage * Selbstversorgung * Land-/Forstwirtschaft * Quellwasser * PV
Wildschapbachstraße 6,
77776 Bad Rippoldsau-Schapbach
Auf Karte anzeigen
Finanzierungszertifikat
In nur zwei Minuten zu Ihrem persönlichen Finanzierungszertifkat.
Infos
| Haustyp | Mehrfamilienhaus |
|---|---|
| Etagenzahl | 2 |
| Wohnfläche ca. | 263 m2 |
| Nutzfläche | 270 m2 |
| Grundstücksfläche | 17.301 m2 |
| Bezugsfrei ab | nach Absprache |
| Zimmer | 10 |
| Schlafzimmer | 6 |
| Badezimmer | 4 |
| Garage/Stellplatz | Garage |
| Anzahl Garage/Stellplatz | 2 |
Kosten
| Kaufpreis |
478.000 € |
|---|---|
| Provision | Nein |
Finanzierungsrechner:
Kaufpreis:
600.000 €
Eigenkapital:
600.000 €
Monatliche Rate
0 €
Effektiver Jahreszins
0 %
Sollzinsbindung
10 Jahre
Bausubstanz & Energieausweis
| Baujahr | 1992 |
|---|---|
| Bauphase | Haus fertig gestellt |
| Objektzustand | Erstbezug nach Sanierung |
| Heizungsart | Zentralheizung |
| Wesentliche Energieträger | Öl |
| Energieausweis | liegt vor |
| Energieausweistyp | Verbrauchsausweis |
| Energieverbrauchskennwert | 83,9 kWh/(m²*a) |
| Energieeffizienzklasse | C |
83,9
kWh/(m²*a)
Energieeffizienzklasse C
- A+
- A
- B
- C
- D
- E
- F
- G
- H
- 0
- 25
- 50
- 75
- 100
- 125
- 150
- 175
- 200
- 225
- >250
Beschreibung des Objekts
Ausstattung
Balkon, Terrasse, Keller, Dachterrasse, Vollbad, Duschbad, Einbauküche, Gäste-WC, Kamin, Parkett, Laminat, Fliesen, Sonstiges (s. Text)
Bemerkungen:
KURZFASSUNG -- ÜBERBLICK
Mehrfamilienhaus - 2025 renoviertes zum Schnäppchenpreis mit zwei getrennten und in sich geschlossenen Wohnungen, jedoch durch eine Treppe auch gemeinsam nutzbar:
•Wohnung Erdgeschoß 163 qm
•Wohnung Obergeschoß 100 qm
•Erstbezug nach Renovierung
•Alleinlage - viel Natur - Ruhe - reine Luft - sauberes Wasser
•Hochwertige und umfassende Renovierung und Sanierung
•Verwendung von sehr hochwertigen Baumaterialien im Baubestand
•Zwei separaten Wohneinheiten - - Teilung in vier Einheiten möglich
•Alle Fenster und Außentüren mit Rollos oder Fensterläden
•Neuwertige Brennwert-Öl-Zentralheizung - - Einbau 07.2017
•Energieausweis C
•9 KV Photovoltaik-Anlage für nachhaltige Stromerzeugung
•Doppelgarage (funkgesteuert)
•Carport
•zusätzliche Stellplätze
•Quelle als Wasserversorgung in Top-Qualität zum Nulltarif - Chlorfrei
•Viele Nutzflächen - Schopf - Gewölbekeller - ehemalige Ställe
•Großer Nutzgarten
•Mehrere Hütten und Gewächshäuser
•Großer Gerätepark (Ferngesteuerte Mäh-Rraupe, Häcksler, div. Freischneider usw.)
•Verkauf durch Eigentümer - Keine Makler- oder Vermittlerprovision!
•Bezugsfertig und Mieterfrei - sofort verfügbar und beziehbar
UMFASSEND RENOVIERTES UND SANIERT IM INNENBEREICH
•Alle Zimmer und Flure neu verputzt und gestrichen
- Zimmer mit Feinputz
- Flur mit Rauhputz
•Neue energiesparende Heizkörper
•Elektronisch Regler an den Heizkörpern
•Neue WCs in den Bädern bzw. Duschen
•Neue Waschbecken und Armaturen in den Bädern bzw. Duschen
•Neue Badezimmerspiegel beleuchtet (LED) mit Antibeschlag
•Dusche EG erneuert - bodentief und mit hochwertigen Armaturen
•Neue Türen
•Neue Fensterbänke
•Teilweise neue Fenster
•Steckdosen und Schalter erneuert
•Hochwertiger Parkett - saniert und versiegelt
•Fußbodenheizung in den Duschen und Bädern
RENOVIERUNG/SANIERUNG IM AUßENBEREICH
•Neue Türen und Fenster (Doppelverglasung)
•- - Heizungsraum
•- - Gewölbekeller
•Eingangstüre saniert
•Sanierung und Teilerneuerung Balkon
•Sanierung und Teilerneuerung Terrassen
WOHNKULTUR
Zwei getrennte Wohnungen mit insgesamt 263 qm großen lichtdurchfluteten und hellen Wohnräumen
•4 Bäder bzw. Duschen (zwei je Wohnung)
•- - mit Fußbodenheizung und Heizkörper
•10 Zimmer
•Große Wohnküche im EG mit historischen Holzofen-Herd
•Im Wohnzimmer OG Schwedenofen/Holzofen
•- - Beide Öfen abgenommen und testiert am 13.06.2025
•Alle Fenster und Glastüren mit Doppel-/Isolierverglasung
•Fenster mit Rollos (teils elektrisch) oder Fensterläden
•Hochwertiges Parkett in mehreren Wohnräumen
•Pflegeleichte Steinböden im Eingangsbereich und Fluren
•Fliesen in den Bädern
•Laminat in den Gäste- und Kinderzimmern
ANNEHMLICHKEITEN UND KOMFORT
•Video-Türanlage für Zweifamilienhaus
•Etliche Türen und Fenster mit elektrisch gesteuerten Rollos
•Im und um den Haus Beleuchtung über Bewegungsmelder
•WLAN im ganzen Haus und herum verfügbar
•Fernsehempfang über WLAN
•Funksteuerung der Garagentore
•Elektronische Regler und Steuerung der Heizköper
•- - individuelle Einstellung von Temperatur und Zeit je Heizkörper
•Wasserversorgung über Quelle - Bezug kostenlos
INVESTITION IN DIE ZUKUNFT
•Wertvoller Baumbestand - Nussbäume, Maronen, Nutzholz!!
•- - Holz für zwei vorhandenen Öfen in Hülle und Fülle - Kostenfrei!
•Mähraupe mit Fernsteuerung (kann übernommen werden)
Lage
DAS ANWESEN - Kaufen OHNE MAKLERKOSTEN
Das Anwesen liegt im Naturpark Schwarzwald mit allen seinen Möglichkeiten.
Dieses außergewöhnliche und in 2025 top-renovierte und modernisierte Zweifamilien-Haus in Alleinlage mit 1,73 ha Wald und Wiesen am Wildbach, mit einer Quelle zur Wasserversorgung, PV-Anlage und einer modernen und sparsamen Öl-Heizung (Energieausweis C) bietet Ihnen alle die zuvor geschilderte Möglichkeit. Und das ohne zusätzliche Kosten für Makler oder sonstige Vermittlergebühren.
DIE WOHNUNGEN - ERSTBEZUG NACH RENOVIERUNG
Zudem erwartet den zukünftigen Hausherren neben einer großartigen Natur zwei helle und lichtdurchflutete Wohnungen mit smartem Komfort neuester Technik, bestes Bau- und Wohlfühl-Klima eines konventionell gebauten Hauses, viele Nutzflächen, Garagen, Carport und Parkplätze, ein großer Garten und trotz aller Abgeschiedenheit eine hervorragende Infrastruktur.
FÜR INVESTOREN
Die beiden in sich geschlossenen Wohnungen können ohne größere Umbauten in 4 Einheiten aufgeteilt werden. Jede Wohnung hat dabei jeweils ein Bad oder eine Dusche. Die Wohnungsnot in dieser Region führt häufig zum Scheitern für die Besetzung von offenen und angebotenen Stellen.
INFRASTRUKTUR UND UMFELD
Banken, Post, Restaurants, Einkaufsmöglichkeiten, Schulen (der Schul-Bus hält direkt vor der Haustüre), Erholungs- und Sportangebote und das beheizte Schwimmbach, das durch einen Förderverein finanziert wird, sind in unmittelbarer Nähe. Zudem ist der europaweit bekannte Bären- und Wolfspark nur wenige Kilometer entfernt.
Die Ski-Lifte sind für Wintersportbegeisterte in nur 20 Minuten zu erreichen. Wanderer und Mountain-Biker finden hier unendliche Möglichkeiten um die Region zu erkunden und zu "erfahren".
Die medizinische Versorgung ist vom Hausarzt bis zur Klinik gewährleistet.
In der Region befinden sich mehrere Bergwerke zur Förderung von seltenen Erden. Einige Bergwerke können auch besucht werden.
Ebenso befindet ich in der Nähe der Bergwerke eine Mineralienhalte, die für Besucher geöffnet ist und die Suche nach Mineralien erlaubt. Ein beliebter Freizeitspaß für Eltern und Kinder.
Etliche Firmen, darunter einige erste Adressen von Weltgeltung, sind in der Region angesiedelt und bieten eine Vielzahl von Arbeitsplätzen. Firmen beklagen das Scheitern von Anstellungen aufgrund fehlenden Wohnraums.
In der Nähe befindet sich das Mathematische Institut, das Forschung und internationale wissenschaftliche Zusammenarbeit sowie Fortbildungen in der Mathematik und ihren Grenzgebieten fördert.
Buslinien fahren von Schapbach regelmäßig nach Freudenstadt, in die Nachbargemeinden oder nach Offenburg. Die europäische Metropolregion Straßburg mit seinem französischen Flair erreicht man mit dem Auto in ca. 1 Stunde.
Sonstige Angaben
Heizungsart: Zentralheizung
Energieträger: Öl
MAKLERFREI
Sparen Sie Makler- oder Vermittlungsgebühren von über 20.000 Euro, da der Verkauf privat organisiert ist.
ERSTBEZUG NACH RENOVIERUNG
SOFORT VERFÜGBAR
Das angebotene Anwesen ist bezugsfertige und mieterfrei und Sie können nach Erledigung der Formalitäten direkt einziehen.
MAKLERANFRAGEN UND KONTAKTE UNERWÜNSCHT
Makleranfragen nicht erwünscht. Nach § 7 UWG sind unaufgeforderte Kontaktaufnahmen durch Makler ohne ausdrückliche Einwilligung des Empfängers verboten!
ohne-makler (OM) ist weder Anbieter noch Vermittler der Immobilie. OM betreibt eine Plattform für Immobilieneigentümer, die unter anderem die gleichzeitige Veröffentlichung einzelner Inserate auf mehreren Immobilienportalen ermöglicht. Die Inhalte dieser Inserate werden ausschließlich von Dritten verantwortet. Für die Richtigkeit, Vollständigkeit oder Rechtmäßigkeit der Angaben übernimmt OM keine Haftung. Hinweise auf mögliche Rechtsverstöße können jederzeit gemeldet werden und werden nach Prüfung umgehend bearbeitet.
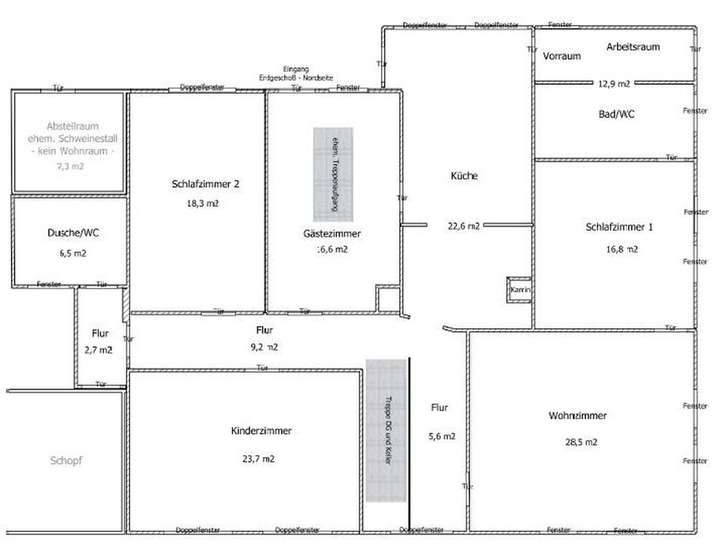
Grundriss
Plan EG
>
>
Plan OG
>
>
Plan Keller + Schopf
>
>
Adresse
Wildschapbachstraße 6, 77776 Bad Rippoldsau-Schapbach
Interessante Orte
Preis- und Lageinformationen
Preistrend für Bestandsimmobilien in Bad Rippoldsau-Schapbach