Dieses außergewöhnliche historische Forsthaus aus dem Jahr 1925 vereint Geschichte, Großzügigkeit und eine einmalige Lage am ruhigen Feldrand. Das massiv erbaute Anwesen liegt eingebettet auf einem weitläufigen Grundstück mit altem Baumbestand, der Ruhe, Weite und ein naturnahes Lebensgefühl garantiert. Ursprünglich als Wohnhaus für den Förster und den Diener des nahegelegenen Gutshauses errichtet, strahlt das Haus noch heute den besonderen Charme seiner Geschichte aus. Das Dach wurde 2010 erneuert, und das Gebäude ist in zwei Haushälften unterteilt, die jeweils zwei Wohneinheiten umfassen. Die rechte Haushälfte mit den Wohneinheiten WE2 und WE4 vereint großzügiges Wohnen, Natur und Gemütlichkeit. Das zugehörige Grundstück umfasst ca. 1.140 m², liebevoll bepflanzt und mit Obstbäumen versehen, und bietet ausreichend Platz für Freizeit, Erholung oder eigene Gartenträume. Die Erdgeschosswohnung der rechten Haushälfte, Wohneinheit Nr. 2 beeindruckt mit einem offenen, großzügigen Wohnraum, der mit einem 2005 eingebauten Eckkamin für wohlige Wärme und ein besonders gemütliches Ambiente sorgt. Die funktionale Einbauküche lädt zu gemeinsamen Kochabenden ein, während das kleine Vollbad mit Dusche und Wanne Entspannung nach einem langen Tag garantiert. Ein zusätzliches Schlafzimmer ergänzt das Raumangebot und macht diese Wohnung ideal für Paare. Vom Wohnzimmer aus gelangen Sie direkt auf die schön umpflanzte Terrasse, die zum Verweilen im Freien einlädt. Beheizt wird diese Wohnung über eine moderne Gasheizung aus dem Jahr 2019. Über den hellen gemeinschaftlichen Flur und die elegant geschwungene Holztreppe gelangen Sie in die Obergeschosswohnung. Auf ca. 47 m² erwarten Sie drei Zimmer, eine praktische Pantry-Küche sowie ein kleines Duschbad. Trotz kompakter Fläche überzeugt diese Wohnung mit durchdachtem Schnitt, hellem Tageslicht und gemütlicher Atmosphäre. Diese rechte Haushälfte vereint ein großzügiges Erdgeschoss, die naturnahe Terrasse und ein gemütliches Obergeschoss zu einem harmonischen Wohnerlebnis. Ob als privates Familiendomizil oder Mehrgenerationenwohnen – hier ist alles möglich. Besonders attraktiv: Sie können nur diese rechte Haushälfte erwerben oder das komplette Anwesen mit beiden Haushälften und insgesamt vier Wohneinheiten. So eröffnet sich ein enormes Potenzial – für ein großzügiges Familienheim oder eine Mehrgenerationenlösung direkt an der Ostseeküste. Hier treffen Raum, Licht, Natur und Geschichte aufeinander – ein Zuhause, das inspiriert und in dem man jeden Tag aufs Neue aufatmen möchte.
Historische Haushälfte mit zwei Wohneinheiten "Ruhe, Natur und viel Raum zum leben"
23942 Kalkhorst
Die vollständige Adresse der Immobilie erhalten Sie vom Anbieter.
Auf Karte anzeigen
Die vollständige Adresse der Immobilie erhalten Sie vom Anbieter.
Finanzierungszertifikat
In nur zwei Minuten zu Ihrem persönlichen Finanzierungszertifkat.
Infos
| Haustyp | Doppelhaushaelfte |
|---|---|
| Wohnfläche ca. | 159 m2 |
| Grundstücksfläche | 1.140 m2 |
| Bezugsfrei ab | Sofort |
| Zimmer | 5 |
| Schlafzimmer | 3 |
| Badezimmer | 2 |
| Garage/Stellplatz | Garage |
| Anzahl Garage/Stellplatz | 1 |
Kosten
| Kaufpreis |
399.000 € |
|---|---|
| Provision |
3.57 % inkl. gesetzl. MwSt. |
Finanzierungsrechner:
Kaufpreis:
600.000 €
Eigenkapital:
600.000 €
Monatliche Rate
0 €
Effektiver Jahreszins
0 %
Sollzinsbindung
10 Jahre
Bausubstanz & Energieausweis
| Baujahr | unbekannt |
|---|---|
| Wesentliche Energieträger | Gas |
| Energieausweis | liegt vor |
| Energieausweistyp | Verbrauchsausweis |
| Energieverbrauchskennwert | 87,1 kWh/(m²*a) |
| Energieeffizienzklasse | C |
87,1
kWh/(m²*a)
Energieeffizienzklasse C
- A+
- A
- B
- C
- D
- E
- F
- G
- H
- 0
- 25
- 50
- 75
- 100
- 125
- 150
- 175
- 200
- 225
- >250
Beschreibung des Objekts
Ausstattung
Blick ins Grüne
Teilunterkellert
Kamin
Lage
Das idyllische Groß Schwansee liegt an der reizvollen Ostseeküste zwischen Travemünde und Boltenhagen und gehört zur Gemeinde Kalkhorst im Landkreis Nordwestmecklenburg. Der kleine, gepflegte Ort ist ein echter Geheimtipp für alle, die Ruhe, Natur und Meeresnähe schätzen – ein Platz, an dem man durchatmen und Kraft schöpfen kann. Nur wenige Gehminuten vom weiten Ostseestrand entfernt, bietet Groß Schwansee eine herrlich entspannte Atmosphäre. Endlose Spaziergänge entlang der Küste, morgendliche Radtouren durch Felder und Wiesen oder ein Bad in der Ostsee gehören hier einfach zum Alltag. Das Gebiet selbst ist geprägt von liebevoll gestalteten Häusern im nordischen Stil, gepflegten Gärten und einer ruhigen, erholsamen Nachbarschaft. Trotz dieser beschaulichen Lage profitieren Sie von einer angenehmen Anbindung an die umliegenden Orte. Das nahe gelegene Travemünde, nur etwa 16 Kilometer entfernt, lädt mit seinem maritimen Flair, dem historischen Hafen und den Promenaden zum Bummeln ein. In gut 35 Kilometern erreichen Sie die alte Hansestadt Lübeck, deren malerische Altstadt mit Gassen, Kultur und Gastronomie immer einen Besuch wert ist. Auch die lebendige Hansestadt Wismar liegt mit rund 40 Kilometern in angenehmer Nähe und bietet einen wunderschönen Hafen sowie vielfältige Einkaufsmöglichkeiten. Etwas weiter im Landesinneren befindet sich Schwerin (ca. 55–60 km), bekannt für sein märchenhaftes Schloss und die zahlreichen Seen, die zum Verweilen einladen. Und wer gelegentlich Großstadtluft schnuppern möchte, erreicht Hamburg in rund 110 Kilometern – ideal für einen Tagesausflug oder kulturelle Highlights. Ein weiteres Highlight vor Ort ist das Schlossgut Groß Schwansee mit seinem weitläufigen Park, dem Hotel und hervorragender Gastronomie – perfekt für genussvolle Abende oder einen Spaziergang im historischen Ambiente. Hier trifft ostseetypische Gelassenheit auf gehobenes Ferienflair – ein Ort, der sowohl für Erholungssuchende als auch für Naturliebhaber und Strandfreunde das perfekte Umfeld bietet.
Sonstige Angaben
Der Makler-Vertrag mit uns und/oder unserem Beauftragten kommt durch die Beauftragung der Maklertätigkeit in Textform (z.B. E-Mail mit Bestätigung der gewollten Inanspruchnahme) zustande. Die Höhe der Courtage richtet sich nach den ab dem 23.12.2020 in Kraft getretenen gesetzlichen Regelungen zur Teilung der Maklercourtage. Hiernach wird die Courtage regelmäßig für beide Parteien (Eigentümer und Käufer) jeweils in Höhe von 3 % zuzüglich Umsatzsteuer in jeweils geltender Höhe, derzeit also insgesamt 7,14 % des Kaufpreises einschließlich Umsatzsteuer bei notariellem Vertragsabschluss verdient und fällig. Die Höhe der Bruttocourtage unterliegt einer Anpassung bei Steuersatzänderung. […] Grunderwerbssteuer, Notar- und Gerichtskosten trägt der Käufer.
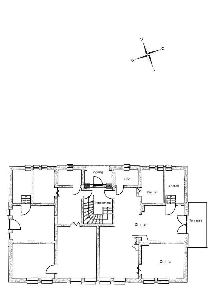
Grundriss
Erdgeschoss WE2
>
>
Obergeschoss WE4
>
>
Untergeschoss
>
>
Adresse
23942 Kalkhorst
Interessante Orte
Preis- und Lageinformationen
Preistrend für Bestandsimmobilien in Kalkhorst