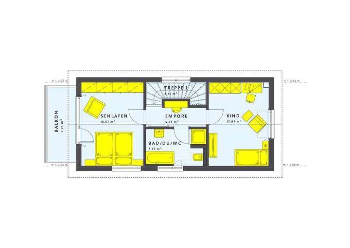
Willkommen in deinem zukünftigen Zuhause in Weilerswist! Dieses charmante Fertighaus mit 5 Zimmern und einer Wohnfläche von 107,68 m² bietet dir die Möglichkeit, deine persönlichen Wünsche und Vorstellungen in die Gestaltung einfließen zu lassen. Auf einem großzügigen Grundstück von 340 m² erstreckt sich das zweigeschossige Haus mit einem stilvollen Satteldach und einem luftigen Kniestock von 2 Metern, das für ein helles und freundliches Ambiente im Obergeschoss sorgt. Die bodentiefen Fenster und der klassische Rechteckbalkon, den du vom Schlafzimmer aus betreten kannst, laden dazu ein, die frische Luft und den Ausblick zu genießen. Im Obergeschoss findest du Platz für ein Kinderzimmer und eine gemütliche Schreibtischnische im Flur - ideal für die kleinen Dinge des Lebens!
Mit LivingHaus wird dein Traum vom eigenen Zuhause wahr - individuell und perfekt auf dich zugeschnitten!
Schönes Leben - mitten in Weilerswist
53919 Weilerswist
Die vollständige Adresse der Immobilie erhalten Sie vom Anbieter.
Auf Karte anzeigen
Die vollständige Adresse der Immobilie erhalten Sie vom Anbieter.
Finanzierungszertifikat
In nur zwei Minuten zu Ihrem persönlichen Finanzierungszertifkat.
Infos
| Haustyp | Einfamilienhaus |
|---|---|
| Etagenzahl | 2 |
| Wohnfläche ca. | 107 m2 |
| Nutzfläche | 107,68 m2 |
| Grundstücksfläche | 340 m2 |
| Zimmer | 5 |
| Schlafzimmer | 2 |
| Badezimmer | 1 |
Kosten
| Kaufpreis |
495.000 € |
|---|
Finanzierungsrechner:
Kaufpreis:
600.000 €
Eigenkapital:
600.000 €
Monatliche Rate
0 €
Effektiver Jahreszins
0 %
Sollzinsbindung
10 Jahre
Bausubstanz & Energieausweis
| Baujahr | unbekannt |
|---|---|
| Bauphase | Haus in Planung (projektiert) |
| Qualität der Austattung | Gehoben |
| Heizungsart | Wärmepumpe |
Beschreibung des Objekts
Ausstattung
☼ Safety-First-Garantien
☼ Küche
☼ Festpreisgarantie
☼ Zuhause-Darlehen bis zu 250.000 EUR
☼ Bau-Cockpit
☼ DGNB-Serienzertifizierung
☼ QDF-Zertifizierung
☼ 30-jährige Garantie
☼ Ausstattungsberatung in der Haus-Statterei in Bedburg
☼ I-KON-Lösung
☼ Wärmepumpentechnik mit Komfortlüftung
☼ Zuhause-Paket
▼▼▼
Dein neues Zuhause wird ab dem ersten Tag deiner Auftragsbestätigung durch unsere
☼ Safety-First-Garantien abgesichert.
Dazu gehört eine 18-monatige ☼ Festpreisgarantie sowie essenzielle Bauversicherungen wie Bauherrenhaftpflicht und Bauleistungsversicherung. Sollten die Baukosten sinken, profitierst du ebenfalls davon. Für deine Finanzierung steht das attraktive ☼ Zuhause-Darlehen bereit - oft unter dem Marktzinsniveau.
Mit dem Living Haus ☼ Bau-Cockpit bist du immer im Bilde über den Fortschritt deines Projekts;
dies umfasst auch direkte Ansprechpartner, Terminplanung und Zugang zu allen wichtigen Dokumenten. Unsere ☼ DGNB-Serienzertifizierung in Gold sowie die ☼ QDF-Zertifizierung garantieren höchste ökologische Standards.
Für die bauliche Sicherheit bieten wir dir eine ☼ 30-jährige Garantie auf die Grundkonstruktion sowie fünf Jahre Gewährleistung nach BGB für alle weiteren Leistungen.
Zwei Tage ☼ Ausstattungsberatung in der Haus-Statterei helfen dir dabei, alle Details perfekt abzustimmen.
Zusätzlich sorgt unsere vorkonfigurierte ☼ I-KON-Lösung für energieeffizientes Wohnen: Eine integrierte ☼ PV-Anlage versorgt dich mit selbst erzeugtem Strom; moderne ☼ Wärmepumpentechnik mit Komfortlüftung optimiert das Raumklima weiter.
Das ☼ Zuhause-Paket enthält sämtliche Materialien für den Innenausbau inklusive Fliesen und bodengleicher Duschen sowie optionaler Rollläden zur Verbesserung des Hitzeschutzes.
So entsteht dein ♥ "Wie ich es will Fertighaus".
Lage
Weilerswist bietet dir eine traumhafte Lage zwischen Natur und Infrastruktur. Die Gemeinde im Kreis Euskirchen überzeugt durch ihre hervorragende Anbindung und Lebensqualität.
Für Familien gibt es zahlreiche Bildungseinrichtungen: Die Gesamtschule Weilerswist, die Josef-Schaeben-Grundschule sind fußläufig erreichbar. Weitere Schulen im Gemeindegebiet sind die Hugo-von-Orsbeck-Grundschule Vernich und die Johannes-Vincken-Grundschule Lommersum.
Kindertagesstätten & Kindergärten sorgen für eine optimale Betreuung der Kleinsten. Hier gibt es die DRK Kitas in Weilerswist, den katholischer Kindergarten und die Waldkobolde Weilerswist zu nennen.
Gesundheitlich bist du bestens versorgt. Mehrere Hausärzte und Fachpraxen befinden sich im Ortskern. Die Krankenhäuser Marien-Hospital in Euskirchen, das Marien-Hospital Brühl oder das Marien-Hospital Erftstadt sind nur wenige Autominuten entfernt.
Für Einkäufe und Versorgung sorgen der REWE-Markt, Aldi und Penny. Der lokale Wochenmarkt bietet zudem frische Regionalprodukte. Supermärkte und Fachgeschäfte decken alle täglichen Bedürfnisse ab.
Pendler profitieren von der hervorragenden Verkehrsanbindung. Die Autobahn A1 ist schnell erreichbar, Köln und Bonn sind in nur 30-40 Autominuten zu erreichen. Der Bahnhof Weilerswist ermöglicht eine komfortable Anbindung an regionale Verkehrsnetze.
Die Umgebung lädt Naturliebhaber zum Wandern und Radfahren ein. Der Erftverband bietet wunderschöne Radwege, und die Eifel-Landschaft ist nur einen Katzensprung entfernt. Zahlreiche Naherholungsgebiete und Waldrandlagen sorgen für Entspannung und Lebensqualität.
Die Anbindung an den öffentlichen Nahverkehr ist optimal. Die S-Bahn-Haltestelle Weilerswist ermöglicht dir eine schnelle Verbindung nach Bonn und Köln. Auch die Autobahn A61 ist nur wenige Minuten entfernt, was Pendlern eine einfache Erreichbarkeit ihrer Arbeitsstätten in der Region ermöglicht.
Insgesamt ist Weilerswist ein idealer Ort für Familien, Naturliebhaber und Berufspendler, die ein harmonisches Leben in einer freundlichen Gemeinschaft suchen.
Sonstige Angaben
Heimkommen - Ankommen - Herunterkommen - Wohlfühlen.
Ein urbanes Grundstück.! ☺
Mit Altbestand, ein Schätzpreis für die Abrisskosten ist im Preis enthalten. Ein Angebot für die Abrisskosten steht noch aus.
Der Grundstückspreis ist im Anzeigenpreis bereits enthalten.
Die Maklercourtag für den Käufer wird auf den Kaufpreis berechnet.
Vereinbaren Sie Ihren persönlichen Beratungstermin und sichern Sie Ihrer Familie ein wundervolles Bauland mit Living Haus.
Wir legen größten Wert auf Herz und Kompetenz beim Bau Ihrer individuellen Wohnträume.
Im Sinne der Grundstückseigentümer bitten wir um Verständnis, dass wir ohne ein persönliches Gespräch zum Thema Hausbau keine Grundstücksdaten weiterleiten können. Diese Regelung gilt ohne Ausnahmen.
Auch können wir leider keine dauerhafte Verfügbarkeit der Grundstücke garantieren.
Jedes Grundstück ist einzigartig.
Nutzen Sie unseren kostenlosen Beratungsservice unter folgender Telefonnummer:
Guido Gebbing 0173 203 4711 oder per Mail: guido.gebbing@livinghaus.de
Grundriss
Livinghaus: Variante EG
>
>
Livinghaus: Variante OG
>
>
Adresse
53919 Weilerswist
Interessante Orte
Preis- und Lageinformationen
Preistrend für Bestandsimmobilien in Weilerswist