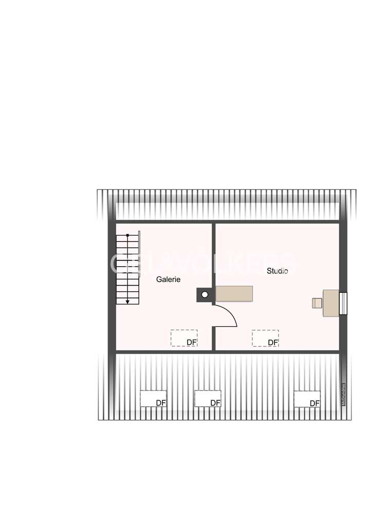
Dieser ehemalige Bauernhof wurde 1997 mit viel Sorgfalt zu einem attraktiven Mehrfamilienhaus umgebaut und bietet heute drei solide vermietete Wohneinheiten auf Erdgeschoss, Obergeschoss sowie Dachgeschoss – ergänzt durch ein gemütliches Studio im zweiten Dachgeschoss. Das Anwesen verbindet historischen Charme mit kontinuierlicher Modernisierung und präsentiert sich in einem äußerst gepflegten Zustand.
Zwischen 2013 und 2024 wurden alle Wohnungen laufend renoviert und technisch aufgewertet. Dazu zählen neue Bodenbeläge, frisch gestaltete Wände und Decken und eine moderne Eingangstüre. Auch die Außenanlage wurde umfassend überarbeitet, ebenso die Außenfassade inklusive Regenrinnen. Die Haustechnik wurde ebenfalls modern gehalten: Erneuerung der Wasserleitungen, Installation einer Enthärtungsanlage sowie energiesparende Durchlauferhitzer für die jeweiligen Warmwasserversorgungen.
Für wohlige Wärme sorgt eine Niedrigenergie-Öl-Zentralheizung aus dem Jahr 2014 in Kombination mit klassischen Heizkörpern. Zusätzlich steht im Dachgeschoß ein gemütlicher Holzofen für ein behagliches Wohngefühl zur Verfügung.
Ein weiterer Pluspunkt des Anwesens sind die umfangreichen Lagerflächen: Sowohl der ehemalige Stall als auch der 1986 errichtete Maschinenschuppen bieten jeweils über zwei Etagen nutzbare Flächen. Sie sind derzeit vermietet und erbringen so zusätzliche Einnahmen.
Dieses Objekt vereint ein solides Investment mit hoher Wohnqualität und bietet durch seine Kombination aus Wohn- und Nutzflächen ein außergewöhnlich vielseitiges Gesamtpaket.
Gepflegtes Mehrfamilienhaus mit attraktiven Lagerflächen
88348 Allmannsweiler
Die vollständige Adresse der Immobilie erhalten Sie vom Anbieter.
Auf Karte anzeigen
Die vollständige Adresse der Immobilie erhalten Sie vom Anbieter.
Finanzierungszertifikat
In nur zwei Minuten zu Ihrem persönlichen Finanzierungszertifkat.
Infos
| Haustyp | Mehrfamilienhaus |
|---|---|
| Etagenzahl | 4 |
| Wohnfläche ca. | 335 m2 |
| Nutzfläche | 570 m2 |
| Grundstücksfläche | 1.290 m2 |
| Bezugsfrei ab | sofort |
| Zimmer | 9 |
| Schlafzimmer | 6 |
| Badezimmer | 3 |
| Anzahl Garage/Stellplatz | 11 |
Kosten
| Kaufpreis |
545.000 € |
|---|---|
| Provision |
3.57 % inkl. gesetzl. MwSt. |
Finanzierungsrechner:
Kaufpreis:
600.000 €
Eigenkapital:
600.000 €
Monatliche Rate
0 €
Effektiver Jahreszins
0 %
Sollzinsbindung
10 Jahre
Bausubstanz & Energieausweis
| Baujahr | 1900 |
|---|---|
| Letzte Sanierung | 2024 |
| Objektzustand | Modernisiert |
| Heizungsart | Zentralheizung |
| Wesentliche Energieträger | Öl |
| Energieausweis | liegt vor |
| Energieausweistyp | Bedarfsausweis |
| Energieverbrauchskennwert | 149,0 kWh/(m²*a) |
| Energieeffizienzklasse | E |
149,0
kWh/(m²*a)
Energieeffizienzklasse E
- A+
- A
- B
- C
- D
- E
- F
- G
- H
- 0
- 25
- 50
- 75
- 100
- 125
- 150
- 175
- 200
- 225
- >250
Beschreibung des Objekts
Ausstattung
Laminatböden
Niedrigenergie-Heizung von 2014
Einbauküchen
zusätzlich Ofenheizung möglich
Enthärtungsanlage
Wasserleitungen in Edelstahl
Teilunterkellert
Lage
Allmannsweiler ist eine charmante, ländlich geprägte Gemeinde im Herzen Oberschwabens und bietet eine Wohnlage, die Ruhe, Natur und Lebensqualität ideal miteinander verbindet. Das Dorf überzeugt durch seinen freundlichen, überschaubaren Charakter und eine Umgebung, die geprägt ist von weitläufigen Feldern, sanften Hügeln und typisch oberschwäbischer Landschaftsidylle.
Trotz der ruhigen Lage genießt man hier eine gute Anbindung an die umliegenden Ortschaften und Städte. Einkaufsmöglichkeiten, Schulen, Ärzte und weitere Einrichtungen des täglichen Bedarfs sind in den benachbarten Gemeinden schnell erreichbar. Durch die Nähe zu regionalen Verkehrsachsen sind auch Pendler gut angebunden.
Besonders attraktiv ist die hohe Freizeit- und Erholungsqualität. Wander- und Radwege beginnen praktisch vor der Haustür, und die naturnahe Umgebung lädt zu vielfältigen Aktivitäten im Freien ein. Der nahegelegene Federsee, eines der bekanntesten Natur- und Vogelschutzgebiete der Region, erweitert die Naherholungs-möglichkeiten und macht die Lage zusätzlich reizvoll.
Allmannsweiler verbindet somit die Vorteile eines ruhigen, entspannten Wohnortes mit einer praktischen Nähe zu allem, was man für den Alltag benötigt – ideal für Menschen, die naturnah leben möchten, ohne auf Komfort verzichten zu müssen.
Sonstige Angaben
Der Makler-Vertrag mit uns kommt durch die Beauftragung der Maklertätigkeit in Textform (z.B. E-Mail mit Bestätigung der gewollten Inanspruchnahme oder Unterschrift des Objektnachweises) zustande. Die Höhe der Courtage richtet sich nach den ab dem 23.12.2020 in Kraft getretenen gesetzlichen Regelungen zur Teilung der Maklercourtage. Hiernach wird die Courtage regelmäßig für beide Parteien (Eigentümer und Käufer) jeweils in Höhe von 3 % zuzüglich Umsatzsteuer in jeweils geltender Höhe, derzeit also insgesamt 3,57 % des Kaufpreises einschließlich Umsatzsteuer bei notariellem Vertragsabschluss verdient und fällig. Die Höhe der Bruttocourtage unterliegt einer Anpassung bei Steuersatzänderung. Grunderwerbssteuer, Notar- und Gerichtskosten trägt der Käufer.
Grundriss
Erdgeschoß
>
>
Obergeschoß
>
>
Dachgeschoß 1
>
>
Dachgeschoß 2
>
>
Adresse
88348 Allmannsweiler
Interessante Orte
Preis- und Lageinformationen
Preistrend für Bestandsimmobilien in Allmannsweiler