Sie haben ein stilles Gewerbe oder planen, ein stilles Gewerbe in Ihrem Haus anzumelden?
- Randgrundstück
- Massives ROSTOW-Qualitätshaus
- individuelle Hausplanung und Gestaltungsmöglichkeiten
- über 29 Jahre Bauerfahrung
- mehr als 3.100 Massiv-Häuser gebaut
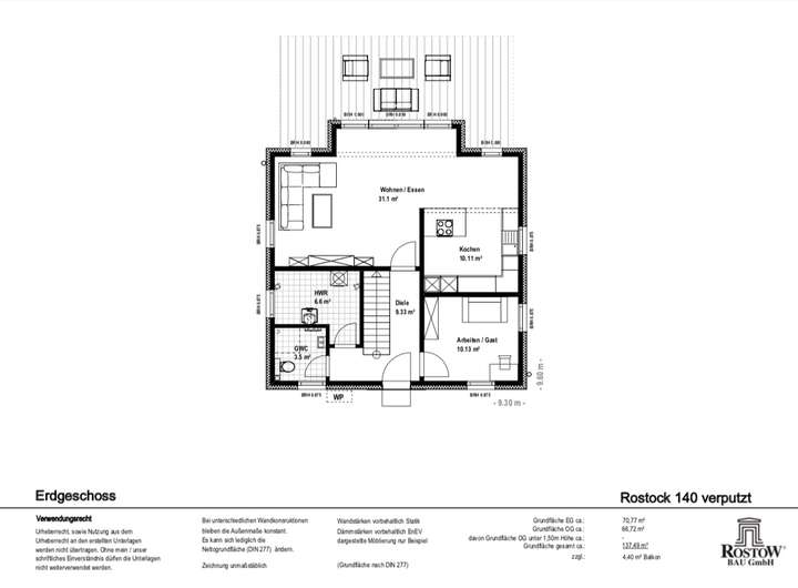
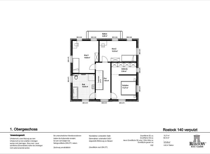
Die offerierte ROSTOW-Stadtvilla Rostock 140 ist nur ein Beispiel für eine mögliche Bebauung. Auch andere Haustypen können auf dem Grundstück errichtet werden.
www.rostow-massivhaus.de
Wohnen und Arbeiten in Sievershagen/ Lambrechtshagen
18069 Lambrechtshagen
Die vollständige Adresse der Immobilie erhalten Sie vom Anbieter.
Auf Karte anzeigen
Die vollständige Adresse der Immobilie erhalten Sie vom Anbieter.
Finanzierungszertifikat
In nur zwei Minuten zu Ihrem persönlichen Finanzierungszertifkat.
Infos
| Haustyp | Einfamilienhaus |
|---|---|
| Etagenzahl | 2 |
| Wohnfläche ca. | 138 m2 |
| Nutzfläche | 4 m2 |
| Grundstücksfläche | 579 m2 |
| Bezugsfrei ab | 2026 |
| Zimmer | 5 |
| Schlafzimmer | 4 |
| Badezimmer | 2 |
Kosten
| Kaufpreis |
528.465 € |
|---|---|
| Provision | Nein |
Finanzierungsrechner:
Kaufpreis:
600.000 €
Eigenkapital:
600.000 €
Monatliche Rate
0 €
Effektiver Jahreszins
0 %
Sollzinsbindung
10 Jahre
Bausubstanz & Energieausweis
| Baujahr | 2026 |
|---|---|
| Bauphase | Haus in Planung (projektiert) |
| Objektzustand | Erstbezug |
| Qualität der Austattung | Gehoben |
| Heizungsart | Wärmepumpe |
| Wesentliche Energieträger | Umweltwärme |
| Energieausweis | liegt zur Besichtigung vor |
Beschreibung des Objekts
Ausstattung
- Bodenplatte
- alle Wände massiv
- umweltschonende Wärmepumpe
- Fußbodenheizung
- bodenebene Dusche
- Alu Rollläden
und vieles mehr...
Lage
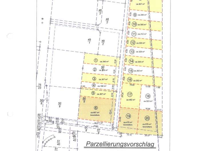
Die ROSTOW Bau GmbH bietet Ihnen die Möglichkeit, "Wohnen und Gewerbe" zusammen, in einem Neubauprojekt, in bester Lage zu verwirklichen. Es handelt sich um ein kleines Neubaugebiet in Sievershagen direkt vor den Toren Rostocks.
Sonstige Angaben
Kaufpreis inklusive Grundstück zzgl. Kaufneben- und Baunebenkosten.
Irrtümer, Änderungen und Zwischenverkauf bleiben vorbehalten!
Weitere Dokumente
Blähton_FlyerRostow Info Flyer
ROSTOW Flyer ROSTOCK faltbar
Parzellierung Sievershagen
Grundriss
Rostock 140_EG
>
>
Rostock 140_OG
>
>
Adresse
18069 Lambrechtshagen
Interessante Orte
Preis- und Lageinformationen
Preistrend für Bestandsimmobilien in Lambrechtshagen