Großzügiges Wohnhaus mit zwei Einheiten, Hof, Garage, Garten und Ausbaupotenzial
Dieses Wohnhaus mit ehemaliger Gaststätte präsentiert sich als großzügiges und solide errichtetes Gebäude mit Verblendmauerwerk aus roten Ziegeln . Das zweigeschossige Haupthaus mit Satteldach wird durch einen rückwärtigen, eingeschossigen Anbau ergänzt, der die Wohn- und Nutzflächen sinnvoll erweitert und dem Objekt einen vielseitigen Charakter verleiht.
Aktuell ist das Haus in zwei Wohneinheiten gegliedert: eine Wohnung im Erdgeschoss mit ca. 66 m² Wohnfläche sowie eine weitere Einheit im Dachgeschoss mit ca. 77 m². Die Aufteilung ermöglicht ein komfortables Mehrgenerationenwohnen mit getrennten Wohneinheiten.
Straßenseitig überzeugt das Haus durch ein gepflegtes Erscheinungsbild mit klaren Linien, modernisierten Fenstern und einem hell gestalteten Eingangsbereich. Ein Erker mit großflächigen Fenstern sorgt im Inneren für eine angenehme Belichtung. Die großzügig gepflasterte Hoffläche bietet komfortable Parkmöglichkeiten direkt am Haus.
Ehemalige Gaststätte mit vielseitigen Nutzungsperspektiven
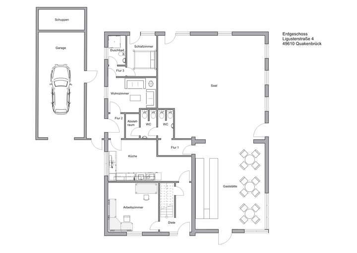
Im rechten Bereich des Erdgeschosses befinden sich die Räumlichkeiten der ehemaligen Gaststätte.
Mit ihrem separaten Eingang, dem großzügigen Schnitt und einem weitläufigen Saal bieten sie die ideale Voraussetzung für den Ausbau zu einer weitläufigen, repräsentativen Wohnung. Ob modernes Loft, stilvolles Homeoffice oder eine Kombination aus Wohnen und Arbeiten – hier eröffnen sich vielfältige Gestaltungsmöglichkeiten
Erdgeschosswohnung mit Gartenanbindung
Die links gelegene 3-Zimmer-Wohnung im Erdgeschoss verfügt über einen eigenen Eingang und ist gut geeignet für Singles, Paare oder als barrierearme Wohneinheit. Eine freundliche Diele erschließt die Räume, von der aus ein separates Arbeitszimmer erreichbar ist – gut geeignet als Homeoffice oder Rückzugsraum.
Über die Diele gelangt man sowohl zur Treppe ins Dachgeschoss als auch in den Keller. Am Ende öffnet sich der Bereich zur geräumigen Küche, die in den Flur des Nebeneingangs übergeht. Dieser ermöglicht einen direkten Zugang zur angrenzenden Garage und sorgt für kurze Wege im Alltag.
Vom zentralen Flur aus sind das Wohnzimmer sowie der hintere Bereich der Wohnung mit Duschbad und Schlafzimmer erreichbar. Das Schlafzimmer bietet einen direkten Zugang zum Garten und zu einer geschützten Terrasse – ein privater Außenbereich für entspannte Stunden im Freien.
Familienfreundliche Dachgeschosswohnung
Über die zentrale Treppe erreicht man die 4-Zimmer-Wohnung im Dachgeschoss. Der funktionale Grundriss eignet sich besonders für Familien. Ein zentraler Flur verbindet alle Räume miteinander: Schlafzimmer, der helle Wohn- und Essbereich mit Küche sowie das Badezimmer sind von hier aus bequem zugänglich.
Außenbereiche und Nebengebäude
Abgerundet wird das Angebot durch eine geräumige Garage mit zusätzlichem Stauraum, einen praktischen Schuppen für Gartengeräte und Fahrräder sowie eine überdachte Terrasse mit gemauertem Kamin. Dieser geschützte Bereich bietet Raum für gesellige Stunden und erweitert den Wohnkomfort deutlich.
Diese Immobilie präsentiert sich als vielseitig nutzbares Wohnhaus mit großzügigen Außenflächen und attraktiven Gestaltungsmöglichkeiten. Sie eignet sich sowohl als Mehrgenerationenhaus, als Familienimmobilie als auch zur Verbindung von Wohnen und Arbeiten.
Großzügiges Wohnhaus mit zwei Einheiten und ehemaliger Gaststätte in ruhiger Lage
49610 Quakenbrück
Die vollständige Adresse der Immobilie erhalten Sie vom Anbieter.
Auf Karte anzeigen
Die vollständige Adresse der Immobilie erhalten Sie vom Anbieter.
Finanzierungszertifikat
In nur zwei Minuten zu Ihrem persönlichen Finanzierungszertifkat.
Infos
| Haustyp | Mehrfamilienhaus |
|---|---|
| Etagenzahl | 1 |
| Wohnfläche ca. | 143 m2 |
| Nutzfläche | 122 m2 |
| Grundstücksfläche | 710 m2 |
| Zimmer | 7 |
| Schlafzimmer | 4 |
| Badezimmer | 2 |
| Garage/Stellplatz | Außenstellplatz |
| Anzahl Garage/Stellplatz | 7 |
Kosten
| Kaufpreis |
175.000 € |
|---|---|
| Provision |
3,57 % inkl. MwSt. |
Finanzierungsrechner:
Kaufpreis:
600.000 €
Eigenkapital:
600.000 €
Monatliche Rate
0 €
Effektiver Jahreszins
0 %
Sollzinsbindung
10 Jahre
Bausubstanz & Energieausweis
| Baujahr | 1950 |
|---|---|
| Qualität der Austattung | Normal |
| Wesentliche Energieträger | Gas |
| Energieausweis | liegt zur Besichtigung vor |
Beschreibung des Objekts
Ausstattung
• Grundstücksfläche: ca. 710 m²
• Wohnfläche: ca. 143 m²
• Nutzfläche: ca. 122 m²
• Baujahr: ca. 1960
• Massivbau
• Teilunterkellert
• Dachgeschoss voll ausgebaut
• Bodenbeläge Fliesen und Laminat
• Gaszentralheizung
• Garage und 5 Stellplätze vor dem Haus
• Schuppen hinter der Garage für mehr Stauraum
Lage
Quakenbrück liegt im Landkreis Osnabrück und ist Verwaltungssitz der Samtgemeinde Artland. Die Stadt verbindet eine gewachsene Struktur mit einer soliden Infrastruktur und bietet eine ausgewogene Mischung aus ruhigem Wohnen und guter Erreichbarkeit.
Das Objekt befindet sich in einem allgemeinen Wohngebiet am nordöstlichen Stadtrand von Quakenbrück. Die Umgebung ist überwiegend durch Wohnbebauung geprägt und zeichnet sich durch ein ruhiges, angenehmes Wohnumfeld aus – ideal für alle, die entspanntes Wohnen abseits des innerstädtischen Trubels schätzen.
Als Schulstadt verfügt Quakenbrück über ein breites Bildungsangebot von Kindergärten bis hin zu weiterführenden Schulen und Fachschulen. Einkaufsmöglichkeiten für den täglichen Bedarf, ärztliche Versorgung, Apotheken sowie ein Krankenhaus mit mehreren Fachabteilungen sind im Stadtgebiet vorhanden und gut erreichbar.
Die Verkehrsanbindung ist günstig: Über die B 68 bestehen Anschlüsse an die Autobahnen A 1 und A 29. Der Bahnhof Quakenbrück bietet regelmäßige Zugverbindungen, unter anderem nach Osnabrück; eine Bushaltestelle befindet sich in fußläufiger Entfernung.
Insgesamt verbindet die Lage ruhiges Wohnen mit einer guten Erreichbarkeit und schafft damit ideale Voraussetzungen für langfristiges, familienorientiertes Wohnen in angenehmer Umgebung. Ein vielseitiges Freizeit- und Vereinsangebot sowie kulturelle Veranstaltungen ergänzen die Attraktivität des Wohnstandorts.
Sonstige Angaben
++ Gerne senden wir Ihnen auf Anfrage unser interaktives Exposé zu. Bitte beachten Sie, dass es möglicherweise im Spam-Ordner landen könnte – schauen Sie dort nach, falls es nicht in Ihrem Posteingang zu finden ist. ++
Ausführliche Detailinformationen erhalten Sie bei einer persönlichen Hausbesichtigung.
Besichtigungstermine werden ausschließlich über unser Büro vereinbart. Sie erreichen uns jederzeit unter 05731 - 55 99 87 0 – wir freuen uns auf Ihren Anruf!
Rechtliche Hinweise
Alle Angaben in diesem Exposé wurden nach bestem Wissen auf Basis der Informationen unseres Auftraggebers erstellt. Eine Haftung für Richtigkeit, Vollständigkeit und Aktualität kann nicht übernommen werden. Irrtum und Zwischenverkauf bleiben vorbehalten.
Beim Abschluss eines Kaufvertrages wird eine Vermittlungs-/Nachweisprovision in Höhe von 3,57 % inklusive 19 % Mehrwertsteuer auf den Kaufpreis vom Käufer fällig.
Finanzierungsberatung – individuell & zuverlässig
Beim Kauf der eigenen vier Wände ist eine maßgeschneiderte Finanzierung entscheidend. Wir unterstützen Sie gerne und helfen Ihnen, das passende Finanzierungskonzept zu finden.
Dank unserer Zusammenarbeit mit renommierten regionalen und überregionalen Banken können wir Ihnen eine Finanzierungslösung anbieten, die genau auf Ihre Bedürfnisse abgestimmt ist.
Kostenlose Wertermittlung – Ihr Vorteil als Eigentümer
Sie überlegen, Ihre Immobilie zu verkaufen? Nutzen Sie unseren kostenlosen Service für Eigentümer:
• Marktgerechte Wertermittlung Ihrer Immobilie
• Individuelle Verkaufsstrategie für Ihr Objekt
• Persönliche Betreuung bis zum erfolgreichen Abschluss
Kontaktieren Sie uns unverbindlich – wir stehen Ihnen mit unserer Erfahrung und Marktkenntnis gerne zur Seite!
500 € Tippgeber-Provision: Empfehlen & profitieren!
Sie kennen jemanden, der eine Immobilie verkaufen möchte? Empfehlen Sie uns weiter! Sobald durch Ihre Empfehlung ein erfolgreicher Verkauf zustande kommt, erhalten Sie eine Tippgeber-Provision von 500 €.
Einfach die Kontaktdaten des Verkäufers weitergeben – wir übernehmen den Rest!
Grundriss
Erdgeschoss - aktueller Stand
>
>
Dachgeschoss - aktueller Stand
>
>
Adresse
49610 Quakenbrück
Interessante Orte
Preis- und Lageinformationen
Preistrend für Bestandsimmobilien in Quakenbrück