Moderne Doppelhaushälfte zur Miete – Erstbezug in beliebter Wartenberger Wohngegend!
Diese hochwertig gebaute Doppelhaushälfte aus dem Jahr 2025 bietet mit ca. 170m² Wohnfläche auf einem ca. 476m² großen Grundstück ein ideales Zuhause für Familien. Es handelt sich um einen Erstbezug, sodass Sie in ein modernes und ungenutztes Wohnumfeld einziehen können.
Die Immobilie überzeugt durch ihre massive Bauweise und eine durchdachte Raumaufteilung mit insgesamt sechs Zimmern, darunter drei Schlafzimmer, ein Büro, ein Gäste- oder Hobbyzimmer/ Hobbyraum und ein großer Wohn- und Essbereich. Der großzügige, offen gestaltete Wohn- und Essbereich mit direktem Zugang zur Südterrasse schafft eine helle und freundliche Wohnatmosphäre. Große Fensterfronten sorgen zusätzlich für viel Tageslicht.
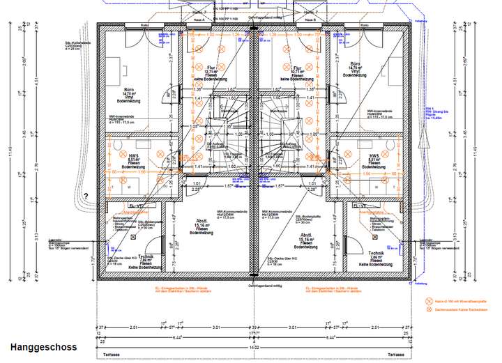
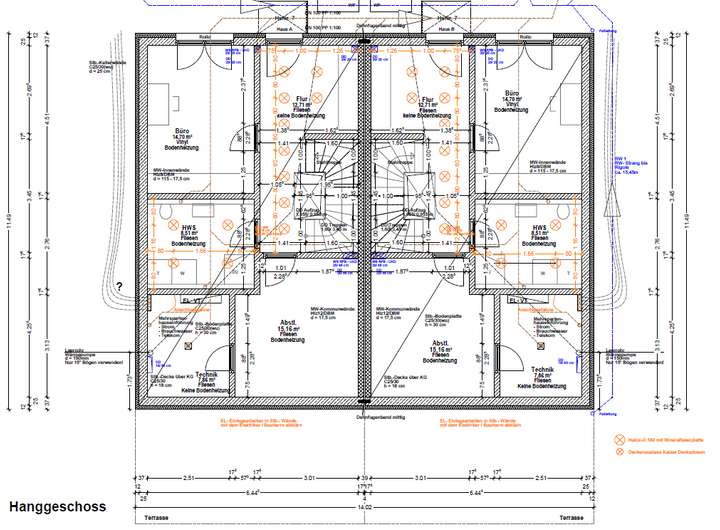
Durch den geräumigen Eingangsbereich gelangen wir direkt in das Hanggeschoss. Dort befindet sich ein Büro, ein Hauswirtschaftsraum/ Badezimmer, der Technikraum sowie ein großer Hobbyraum/ Abstellraum.
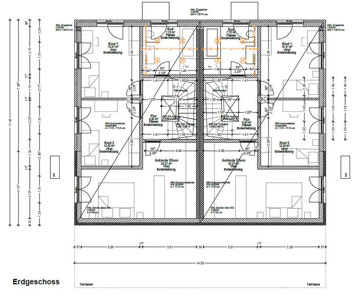
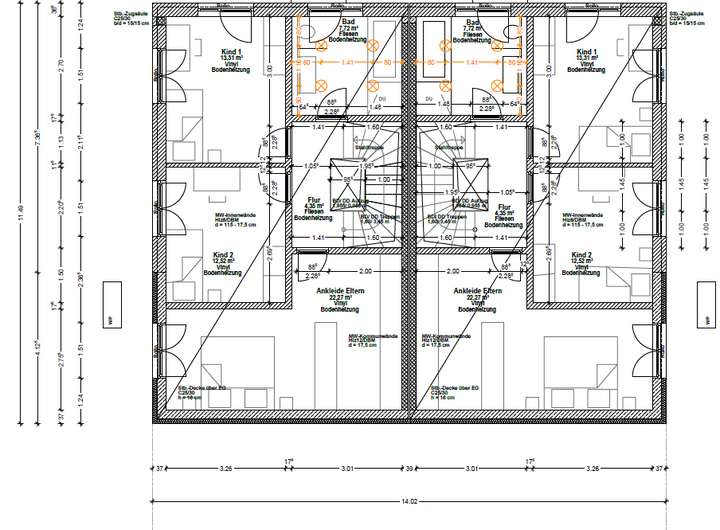
Über das Treppenhaus geht es in das Erdgeschoss. Auf dieser Ebene befinden sich die drei Schlafzimmer sowie das Badezimmer ausgestattet mit Badewanne, Dusche, Toilette und Fenster.
Im Obergeschoss befindet sich der große Wohn- und Essbereich, der durch die Weitläufigkeit und die Helligkeit dank der großen Fensterfronten begeistert. Der direkte Zugang zum Garten und zur Terrasse sorgt für eine angenehme Wohnatmosphäre.
Zudem befinden sich auf dieser Ebene ein Abstellraum sowie ein Gäste-WC.
Ausstattungshighlights:
- Moderne Luft-Erdwärmepumpe für umweltfreundliches Heizen
- Fußbodenheizung in allen Räumen
- Kaminanschluss vorhanden
- Elektrische Rollläden
- Dezentrale Lüftungsanlage
- Kabel-TV und Internetanschluss
- Große Garage plus zwei Außenstellplätze
- Südlich ausgerichteter Garten mit Terrasse
Die Immobilie wird ohne Einbauküche angeboten – somit haben Sie die Möglichkeit, Ihre Küche ganz nach Ihren eigenen Vorstellungen zu gestalten.
Die ruhige Lage bietet viel Freiraum für Kinder und Erholung im Grünen. Gleichzeitig profitieren Sie von einer sehr guten Infrastruktur: Einkaufsmöglichkeiten, Schulen und öffentliche Verkehrsanbindungen befinden sich in der Nähe.
Fazit:
Diese Doppelhaushälfte verbindet modernes, energieeffizientes Wohnen mit einer familienfreundlichen Lage – perfekt für alle, die auf der Suche nach einem neuen Zuhause mit Komfort und Stil sind.
Neubau in Wartenberg - Attraktive Doppelhaushälfte (rechts) in begehrter Lage zu vermieten!
85456 Wartenberg
Die vollständige Adresse der Immobilie erhalten Sie vom Anbieter.
Auf Karte anzeigen
Die vollständige Adresse der Immobilie erhalten Sie vom Anbieter.
Infos
| Haustyp | Doppelhaushaelfte |
|---|---|
| Wohnfläche ca. | 170 m2 |
| Grundstücksfläche | 476 m2 |
| Bezugsfrei ab | Januar 2026 |
| Zimmer | 6 |
| Schlafzimmer | 3 |
| Badezimmer | 2 |
| Garage/Stellplatz | Garage |
Kosten
| Kaltmiete |
2.300 € |
|---|---|
| Nebenkosten | + 200 € |
| Heizkosten | in Nebenkosten enthalten |
| Gesamtmiete | 2.500 € |
| Kaution o. Genossenschaftsanteile | 3 Monatskaltmieten |
Weiter mieten oder doch kaufen?
Wer in Miete wohnt, überweist dem Vermieter im Laufe der Jahre hohe Summen, die sich
auch in die eigenen vier Wände investieren lassen könnten.
Bausubstanz & Energieausweis
| Baujahr | 2025 |
|---|---|
| Objektzustand | Erstbezug |
Beschreibung des Objekts
Ausstattung
- Moderne Luft-Erdwärmepumpe für umweltfreundliches Heizen
- Fußbodenheizung in allen Räumen
- Elektrische Rollläden
- Kaminanschluss vorhanden
- Dezentrale Lüftungsanlage
- Kabel-TV und Internetanschluss
- Große Garage plus zwei Außenstellplätze (Preis dafür in Kaltmiete enthalten)
- Südlich ausgerichteter Garten mit Terrasse
- Die Doppelhaushälfte wird ohne Eibauküche angeboten
Lage
Die angebotene Doppelhaushälfte befindet sich in ruhiger und familienfreundlicher Lage im Dr.-Selmaier-Ring in Wartenberg, einem charmanten Markt im oberbayerischen Landkreis Erding. Das Haus liegt in einer gepflegten Wohnsiedlung mit überwiegend Einzel- und Doppelhäusern, die sich durch großzügige Gärten, wenig Verkehr und ein angenehmes nachbarschaftliches Umfeld auszeichnet. Die Straße selbst ist als verkehrsberuhigte Zone ausgewiesen, was nicht nur zur Ruhe beiträgt, sondern auch ein sicheres Umfeld für Kinder schafft.
Wartenberg bietet eine hervorragende Infrastruktur für den Alltag. Einkaufsmöglichkeiten, Apotheken, Bäckereien und gastronomische Angebote sind innerhalb weniger Minuten erreichbar. Die medizinische Versorgung ist durch die nahegelegene Klinik Wartenberg – nur wenige Gehminuten vom Haus entfernt – ausgezeichnet. Auch für Familien mit Kindern ist die Lage ideal: Kindergärten und Schulen befinden sich in gut erreichbarer Nähe. Darüber hinaus laden zahlreiche Spielplätze sowie Sport- und Freizeitmöglichkeiten in der Umgebung zu Aktivitäten im Freien ein.
Die Anbindung an den öffentlichen Nahverkehr ist gut: Eine Bushaltestelle befindet sich in fußläufiger Entfernung und bietet regelmäßige Verbindungen nach Erding und in umliegende Orte. Mit dem Auto erreicht man die Stadt Erding in etwa 15 Minuten, der Flughafen München ist in ca. 20 Minuten erreichbar. Die Münchner Innenstadt liegt rund 45 Minuten entfernt, je nach Verkehrsanbindung.
Die Umgebung von Wartenberg ist landschaftlich reizvoll und geprägt von einer Kombination aus sanften Hügeln, Feldern und Wäldern, die zu Spaziergängen, Radtouren oder einfach zum Entspannen in der Natur einladen. Insgesamt bietet die Lage eine gelungene Kombination aus naturnahem Wohnen, guter Infrastruktur und angenehmer Ruhe – ideal für alle, die ein entspanntes Zuhause mit guter Erreichbarkeit suchen.
Grundriss
Ansicht Nord
>
>
Ansicht Ost
>
>
Ansicht West
>
>
Übersicht Doppelhaushälften
>
>
Erdgeschoss
>
>
Hanggeschoss
>
>
Obergeschoss
>
>
Adresse
85456 Wartenberg
Interessante Orte
Preis- und Lageinformationen
Preistrend für Bestandsimmobilien in Wartenberg