Das EVOLUTION 136 Fertighaus von Bien-Zenker ist ein architektonisches Meisterwerk, das Ihren individuellen Wohntraum präzise und liebevoll umsetzt. Dieses moderne Einfamilienhaus vereint intelligente Raumgestaltung mit höchster Funktionalität und zeitlosem Design.
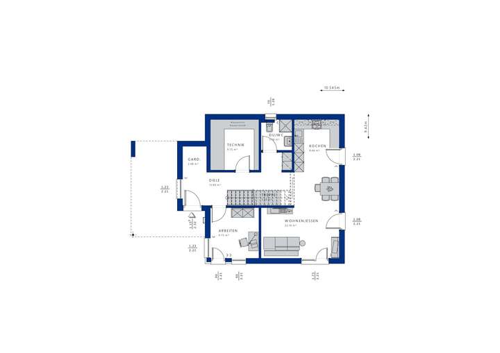
Die Architektur des Hauses überzeugt durch eine durchdachte Raumaufteilung über zwei Etagen, die maximalen Wohnkomfort und Flexibilität bietet. Mit einer Wohnfläche von 140 m² schafft das Haus einen perfekten Rahmen für Familienleben und individuelle Entfaltung. Die geradläufige Treppe wird zum architektonischen Highlight, das nicht nur verbindet, sondern auch gestalterische Akzente setzt.
Bien-Zenker steht für mehr als nur Hausbau - für uns ist jedes Zuhause eine einzigartige Lebensgeschichte. Mit über 115 Jahren Erfahrung und 80.000 gebauten Häusern verwandeln wir Ihre persönliche Vision in ein Zuhause, das Ihre Bedürfnisse vollkommen erfüllt. Unsere Leidenschaft für qualitativ hochwertige, zukunftsorientierte Fertighäuser macht jedes Projekt zu einem Unikat.
Grundrisse und Abbildungen können Extras zeigen. Flächenangaben nach DIN 277.
Bien-Zenker: Ihr individuelles Wunschhaus im Hamburger Stadtteil - Hummelsbüttel
22339 Hamburg
Die vollständige Adresse der Immobilie erhalten Sie vom Anbieter.
Auf Karte anzeigen
Die vollständige Adresse der Immobilie erhalten Sie vom Anbieter.
Finanzierungszertifikat
In nur zwei Minuten zu Ihrem persönlichen Finanzierungszertifkat.
Infos
| Haustyp | Einfamilienhaus |
|---|---|
| Wohnfläche ca. | 140 m2 |
| Grundstücksfläche | 1.000 m2 |
| Zimmer | 5 |
| Schlafzimmer | 3 |
| Badezimmer | 2 |
Kosten
| Kaufpreis |
1.325.470 € |
|---|
Finanzierungsrechner:
Kaufpreis:
600.000 €
Eigenkapital:
600.000 €
Monatliche Rate
0 €
Effektiver Jahreszins
0 %
Sollzinsbindung
10 Jahre
Bausubstanz & Energieausweis
| Baujahr | unbekannt |
|---|---|
| Bauphase | Haus in Planung (projektiert) |
| Qualität der Austattung | Gehoben |
Beschreibung des Objekts
Ausstattung
Das EVOLUTION 136 bietet Ihnen eine durchdachte Raumaufteilung, die Komfort und Funktionalität perfekt vereint. Mit drei Schlafzimmern und zwei Badezimmern schafft das Haus ideale Voraussetzungen für Familienleben und individuelle Rückzugsmöglichkeiten. Die großzügige Raumaufteilung ermöglicht flexible Nutzungskonzepte, die sich optimal an Ihre Lebenssituation anpassen.
Besondere Komfortdetails machen dieses Zuhause zum Highlight. Lichtdurchflutete Räume, großzügige Fensterfronten und durchdachte Raumverbindungen schaffen eine einladende Atmosphäre. Die intelligente Grundrissgestaltung bietet Raum für Privatsphäre und gemeinsames Erleben - vom offenen Wohnbereich bis zu individuellen Rückzugszonen.
Die Ausbaustufe Schlüsselfertig ist die komfortabelste Lösung für Ihre Bauherren-Träume. Bien-Zenker übernimmt den kompletten Hausbau von Fundament bis zur letzten Schraube. Sie erhalten ein vollständig fertig eingerichtetes Zuhause, ohne sich um Baustellenkoordination oder Detailplanung kümmern zu müssen. Maximaler Komfort, minimaler Stress - so wird Ihr Hausbauprojekt zum Genuss.
Lage
Ihr neues Zuhause in Hamburg-Hummelsbüttel bietet eine hervorragende Infrastruktur und Anbindung. Die Hansestadt überzeugt durch zahlreiche Bildungseinrichtungen, erstklassige Gesundheitsversorgung und vielfältige Einkaufsmöglichkeiten.
Die Verkehrsanbindung ist optimal: Sowohl der öffentliche Nahverkehr mit seinen dichten Busnetzen und U-Bahn-Linien als auch die umliegenden Autobahnen (A1, A7) ermöglichen schnelle Verbindungen in die Innenstadt und bundesweit. Zahlreiche Bildungseinrichtungen wie Universitäten, Schulen und Kindergärten befinden sich in unmittelbarer Nähe.
Freizeitmöglichkeiten sind vielfältig: Von Kultureinrichtungen über Naturparks bis zu Einkaufszentren bietet Hamburg eine Fülle von Optionen für Ihre Freizeitgestaltung. Die Nähe zur Elbe, zahlreiche Grünflächen und das vielseitige Kulturangebot machen Hamburg zu einem lebenswerten Standort mit höchster Lebensqualität.
Sonstige Angaben
Der hier angegebene Wert zur zu zahlenden Grunderwerbsteuer ist ein vom Portalbetreiber automatisierter Wert, der nicht der Realität entspricht, da die Grunderwerbsteuer nur auf den im Gesamtangebot einberechneten Grundstückswert berechnet wird.
Inkl. PV - Anlage und Speicher für die eigene Stromversorgung
Auf Wunsch können alle Kriterien für eine KFN - QNG Förderung erfüllt werden.
Hausabbildungen mit Sonderwünschen
Grundrisse können individuell geändert und angepasst werden
Auf Wunsch ist ein Keller möglich
Adresse
22339 Hamburg
Interessante Orte
Preis- und Lageinformationen
Preistrend für Bestandsimmobilien in Hummelsbüttel
>