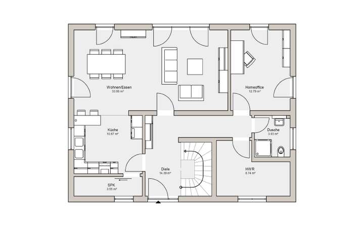
Willkommen zu Hause! Im Architektenhaus Taro inklusive Keller erwarten Sie 153 m voller Wohnkomfort. Das charmante Satteldachhaus bietet eine offene Küche mit angrenzender Speisekammer. Zudem schließt sich hier der offene Wohn-/Essbereich an mit über 30 m . Vollendet wird das Erdgeschoss mit einem Home-Office, einem Duschbad und dem Hauswirtschaftraum. Hier werden Träume wahr!
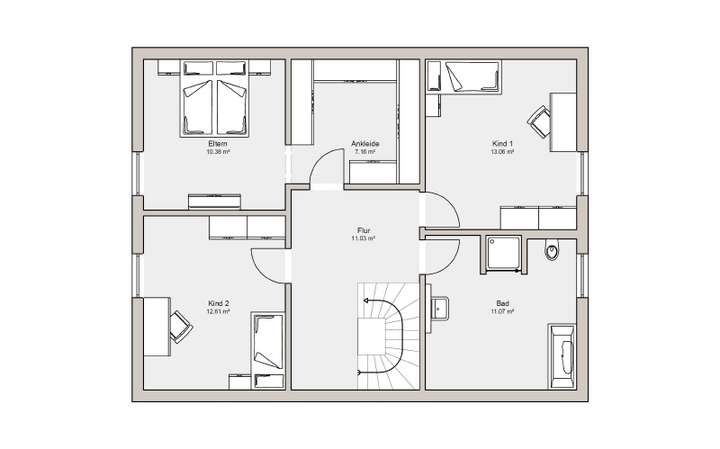
Das Dachgeschoss von Satteldachhaus Taro gestaltet sich ebenfalls großzügig - schon der Flur bietet Platz für eine Leseecke unter einem Dachfenster. Außerdem finden Sie hier zwei Kinderzimmmer, ein Elternschlafzimmer mit Ankleide und ein Familienbad.
Dieses Haus wird nach Ihren individuellen Wünschen geplant und ausgestattet!
Herzmomente im neuen Zuhause!
53545 Ockenfels
Die vollständige Adresse der Immobilie erhalten Sie vom Anbieter.
Auf Karte anzeigen
Die vollständige Adresse der Immobilie erhalten Sie vom Anbieter.
Finanzierungszertifikat
In nur zwei Minuten zu Ihrem persönlichen Finanzierungszertifkat.
Infos
| Haustyp | Einfamilienhaus |
|---|---|
| Wohnfläche ca. | 153 m2 |
| Grundstücksfläche | 350 m2 |
| Zimmer | 5 |
| Schlafzimmer | 3 |
| Badezimmer | 2 |
| Anzahl Garage/Stellplatz | 2 |
Kosten
| Kaufpreis |
575.100 € |
|---|---|
| Provision | Nein |
Finanzierungsrechner:
Kaufpreis:
600.000 €
Eigenkapital:
600.000 €
Monatliche Rate
0 €
Effektiver Jahreszins
0 %
Sollzinsbindung
10 Jahre
Bausubstanz & Energieausweis
| Baujahr | 2026 |
|---|---|
| Bauphase | Haus in Planung (projektiert) |
| Objektzustand | Erstbezug |
| Qualität der Austattung | Gehoben |
| Heizungsart | Wärmepumpe |
| Energieausweis | liegt vor |
| Energieausweistyp | Bedarfsausweis |
| Energieverbrauchskennwert | 13,2 kWh/(m²*a) |
| Energieeffizienzklasse | A+ |
13,2
kWh/(m²*a)
Energieeffizienzklasse A+
- A+
- A
- B
- C
- D
- E
- F
- G
- H
- 0
- 25
- 50
- 75
- 100
- 125
- 150
- 175
- 200
- 225
- >250
Beschreibung des Objekts
Ausstattung
5 Zimmer, offene Küche, Diele, Flur, Bad, Dusche, Ankleide, Speisekammer, Hauswirtschaftsraum, Keller
Das gezeigte Traumhaus im Überblick:
+ Massivhaus im Sinne der Ausstattungsbeschreibung "Nestbau"
+ Zukunftsorientierte Energieausstattung in Form einer Luft-Wasser-Wärmepumpe und Fußbodenheizung
Beste Markenausstattung in jedem Kern-Haus:
+ Fenster mit 3-Scheiben-Wärmeschutzverglasung und elektrischen Rollläden
+ Dacheindeckung mit Betondachsteinen von Braas mit "Star-Oberfläche"
+ Hochwertiger Kunstharz-Außenputz
+ Badausstattung mit Badewanne und flacher Duschwanne
+ Fliesen in Bad und WC
+ Haustür mit Sicherheitsverriegelung
+ Innentüren der Marke Herholz mit Edelstahldrückern
+ Stahl-Holz-Treppe mit individueller Farbgestaltungsmöglichkeit
+ Elektroausstattung inklusive Klingelanlage
+ Rauchmelder für Ihre Sicherheit
+ Einsatz regionaler Handwerksbetriebe
+ Blower-Door-Test
Lage
Das 350 qm große Baugrundstück befindet sich in dem idyllischen Ort Ockenfels, neben Linz im Naturpark Rhein-Westerwald.
Die in den malerischen Hängen des Rheintals gelegene Gemeinde gehört dem Landkreis Neuwied und zur Verbandsgemeinde Linz am Rhein an. Erreichbar ist Ockenfels über die B42, welche gute Verkehrsanbindungen an die umliegenden Ballungszentren, wie Köln/Bonn oder Koblenz/Neuwied bietet. Die nächste Autobahnanschlussstelle ist Bad Honnef/Linz an der A 3. Die Hauptzufahrt erfolgt von Linz am Rhein über die K11.
Die Jüngsten von Ockenfels können den ortseigenen Kindergarten "Pusteblume" besuchen. Zahlreiche Gewerbetreibende haben sich angesiedelt.
Naturnahes Leben mit einzigartiger Aussicht auf das schöne Rheintal und Mündung zur Ahr machen Ockenfels zu einer ganz besonderen liebenswerten Wohngemeinde.
Sonstige Angaben
Kern-Haus baut individuelle und massive Architektenhäuser zu einem attraktiven Preis-Leistungs-Verhältnis – und das bereits mit einer Erfahrung seit 1980. Die Kern-Haus AG ist ein deutscher, inhabergeführter Massivhausanbieter mit Sitz im rheinland-pfälzischen Ransbach-Baumbach. Kern-Haus setzt auf eine hohe Bauqualität der Handwerker und auf eine große Auswahl starker Marken. So verwendet Kern-Haus beim Bau Ihres Hauses nur hochwertige Markenprodukte renommierter Hersteller.
Preise und Auszeichnungen von Kern-Haus:
- German Brand Award in den Jahren 2018 und 2021
- Hausbau Design Award: Sieger in den Jahren 2017, 2018, 2019, 2020, 2021, 2022 und 2023
- Deutscher Traumhauspreis: Sieger in den Jahren 2014, 2015, 2016 und 2018 und Silber 2017, 2020 und 2021
- Mittelstandspreis "Top 100" in den Jahren 2014, 2016, 2018, 2020 und 2022
- German Design Award im Jahr 2018
Weitere Informationen
Der gezeigte Preis versteht sich inklusive Grundstück und exklusive der Baunebenkosten.
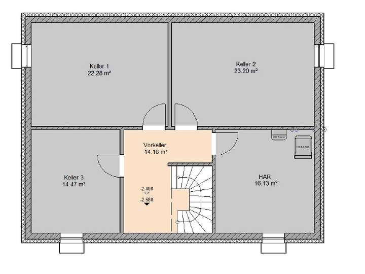
Grundriss
Grundriss Keller
>
>
Grundriss Erdgeschoss
>
>
Grundriss Dachgeschoss
>
>
Adresse
53545 Ockenfels
Interessante Orte
Preis- und Lageinformationen
Preistrend für Bestandsimmobilien in Ockenfels