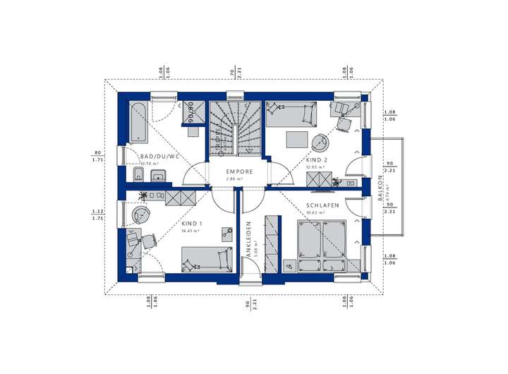
Willkommen in Ihrem zukünftigen Zuhause, dem EDITION 123 von Bien-Zenker. Dieses Haus beeindruckt nicht nur durch seine Architektur, sondern auch durch sein durchdachtes Konzept. Auf 130 m² Wohnfläche, verteilt auf zwei Etagen, erwarten Sie fünf lichtdurchflutete Zimmer, die perfekt miteinander harmonieren. Der großzügige Eingangsbereich mit einem einladenden Windfang führt in eine geräumige Diele, die den offenen Wohnbereich mit Küche und Essplatz verbindet. Diese Aufteilung fördert das Familienleben und ermöglicht gleichzeitig ungestörte Rückzugsorte. Im Dachgeschoss finden Sie Ihr Schlafzimmer mit praktischer Ankleide, zwei Kinderzimmer und ein modernes Familienbad - ideal für die Bedürfnisse einer jungen Familie. Jedes Detail wurde mit dem Ziel gestaltet, ein harmonisches und funktionales Wohnumfeld zu schaffen, das Lebensqualität und Privatsphäre in Einklang bringt.
Das EDITION 123 bietet Ihnen nicht nur Komfort, sondern auch zahlreiche Extras, die den Wohnalltag bereichern. Der zusätzliche Raum direkt hinter der Haustür kann als Homeoffice oder Multifunktionsraum genutzt werden, was besonders in der heutigen Zeit von großem Vorteil ist. Der helle Wohnbereich, der durch große Fensterfronten lichtdurchflutet wird, sorgt für ein einladendes Ambiente, während die offene Küche mit direktem Zugang zum Essbereich den perfekten Rahmen für gesellige Abende mit Familie und Freunden schafft.
Mit der Ausbaustufe "Schlüsselfertig" entscheiden Sie sich für eine stressfreie Bauweise. Bien-Zenker übernimmt den kompletten Hausbau samt Innenausbau für Sie, vom Fundament bis zur letzten Schraube. Sie brauchen sich um nichts zu kümmern und können einfach einziehen, sobald alles fertig ist. Diese Lösung spart Ihnen Zeit, Nerven und Planung - und lässt Ihnen Raum, die Vorfreude auf Ihr neues Zuhause zu genießen. Vertrauen Sie auf die Expertise von Bien-Zenker und erleben Sie, wie einfach der Weg ins eigene Heim sein kann.
Grundrisse und Abbildungen können Extras zeigen. Flächenangaben nach DIN 277.
Willkommen im Wunschhaus von Bien-Zenker: Ihr neues Zuhause wartet in Hamburg - Eidelstedt
22523 Hamburg
Die vollständige Adresse der Immobilie erhalten Sie vom Anbieter.
Auf Karte anzeigen
Die vollständige Adresse der Immobilie erhalten Sie vom Anbieter.
Finanzierungszertifikat
In nur zwei Minuten zu Ihrem persönlichen Finanzierungszertifkat.
Infos
| Haustyp | Einfamilienhaus |
|---|---|
| Wohnfläche ca. | 130 m2 |
| Grundstücksfläche | 850 m2 |
| Zimmer | 5 |
| Schlafzimmer | 3 |
| Badezimmer | 2 |
Kosten
| Kaufpreis |
998.700 € |
|---|
Finanzierungsrechner:
Kaufpreis:
600.000 €
Eigenkapital:
600.000 €
Monatliche Rate
0 €
Effektiver Jahreszins
0 %
Sollzinsbindung
10 Jahre
Bausubstanz & Energieausweis
| Baujahr | unbekannt |
|---|---|
| Bauphase | Haus in Planung (projektiert) |
| Qualität der Austattung | Gehoben |
Beschreibung des Objekts
Ausstattung
In Ihrem neuen Bien-Zenker Haus erwarten Sie durchdachte Ausstattungsdetails, die den Wohnkomfort auf ein neues Level heben. Die lichtdurchfluteten Räume sind nicht nur ästhetisch ansprechend, sondern schaffen auch eine angenehme Atmosphäre, die zum Entspannen einlädt. Die offene Küche mit modernsten Geräten wird zum Mittelpunkt Ihrer Familie, während der großzügige Essbereich genügend Platz für gesellige Abende bietet. Die Möglichkeit, das Homeoffice flexibel zu nutzen, sorgt dafür, dass Sie Arbeit und Privates optimal verbinden können.
Besonderheiten wie ein Balkon oder eine Terrasse können individuell gestaltet werden, um im Freien entspannen zu können. Stellen Sie sich vor, wie Sie an warmen Sommerabenden auf Ihrer Terrasse sitzen und den Tag ausklingen lassen. Auch ein Abstellraum zur praktischen Lagerung von Alltagsgegenständen ist bereits eingeplant, was den Wohnraum nicht nur aufwertet, sondern auch die Ordnung in Ihrem neuen Zuhause unterstützt.
Die Ausbaustufe "Schlüsselfertig" bietet Ihnen den Vorteil, dass alle Arbeiten durch Bien-Zenker professionell erledigt werden. Sie müssen sich um nichts kümmern, denn der gesamte Bauprozess wird von erfahrenen Fachleuten begleitet. Dies bedeutet für Sie einen reibungslosen Ablauf, der Ihnen Zeit und Stress spart. Sie ziehen einfach ein, sobald alles fertig ist - ein großer Vorteil in einer hektischen Zeit, der Ihnen den Weg ins neue Zuhause erleichtert.
Lage
Ihr zukünftiges Zuhause in Hamburg, im Stadtteil Eidelstedt, bietet Ihnen nicht nur eine hervorragende Anbindung an die Innenstadt, sondern auch eine Vielzahl an Freizeit-, Bildungs- und Gesundheitsangeboten in der unmittelbaren Umgebung. Die Stadt ist bekannt für ihre hohe Lebensqualität, die sich in den zahlreichen Parks, Spielplätzen und kulturellen Einrichtungen widerspiegelt. Schulen, Kindergärten und Einkaufsmöglichkeiten sind bequem erreichbar und bieten alles, was Sie für den Alltag benötigen.
Der öffentliche Nahverkehr ist in Hamburg hervorragend ausgebaut. Die U-Bahn- und Buslinien bringen Sie schnell und unkompliziert an Ihr Ziel, während die Autobahnanschlüsse für eine optimale Erreichbarkeit anderer Städte sorgen. Dies macht Hamburg zu einem idealen Standort für Familien und Berufstätige, die das urbane Leben mit der Natur verbinden möchten. Erleben Sie die Vorzüge eines Lebens in einer pulsierenden Metropole, während Sie gleichzeitig die Ruhe und den Raum genießen, den Ihr neues Bien-Zenker Haus bietet.
Sonstige Angaben
Der hier angegebene Wert zur zu zahlenden Grunderwerbsteuer ist ein vom Portalbetreiber automatisierter Wert, der nicht der Realität entspricht, da die Grunderwerbsteuer nur auf den im Gesamtangebot einberechneten Grundstückswert berechnet wird.
Inkl. PV - Anlage und Speicher für die eigene Stromversorgung
Auf Wunsch können alle Kriterien für eine KFN - QNG Förderung erfüllt werden.
Hausabbildungen mit Sonderwünschen
Grundrisse können individuell geändert und angepasst werden
Auf Wunsch ist ein Keller möglich
Adresse
22523 Hamburg
Interessante Orte
Preis- und Lageinformationen
Preistrend für Bestandsimmobilien in Eidelstedt
>
>