Das Objekt stammt aus dem Jahr 1900 und befindet sich in einer zentralen Lage von Berlin-Köpenick, unweit der Altstadt und in unmittelbarer Nähe zur Spree. Es wurde im Jahr 2020 aufgeteilt, und für die jeweiligen Wohnungen bestehen separate Grundbücher. Das Gebäude umfasst insgesamt 17 Wohnungen, gelegen im Vorderhaus, Seitenflügel und Quergebäude. Alle Treppenhäuser und Haupteingangsbereiche (im Vorderhaus, Seitenflügel und Quergebäude) sowie der Innenhof sind instand gehalten.
----------
The property dates back to 1900 and is situated in the central area of Berlin-Köpenick, close to the old town and the River Spree. It was divided in 2020, and separate land registers exist for each of the apartments. The building comprises a total of 17 apartments, located in the front building, side wing, and rear building. All staircases and main entrance areas (in the front building, side wing, and rear building), as well as the courtyard, are well-maintained.
Finanzierungszertifikat
In nur zwei Minuten zu Ihrem persönlichen Finanzierungszertifkat.
Infos
| Wohnungskategorie | Etagenwohnung |
|---|---|
| Etage | 1 von 3 |
| Wohnfläche ca. | 33 m2 |
| Zimmer | 2 |
| Schlafzimmer | 1 |
| Badezimmer | 1 |
Kosten
| Kaufpreis |
230.000 € |
|---|---|
| Hausgeld |
193 € |
| Provision |
8.211,00 € 3,00% zzgl. MwSt |
Finanzierungsrechner:
Kaufpreis:
600.000 €
Eigenkapital:
600.000 €
Monatliche Rate
0 €
Effektiver Jahreszins
0 %
Sollzinsbindung
10 Jahre
Bausubstanz & Energieausweis
| Baujahr | 1900 |
|---|---|
| Objektzustand | Gepflegt |
| Qualität der Austattung | Normal |
| Heizungsart | Zentralheizung |
| Wesentliche Energieträger | Erdgas leicht |
| Energieausweis | liegt vor |
| Energieausweistyp | Verbrauchsausweis |
| Energieverbrauchskennwert | 185,0 kWh/(m²*a) |
| Energieeffizienzklasse | F |
185,0
kWh/(m²*a)
Energieeffizienzklasse F
- A+
- A
- B
- C
- D
- E
- F
- G
- H
- 0
- 25
- 50
- 75
- 100
- 125
- 150
- 175
- 200
- 225
- >250
Beschreibung des Objekts
Ausstattung
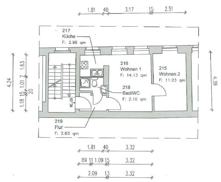
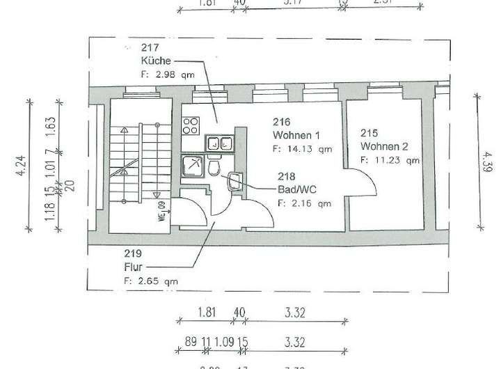
Die renovierte und möblierte 2-Zimmer-Wohnung befindet sich im 1. Obergeschoss des Seitenflügels. Beim Betreten gelangen Sie in einen Flur. Links befindet sich das Badezimmer mit einer Duschkabine. Das Wohnzimmer ist ein Durchgangszimmer, das sowohl zur Küche als auch zum Schlafzimmer führt. Die Küche ist mit einer Einbauküche einschließlich aller Geräte ausgestattet. Das Schlafzimmer bietet einen angenehmen, separaten Schlafbereich. Die helle Wohnung verfügt über große Fenster und hohe Decken.
----------
The renovated and furnished 2-room apartment is located on the 1st floor of the side wing. Upon entering, you step into a hallway. To the left is the bathroom with a shower cabin. The living room is a walk-through room that provides access to both the kitchen and the bedroom. The kitchen is equipped with a built-in kitchen including all appliances. The bedroom offers a pleasant, separate sleeping area. The bright apartment features large windows and high ceilings.
Lage
Öffentliche Verkehrsmittel und Versorgungseinrichtungen befinden sich in unmittelbarer Nähe.
----------
Public transportation and utilities are in proximity.
Weitere Dokumente
TRUST-Expose-FRE7-WE9Grundriss
Grundriss- FRE7-WE9
>
>
Adresse
Freiheit 7, 12555 Berlin
Interessante Orte
Preis- und Lageinformationen
Preistrend für Bestandsimmobilien in Köpenick (Köpenick)