Das 1898 errichtete Bauernhaus wurde zwischen 1990 - 2017 modernisiert. Dabei blieb der historische Charme und das originale Fachwerk mit freiliegenden Holzträgern erhalten. Bereits beim öffnen der Eingangstür taucht man in eine andere Welt. Eine Stück Geschichte und das Gefühl wohliger Geborgenheit, die dieses Haus in jeder Ecke versprüht. Es ist die gelungene Kombination aus zeitgemäßer Ausstattung/ Technik, offener Raumgestaltung, den vielseitigen Nutzungsmöglichkeiten und der erhaltenen historischen Bausubstanz, die diese Immobilie zu etwas außergewöhnlichem macht.
Die Konzeption der Räume entspricht einem guten Wohnstandard und einer zeitgemäßen Aufteilung. Das Gebäude ist aktuell in 2 Wohneinheiten mit separaten Zugängen aufgeteilt. Die Wohnung im Erdgeschoss umfasst eine Wohnfläche von ca. 80 m², aufgeteilt auf 2 geräumige Zimmer sowie Bad und Küche. Der Zugang erfolgt straßenseitig.
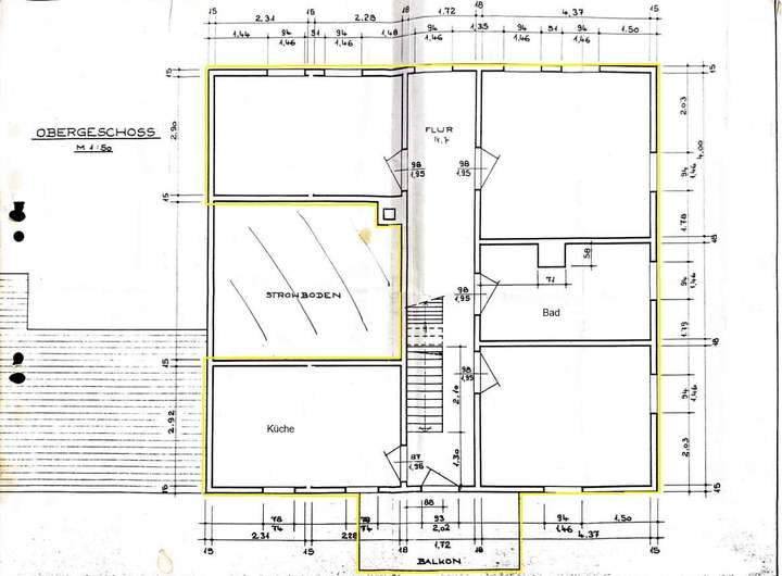
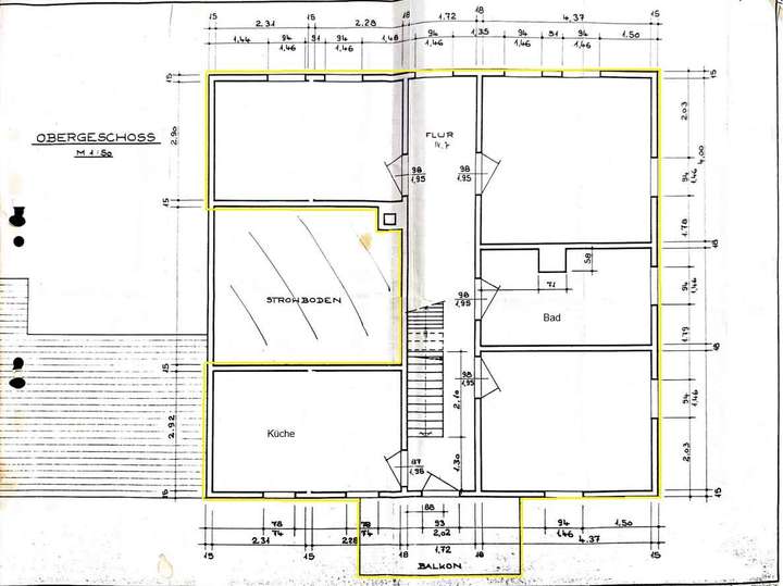
Die Wohnung im Obergeschoss wird vom PKW-Stellplatz erschlossen. Im Erdgeschoss befinden sich der Hauswirtschaftsraum mit angeschlossener Werkstatt. Eine Treppe führt in das Obergeschoss wo 3 Zimmer sowie Bad mit Dusche/ Wanne und Küche arrangiert wurden. Die Wohnfläche umfasst ca. 80 m². Diese Wohnung verfügt zusätzlich über einen Balkon und die Option auf ein 4. Zimmer (nach Umbau). Das Dachgeschoss bietet eine zusätzliche Ausbaureserve. Das Haus ist nicht unterkellert. Das Gebäude wird über Heizkörper in den Räumen sowie eine Gas-Zentralheizung mit Wärmemengenzählern.
Das großzügige Grundstück mit einer Fläche von ca. 1.166 m² ist ein echtes Highlight dieser Immobilie. Es bietet viel Platz für Gartenliebhaber, Spielbereiche für Kinder, Tierhaltung oder einfach zum Entspannen in ruhiger Umgebung. Alte Bäume, Grünflächen und der weite Blick schaffen eine idyllische Atmosphäre mit hohem Erholungswert. Gleichzeitig bietet sich Freiraum für Ihre Ideen – vom Selbstversorgergarten bis hin zu kreativen Freizeitideen.
Modernisiertes Ein- Zweifamilienhaus und traumhaftem 1.166 m² Grundstück - Freiraum für Ihre Ideen
31241 Ilsede
Die vollständige Adresse der Immobilie erhalten Sie vom Anbieter.
Auf Karte anzeigen
Die vollständige Adresse der Immobilie erhalten Sie vom Anbieter.
Finanzierungszertifikat
In nur zwei Minuten zu Ihrem persönlichen Finanzierungszertifkat.
Infos
| Haustyp | Sonstige |
|---|---|
| Wohnfläche ca. | 160 m2 |
| Grundstücksfläche | 1.166 m2 |
| Zimmer | 5 |
Kosten
| Kaufpreis |
290.000 € |
|---|---|
| Provision |
2,97% Bei Zustandekommen des notariellen Kaufvertrages durch unseren Nachweis und/oder Vermittlung hat der Käufer eine Maklerprovision i.H. von 2,97 % inkl. gesetzlich geltender MwSt. vom endgültigen Erwerbspreis an uns zu zahlen. Mit dem Verkäufer besteht eine gleichlautende Vereinbarung. Fälligkeit bei Abschluss des notariellen Kaufvertrages. |
| Mieteinnahmen | 450 € |
Finanzierungsrechner:
Kaufpreis:
600.000 €
Eigenkapital:
600.000 €
Monatliche Rate
0 €
Effektiver Jahreszins
0 %
Sollzinsbindung
10 Jahre
Bausubstanz & Energieausweis
| Heizungsart | Gas-Heizung |
|---|---|
| Wesentliche Energieträger | Gas |
| Energieausweis | liegt zur Besichtigung vor |
Beschreibung des Objekts
Ausstattung
Das Erdgeschoss besteht aus Ziegelmauerwerk, das Obergeschoss wurde als Fachwerk mit Ausfachungen in Ziegelsteinen ausgeführt. Das Haus präsentiert sich aufgrund laufender Instandhaltungen und den Modernisierungsmaßnahmen (Fenster 2-fach isolierverglast, Elektrik, Dach, Heizung, Bäder, Balkon, neue Einbauküche im OG aus 2024) in einem gut unterhaltenen Zustand.
Lage
Die Immobilie befindet sich in zentraler und ruhiger Wohnlage von Ölsburg, einem Ortsteil der Gemeinde Ilsede. Die Umgebungsbebauung ist von weiteren Wohnhäusern geprägt.
Die Gemeinde Ilsede verfügt über eine hervorragende Infrastruktur, bestehend aus Nahversorgern, Restaurants, Gewerbepark, Schulen, ärztlicher Versorgung und zahlreichen weiteren Einrichtungen des täglichen Bedarfes. Die Anbindung an den öffentlichen Nahverkehr erfolgt über die fußläufig entfernte Bushaltestelle. Die Anbindung an den überregionalen Individualverkehr wird über eine nur 14 PKW-Fahrminuten entfernte Auffahrt zur A2 gewährleistet. Ilsede liegt logistisch vorteilhaft zwischen den Städten Peine (ca. 10 km), Salzgitter (ca. 20 km), Braunschweig (ca. 27 km) und Hannover (ca. 44 km).
Sonstige Angaben
Die Objektangaben wurden nach bestem Wissen und Gewissen erstellt. Grundlage der vorstehenden Angaben sind Informationen und/oder Unterlagen, welche uns von der/ vom Eigentümer(in) oder Dritten zur Verfügung gestellt worden sind. Eine Gewähr für die Richtigkeit der Angaben kann daher nicht übernommen werden. Irrtum und Zwischenverkauf vorbehalten.
Grundriss
Grundriss Obergeschoss
>
>
Adresse
31241 Ilsede
Interessante Orte
Preis- und Lageinformationen
Preistrend für Bestandsimmobilien in Ilsede