"SAB gefördert für Eigennutzer / Familien"
Charmante 3-Raum-Wohnung mit Dachterrasse im beliebten Chemnitzer Stadtteil Kaßberg
Willkommen in dieser attraktiven 3-Raum-Wohnung im 3. Obergeschoss eines gepflegten Mehrfamilienhauses auf dem Kaßberg, einem der schönsten und begehrtesten Stadtteile von Chemnitz. Die Immobilie eignet sich gleichermaßen als lukratives Investment oder zur Eigennutzung.
Die Wohnung überzeugt durch eine durchdachte Raumaufteilung mit großzügigen Wohn- und Schlafbereichen, die viel Platz für individuelle Gestaltungsmöglichkeiten bieten. Ein absolutes Highlight ist die große Dachterrasse, die sowohl vom Schlafzimmer als auch vom Wohnzimmer aus betreten werden kann und zu entspannten Stunden im Freien einlädt. Die Ausstattung ist modern und hochwertig: Kunststofffenster mit integrierten Außenrollläden sorgen für ein angenehmes Raumklima, Lichtschutz und zusätzliche Sicherheit.
Die Küche ist hell und freundlich gestaltet und bietet durch das Fenster nicht nur eine gute Belichtung, sondern auch Platz für einen kleinen Essbereich. Das Tageslichtbad wurde funktional mit einer Dusche und einer Badewanne ausgestattet und verfügt außerdem über einen Waschmaschinenanschluss, wodurch es auch im Alltag hohen Komfort bietet. Der zentral gelegene Flur verbindet alle Räume auf harmonische Weise und schafft eine praktische Wohnbasis.
Für zusätzliche Annehmlichkeiten steht im Wohnzimmer ein Glasfaseranschluss bereit, der ideale Voraussetzungen für Homeoffice, Streaming und alltägliche Internetnutzung schafft. Die gepflegte und freundliche Hausgemeinschaft trägt zu einem angenehmen Wohnumfeld bei, während ein zuverlässiger Hausmeisterservice die Treppenhausreinigung und den Winterdienst übernimmt. Ein eigenes Kellerabteil sorgt für Stauraum.
Abgerundet wird das Angebot durch die Möglichkeit, in der hauseigenen Tiefgarage ein oder zwei Stellplätze zu erwerben. Der Kaufpreis beträgt 15.000 € pro Stellplatz und bietet somit die Option auf komfortables und sicheres Parken direkt im Haus.
Hinweis
Neue WEG-> Höhe des Hausgeldes und Instandhaltungsrücklage folgen
Fazit
Diese 3-Raum-Wohnung vereint Komfort und Funktionalität in einer begehrten Lage. Nutzen Sie die Chance, Teil dieser ordentlichen Hausgemeinschaft zu werden und vereinbaren Sie noch heute einen Besichtigungstermin!
Stilvolle 3-Raum-Penthousewohnung mit Dachterrasse im begehrten Chemnitzer Stadtteil Kaßberg
09112 Chemnitz
Die vollständige Adresse der Immobilie erhalten Sie vom Anbieter.
Auf Karte anzeigen
Die vollständige Adresse der Immobilie erhalten Sie vom Anbieter.
Finanzierungszertifikat
In nur zwei Minuten zu Ihrem persönlichen Finanzierungszertifkat.
Infos
| Wohnungskategorie | Penthouse |
|---|---|
| Etage | 3 von 3 |
| Wohnfläche ca. | 96 m2 |
| Bezugsfrei ab | sofort |
| Zimmer | 3 |
| Schlafzimmer | 2 |
| Badezimmer | 1 |
| Garage/Stellplatz | Tiefgarage |
| Anzahl Garage/Stellplatz | 1 |
Kosten
| Kaufpreis |
192.000 € |
|---|---|
| Preis für Garage/Stellplatz | 15.000 € |
| Provision | Nein |
Finanzierungsrechner:
Kaufpreis:
600.000 €
Eigenkapital:
600.000 €
Monatliche Rate
0 €
Effektiver Jahreszins
0 %
Sollzinsbindung
10 Jahre
Bausubstanz & Energieausweis
| Baujahr | 1997 |
|---|---|
| Objektzustand | Vollständig Renoviert |
| Qualität der Austattung | Normal |
| Heizungsart | Fernwärme |
| Wesentliche Energieträger | Gas |
| Energieausweis | liegt vor |
| Energieausweistyp | Verbrauchsausweis |
| Energieverbrauchskennwert | 74,1 kWh/(m²*a) |
| Energieeffizienzklasse | B |
74,1
kWh/(m²*a)
Energieeffizienzklasse B
- A+
- A
- B
- C
- D
- E
- F
- G
- H
- 0
- 25
- 50
- 75
- 100
- 125
- 150
- 175
- 200
- 225
- >250
Beschreibung des Objekts
Ausstattung
+ Penthouse für Sie momentan als Eigennutzer freigehalten -> mögliche Mieteinnahmen: 946 € mtl.
+ 3-Raum-Wohnung im 3. Obergeschoss mit eigener Dachterrasse
+ Außenrollläden an den Fenstern
+ ordentliche Hausgemeinschaft
+ Böden: Fliesenboden, Vinyl
+ Fenster: Kunststofffenster
+ Wohnung mit Glasfaseranschluss im Wohnzimmer
+ großes, einladendes Wohnzimmer
+ Zugang zur großen Terrasse von Schlafzimmer & Wohnzimmer
+ Küche mit Fenster
+ Bad mit Wanne + Dusche
+ Waschmaschinenanschluss im Badezimmer
+ zentraler Flur
+ ordentliche Hausverwaltung
+ eigenes Kellerabteil
+ Kauf von Tiefgaragenstellplatz (1-2 Stück möglich) -> Preis pro Stellplatz: 15.000 €
+ Hausmeisterservice vorhanden (Treppenhausreinigung, Winterdienst)
Lage
Diese Wohnung befindet sich in einem ruhigen, aber dennoch zentral gelegenen Stadtteil von Chemnitz, dem Kaßberg, der Ihnen eine hervorragende Anbindung an die öffentlichen Verkehrsmittel bietet. Haltestellen für Straßenbahnen und Busse liegen in unmittelbarer Nähe, wodurch Sie schnell ins Stadtzentrum und zu anderen Stadtteilen gelangen.
In der Umgebung finden Sie eine Vielzahl von Einkaufsmöglichkeiten, darunter Supermärkte, Bäckereien und Fachgeschäfte, die bequem zu Fuß erreichbar sind und Ihnen die Deckung Ihres täglichen Bedarfs erleichtern. Für Familien stehen außerdem verschiedene Bildungseinrichtungen wie Kindergärten, Schulen und Hochschulen zur Verfügung, die eine gute Bildungsinfrastruktur bieten.
Parks und Grünanlagen laden zu Spaziergängen und sportlichen Aktivitäten ein. In der näheren Umgebung gibt es zudem zahlreiche Restaurants, Cafés und Freizeitangebote. Die zentrale Lage ermöglicht Ihnen den Zugang zu vielfältigen kulturellen Angeboten wie Museen, Theatern und Kinos.
Insgesamt ist diese Umgebung der ideale Ort für alle, die die Vorzüge einer ruhigen Wohngegend mit den Annehmlichkeiten einer lebendigen Stadt verbinden möchten.
Sonstige Angaben
Gern können Sie uns direkt in Ihrer Anfrage zwei bis drei Terminvorschläge zusenden. Bitte teilen Sie uns auch Ihre Telefonnummer mit, damit wir zeitnah mit Ihnen in Kontakt treten können.
Sind Sie Eigentümer?
Sind Sie Eigentümer und möchten Ihre Immobilie verkaufen oder vermieten? Wir bieten Ihnen eine exklusive Wertermittlung und eine kostenlose Erstberatung an. Aussagekräftige und hochwertige Exposés sind unser Standard! Treten Sie gern mit uns in Kontakt, und wir unterstützen Sie beim Verkauf und der Vermietung Ihrer Immobilie.
Senden Sie uns eine Nachricht oder Anfrage über das Portal, oder rufen Sie uns direkt unter der hier hinterlegten Telefonnummer an. Wir freuen uns auf Ihre Anfrage und eine gute Zusammenarbeit!
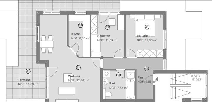
Grundriss
Grundriss Penthouse.png
>
>
Adresse
09112 Chemnitz
Interessante Orte
Preis- und Lageinformationen
Preistrend für Bestandsimmobilien in Kaßberg