Diese charmante Wohnung bietet ein komfortables Zuhause mit 3,5 Zimmern, verteilt auf 73 m². Die Wohnung befindet sich im 3. Obergeschoss eines gepflegten Gebäudes mit Aufzug und wurde kürzlich saniert, um modernen Wohnstandards zu entsprechen.
Die Wohnung verfügt über zwei geräumige Schlafzimmer und ein Badezimmer, ausgestattet mit einer Zentralheizung, die mit Gas betrieben wird. Der Bodenbelag besteht aus einer Kombination von Fliesen und Laminat, die für eine warme und einladende Atmosphäre sorgen.
Ein besonderes Highlight dieser Immobilie ist die offene Küche, die für mehr Platz und ein luftiges Wohngefühl sorgt. Zur Wohnung gehören außerdem ein praktischer Umkleideraum im Schlafzimmer, eine Speisekammer in der Küche und ein Keller, die zusätzlichen Stauraum bieten. Ein weiterer Vorteil ist die moderne Einbauküche, die im Kaufpreis enthalten ist und zu kulinarischen Genüssen inspiriert. Auch eine Duplexgarage gehört zum Angebot.
Ein gemeinschaftlich nutzbarer Garten mit Fahrradstellplatz steht ebenfalls zur Verfügung und bietet eine grüne Oase zum Entspannen und Genießen der Natur. Die Wohnung ist derzeit vermietet, was sie zu einer attraktiven Investitionsmöglichkeit macht.
Die Wohnung liegt zentral und grenzt dennoch an einen Wald an. Nur wenige Gehminuten entfernt liegt der Kurpark.
Die Lage in Bad Dürrheim ist ideal, da sie sowohl Ruhe als auch Nähe zu städtischen Annehmlichkeiten bietet. Diese Wohnung vereint Komfort, Modernität und eine hervorragende Lage zu einem attraktiven Preis.
Diese charmante Wohnung bietet ein komfortables Zuhause
78073 Bad Dürrheim
Die vollständige Adresse der Immobilie erhalten Sie vom Anbieter.
Auf Karte anzeigen
Die vollständige Adresse der Immobilie erhalten Sie vom Anbieter.
Finanzierungszertifikat
In nur zwei Minuten zu Ihrem persönlichen Finanzierungszertifkat.
Infos
| Wohnungskategorie | Etagenwohnung |
|---|---|
| Etage | 3 von |
| Wohnfläche ca. | 73 m2 |
| Zimmer | 3,5 |
| Schlafzimmer | 2 |
| Badezimmer | 1 |
| Garage/Stellplatz | Duplex |
| Anzahl Garage/Stellplatz | 1 |
Kosten
| Kaufpreis |
245.000 € |
|---|---|
| Hausgeld |
340 € |
| Provision |
3,57% Die angegebene Käuferprovision (inkl. MwSt.) ist verdient und fällig mit Beurkundung des notariellen Kaufvertrages. |
| Mieteinnahmen | 990 € |
Finanzierungsrechner:
Kaufpreis:
600.000 €
Eigenkapital:
600.000 €
Monatliche Rate
0 €
Effektiver Jahreszins
0 %
Sollzinsbindung
10 Jahre
Bausubstanz & Energieausweis
| Baujahr | 2009 |
|---|---|
| Objektzustand | Saniert |
| Qualität der Austattung | Normal |
| Heizungsart | Zentralheizung |
| Wesentliche Energieträger | Gas |
| Energieausweis | liegt vor |
| Energieausweistyp | Verbrauchsausweis |
| Energieverbrauchskennwert | 71,8 kWh/(m²*a) |
| Energieeffizienzklasse | B |
71,8
kWh/(m²*a)
Energieeffizienzklasse B
- A+
- A
- B
- C
- D
- E
- F
- G
- H
- 0
- 25
- 50
- 75
- 100
- 125
- 150
- 175
- 200
- 225
- >250
Beschreibung des Objekts
Lage
Lagebeschreibung:
Diese Immobilie befindet sich in der charmanten Stadt Bad Dürrheim und bietet eine hervorragende Anbindung an öffentliche Verkehrsmittel und wichtige Verkehrsknotenpunkte. Nur einen kurzen Fußweg von 5 Minuten entfernt finden Sie die nächste Haltestelle des öffentlichen Personennahverkehrs (ÖPNV), die Ihnen bequeme Verbindungen in die Umgebung bietet.
Bad Dürrheim selbst ist bekannt für seine thermalen Heilquellen und das angenehme Klima, was die Stadt zu einem beliebten Wohnort macht. Hier genießen Sie eine hohe Lebensqualität mit zahlreichen Freizeitmöglichkeiten, ausgezeichneten Einkaufsmöglichkeiten und einer Vielzahl von Restaurants und Cafés.
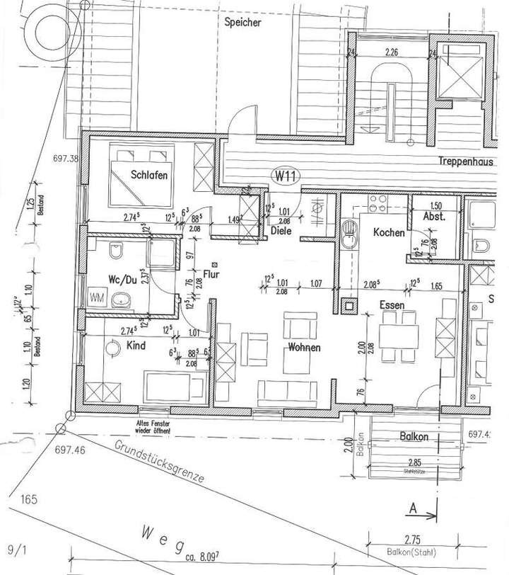
Grundriss
Grundriss
>
>
Adresse
78073 Bad Dürrheim
Interessante Orte
Preis- und Lageinformationen
Preistrend für Bestandsimmobilien in Bad Dürrheim